
Etagenwohnung in Bad Driburg
Objekt nicht gefunden
auf der Karte ansehenUmzugskosten berechnen
- Kaltmiete
- 950 €
- Zimmer
- 2
- Fläche
- 70 m²
26 Aufrufe
Objekt-ID: 37657831
| Objekttyp: | Etagenwohnung |
| Zimmer: | 2 |
| Größe: | 70.00 m² |
| Etage: | 1 von 4 |
| Frei ab: | 01.07.2025 |
Preise & Kosten
| Kaltmiete: | k.A. |
| Nebenkosten: | 200 € |
| Gesamtmiete: |
k.A. |
| Preis/m²: | 13,57 € |
| Mit Mietspiegel Bad Driburg vergleichen | |
| Kaution: | k.A. |
Immobilie
Balkon
Terrasse
Dachterrasse
Einbauküche
Keller
Tiere erlaubt
| Baujahr: | 1981 |
| Befeuerungsart: | Strom |
| Energieausweis: | Bedarfsausweis |
Objektbeschreibung
Mitten im Zentrum Bad Driburgs steht diese Wohnung ab Juli 2025 zur Verfügung. Die direkte Lage an der Fußgängerzone macht diese Wohnung besonders attraktiv.
Der Zugang zum Gebäude erfolgt von der Langen Straße aus.
Das Bestandsgebäude wurde 2023 zu einem KfW Effizienzhaus saniert. Die Wohnung wird über eine Wärmepumpe mit Fußbodenheizung beheizt. Neben neuen Fenstern und einer mineralischen Fassadendämmung wurde außerdem das Dach saniert und mit einer Photovoltaikanlage ausgestattet.
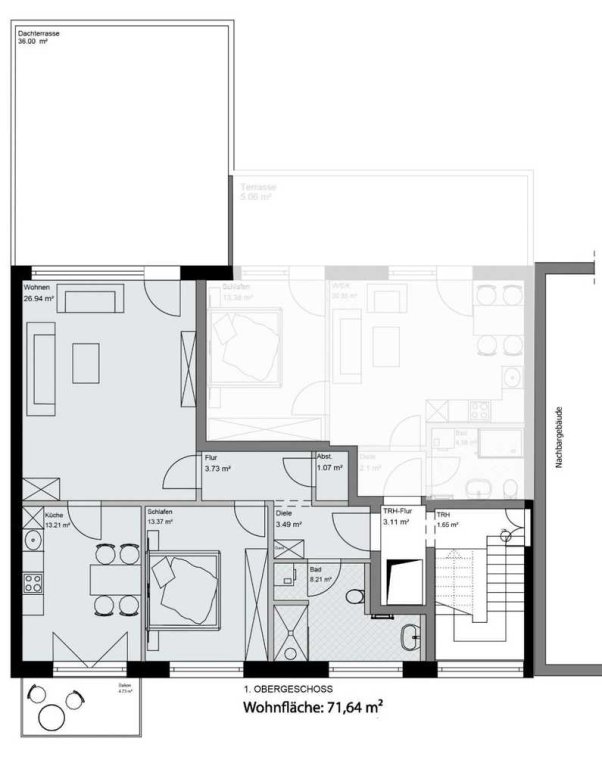
Für Ihre Fahrräder steht ein Gemeinschaftskeller zur Verfügung. Ihre Wohnung verfügt über einen eigenen Kellerraum. Vom Süd- Balkon (5 m²) aus haben Sie einen direkten Blick in die Fußgängerzone. Auf der anderen Gebäudeseite gehört eine 36 m² große Dachterrasse mit Teilüberdachung ebenfalls zur Wohnung.
Die Fußböden sind mit Fliesen- sowie Vinylbelag ausgeführt.
Eine Einbauküche kann nach Absprache vom Vormieter übernommen werden.
Ein PKW-Stellplatz kann bei Bedarf separat hinzugemietet werden.
Ich freue mich auf Ihre schriftliche Kontaktaufnahme.
Der Zugang zum Gebäude erfolgt von der Langen Straße aus.
Das Bestandsgebäude wurde 2023 zu einem KfW Effizienzhaus saniert. Die Wohnung wird über eine Wärmepumpe mit Fußbodenheizung beheizt. Neben neuen Fenstern und einer mineralischen Fassadendämmung wurde außerdem das Dach saniert und mit einer Photovoltaikanlage ausgestattet.
Für Ihre Fahrräder steht ein Gemeinschaftskeller zur Verfügung. Ihre Wohnung verfügt über einen eigenen Kellerraum. Vom Süd- Balkon (5 m²) aus haben Sie einen direkten Blick in die Fußgängerzone. Auf der anderen Gebäudeseite gehört eine 36 m² große Dachterrasse mit Teilüberdachung ebenfalls zur Wohnung.
Die Fußböden sind mit Fliesen- sowie Vinylbelag ausgeführt.
Eine Einbauküche kann nach Absprache vom Vormieter übernommen werden.
Ein PKW-Stellplatz kann bei Bedarf separat hinzugemietet werden.
Ich freue mich auf Ihre schriftliche Kontaktaufnahme.
Lage
Am Hellweg33014 Bad Driburg
Bad Driburg
Der aktuelle durchschnittliche Quadratmeterpreis beträgt 7,50 €/m² in Bad Driburg.
Mit Mietspiegel
Bad-Driburg vergleichen
Was kostet dein Umzug?
Du planst einen Umzug? Finde jetzt die günstigste Umzugsfirma in deiner Region!
Umzugskosten berechnen Schütze dich vor Betrug!
Leiste keinerlei Zahlung im Vorraus!
Beachte unsere Sicherheitshinweise zum Thema Immobilienbetrug und lies, woran du solche Anzeigen erkennen kannst und wie du dich vor Betrügern schützt.
Anzeige melden Beachte unsere Sicherheitshinweise zum Thema Immobilienbetrug und lies, woran du solche Anzeigen erkennen kannst und wie du dich vor Betrügern schützt.
*Anzeige
Ähnliche Wohnungen bei ImmoScout24
Bad Driburg
- Miete
- 800 €
- Zimmer
- 2 Zi.
- Fläche
- 60 Zi.
Anbieter
privater Anbieter
Diese Anzeige ist momentan deaktiviert. Daher ist eine Kontaktaufnahme nicht möglich.
Weitere Ergebnisse für:
Wohnungen
Bad Driburg;
Immobilien
Bad Driburg;
Haus mieten
Bad Driburg;
WG Zimmer
Bad Driburg;
Wohnung
Bad Driburg kaufen;
Haus kaufen
Bad Driburg;
Immobilienpreise
Bad Driburg Mietspiegel
Bad Driburg wohnungsboerse.net übernimmt keine Gewähr für von Dritten gemachte Angaben