
Etagenwohnung in Dettingen unter Teck
Stilvolle 4,5-Zimmer-Wohnung mit geh. Innenausstattung mit Balkon und EBK in Dettingen unter Teck
auf der Karte ansehenUmzugskosten berechnen
- Kaltmiete
- 1.550 €
- Zimmer
- 4.5
- Fläche
- 145 m²
16 Aufrufe
Objekt-ID: 38496802
| Objekttyp: | Etagenwohnung |
| Zimmer: | 4.5 |
| Größe: | 145.00 m² |
| Etage: | 1 von 2 |
| Frei ab: | 1.1.2026 |
Preise & Kosten
| Kaltmiete: | 1.550 € |
| Nebenkosten: | 350 € |
| Gesamtmiete: |
1.900 € |
| Preis/m²: | 10,69 € |
| Mit Mietspiegel Dettingen unter Teck vergleichen | |
| Kaution: | k.A. |
Immobilie
Balkon
Einbauküche
Aufzug
Keller
| Baujahr: | 2021 |
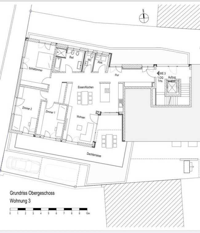
Objektbeschreibung
4,5 Zimmer Neubauwohnung Fertigstellung 2021 / Zweitbezug. ca. 145 m2 Wohnfläche
Moderne, großzügige und barrierefreie Wohnung im 1. Obergeschoß mit Aufzug
Dachterrasse nach Süden.
Nur wenige Wohneinheiten.
Luft-Wasser-Wärmepumpe mit Fußbodenheizung und großformatigen Fliesen.
Hochwertige Ausstattung, begehbare Dusche, elektrische Jalousien / Rollläden.
Hochwertige Einbauküche
Waschküche
Keller
Auf Wunsch 2 Garagenplätze möglich
Moderne, großzügige und barrierefreie Wohnung im 1. Obergeschoß mit Aufzug
Dachterrasse nach Süden.
Nur wenige Wohneinheiten.
Luft-Wasser-Wärmepumpe mit Fußbodenheizung und großformatigen Fliesen.
Hochwertige Ausstattung, begehbare Dusche, elektrische Jalousien / Rollläden.
Hochwertige Einbauküche
Waschküche
Keller
Auf Wunsch 2 Garagenplätze möglich
Lage
73265 Dettingen unter TeckDettingen unter Teck
Der aktuelle durchschnittliche Quadratmeterpreis beträgt 12,27 €/m² in Dettingen unter Teck.
Mit Mietspiegel
Dettingen-unter-Teck vergleichen
Was kostet dein Umzug?
Du planst einen Umzug? Finde jetzt die günstigste Umzugsfirma in deiner Region!
Umzugskosten berechnen Schütze dich vor Betrug!
Leiste keinerlei Zahlung im Vorraus!
Beachte unsere Sicherheitshinweise zum Thema Immobilienbetrug und lies, woran du solche Anzeigen erkennen kannst und wie du dich vor Betrügern schützt.
Anzeige melden Beachte unsere Sicherheitshinweise zum Thema Immobilienbetrug und lies, woran du solche Anzeigen erkennen kannst und wie du dich vor Betrügern schützt.
*Anzeige
Ähnliche Wohnungen bei ImmoScout24
Dettingen unter Teck
- Miete
- 1.400 €
- Zimmer
- 4.5 Zi.
- Fläche
- 135 Zi.
Weitere Ergebnisse für:
Wohnungen
Dettingen unter Teck;
Immobilien
Dettingen unter Teck;
Haus mieten
Dettingen unter Teck;
WG Zimmer
Dettingen unter Teck;
Wohnung
Dettingen unter Teck kaufen;
Haus kaufen
Dettingen unter Teck;
Immobilienpreise
Dettingen unter Teck Mietspiegel
Dettingen unter Teck wohnungsboerse.net übernimmt keine Gewähr für von Dritten gemachte Angaben