
Dachgeschosswohnung in Gangkofen
Geschmackvolle 2-Raum-DG-Wohnung mit gehobener Innenausstattung mit EBK in Gangkofen
auf der Karte ansehenUmzugskosten berechnen
- Kaltmiete
- 650 €
- Zimmer
- 2
- Fläche
- 55 m²
11 Aufrufe
Objekt-ID: 38523625
Objekttyp: | Dachgeschosswohnung |
Zimmer: | 2 |
Größe: | 55.00 m² |
Etage: | 2 von 2 |
Frei ab: | keine Angabe |
Preise & Kosten
Kaltmiete: | 650 € |
Nebenkosten: | 125 € |
Gesamtmiete: |
775 € |
Preis/m²: | 11,82 € |
Mit Mietspiegel Gangkofen vergleichen | |
Kaution: | k.A. |
Immobilie
Balkon
Einbauküche
Keller
Baujahr: | 2023 |
Befeuerungsart: | Strom |
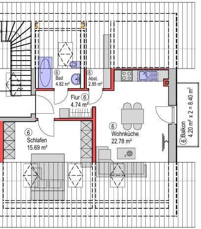
Objektbeschreibung
Bei dieser ansprechenden Immobilie handelt es sich um eine voll klimatisierte Dachgeschosswohnung in der 2. Etage eines 6 - Fam, Hauses. Die Wohnung ist nahezu neuwertig aus Fertigstellung 2024. Die Wohnung verfügt über zwei hübsche Zimmer. Der Balkon lädt zum Entspannen und Sonne tanken ein. In der Innenausstattung mit inbegriffen ist eine Einbauküche. Zur Wohnung gehören außerdem noch ein Keller mit genügend Stauraum und ein Stellplatz für Ihr Auto. Bei Interesse melden Sie sich bitte direkt unter 01755939768. Danke
Lage
Plinganserstraße84140 Gangkofen
Gangkofen
Der aktuelle durchschnittliche Quadratmeterpreis beträgt 10,07 €/m² in Gangkofen.
Mit Mietspiegel
Gangkofen vergleichen
Was kostet dein Umzug?
Du planst einen Umzug? Finde jetzt die günstigste Umzugsfirma in deiner Region!
Umzugskosten berechnen Schütze dich vor Betrug!
Leiste keinerlei Zahlung im Vorraus!
Beachte unsere Sicherheitshinweise zum Thema Immobilienbetrug und lies, woran du solche Anzeigen erkennen kannst und wie du dich vor Betrügern schützt.
Anzeige melden Beachte unsere Sicherheitshinweise zum Thema Immobilienbetrug und lies, woran du solche Anzeigen erkennen kannst und wie du dich vor Betrügern schützt.
*Anzeige

Ähnliche Wohnungen bei ImmoScout24
Gangkofen
- Miete
- 500 €
- Zimmer
- 2 Zi.
- Fläche
- 45 Zi.
Weitere Ergebnisse für:
Wohnungen
Gangkofen;
Immobilien
Gangkofen;
Haus mieten
Gangkofen;
WG Zimmer
Gangkofen;
Wohnung
Gangkofen kaufen;
Haus kaufen
Gangkofen;
Immobilienpreise
Gangkofen Mietspiegel
Gangkofen wohnungsboerse.net übernimmt keine Gewähr für von Dritten gemachte Angaben