
Etagenwohnung in Montabaur
Renovierte 4-ZKB Etagenwohnung mit Balkon - in Montabaur!
auf der Karte ansehenUmzugskosten berechnen
- Kaltmiete
- 1.000 €
- Zimmer
- 4
- Fläche
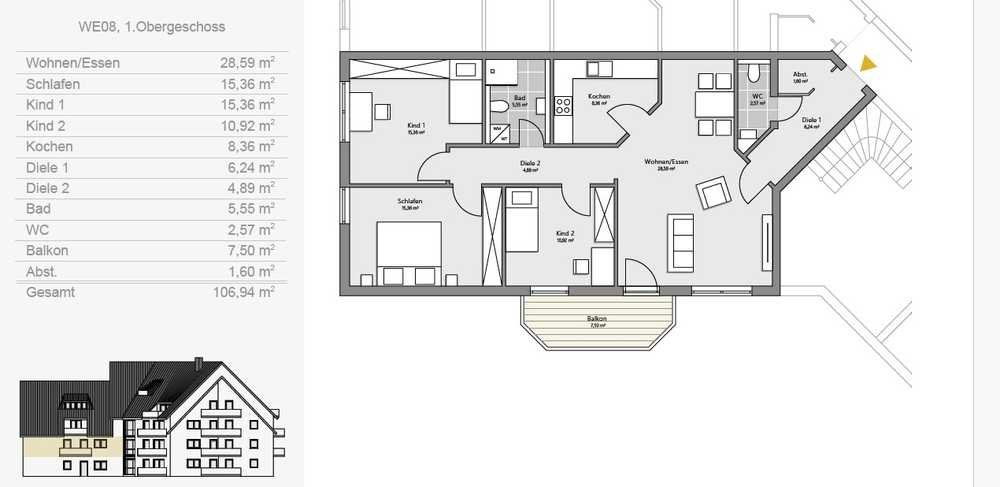
- 106.94 m²
14 Aufrufe
Objekt-ID: 38543305
Objekttyp: | Etagenwohnung |
Zimmer: | 4 |
Größe: | 106.94 m² |
Etage: | 1 von 1 |
Frei ab: | 01.11.2025 |
Preise & Kosten
Kaltmiete: | 1.000 € |
Nebenkosten: | 330 € |
Gesamtmiete: |
1.330 € |
Preis/m²: | 9,35 € |
Mit Mietspiegel Montabaur vergleichen | |
Kaution: | k.A. |
Immobilie
Balkon
Einbauküche
Baujahr: | 1996 |
Befeuerungsart: | Zentralheizung |
Objektbeschreibung
Bei dieser ansprechenden Immobilie handelt es sich um eine Wohnung in der 1. Etage, die durch eine gehobene Innenausstattung besticht und ab dem 01.11.2025 bezogen werden kann. Zu dem Objekt zählen neben vier schönen Zimmern nicht nur zwei Badezimmer, sondern auch ein separates Gäste-WC. Die letzte Modernisierung fand erst im Jahr 2023 statt. Besonders hervorzuheben ist der Balkon, auf dem es sich wunderbar vom Alltag erholen lässt. Eine Einbauküche steht Ihnen außerdem zur Verfügung.
DIE HIGHLIGHTS:
+ 4 helle Zimmer
+ Einbauküche
+ Balkon
+ Gästebad
+ neuwertiger Zustand
GESAMTKOSTEN:
1.000,00€ Kaltmiete + 280€ Nebenkosten + 50€ Küche = 1.330,00€ Gesamtmiete
DIE HIGHLIGHTS:
+ 4 helle Zimmer
+ Einbauküche
+ Balkon
+ Gästebad
+ neuwertiger Zustand
GESAMTKOSTEN:
1.000,00€ Kaltmiete + 280€ Nebenkosten + 50€ Küche = 1.330,00€ Gesamtmiete
Lage
56410 MontabaurMontabaur
Der aktuelle durchschnittliche Quadratmeterpreis beträgt 9,59 €/m² in Montabaur.
Mit Mietspiegel
Montabaur vergleichen
Was kostet dein Umzug?
Du planst einen Umzug? Finde jetzt die günstigste Umzugsfirma in deiner Region!
Umzugskosten berechnen Schütze dich vor Betrug!
Leiste keinerlei Zahlung im Vorraus!
Beachte unsere Sicherheitshinweise zum Thema Immobilienbetrug und lies, woran du solche Anzeigen erkennen kannst und wie du dich vor Betrügern schützt.
Anzeige melden Beachte unsere Sicherheitshinweise zum Thema Immobilienbetrug und lies, woran du solche Anzeigen erkennen kannst und wie du dich vor Betrügern schützt.
*Anzeige

Ähnliche Wohnungen bei ImmoScout24
Montabaur
- Miete
- 850 €
- Zimmer
- 4 Zi.
- Fläche
- 100 Zi.
Anbieter
Weitere Ergebnisse für:
Wohnungen
Montabaur;
Immobilien
Montabaur;
Haus mieten
Montabaur;
WG Zimmer
Montabaur;
Wohnung
Montabaur kaufen;
Haus kaufen
Montabaur;
Immobilienpreise
Montabaur Mietspiegel
Montabaur wohnungsboerse.net übernimmt keine Gewähr für von Dritten gemachte Angaben