
Etagenwohnung in Bensheim
Attraktive 3-Zimmer Wohnung mit Balkon in Bensheim
auf der Karte ansehenUmzugskosten berechnen
- Kaltmiete
- 795 €
- Zimmer
- 3
- Fläche
- 66.19 m²
28 Aufrufe
Objekt-ID: 38567824
Objekttyp: | Etagenwohnung |
Zimmer: | 3 |
Größe: | 66.19 m² |
Etage: | 2 von 3 |
Frei ab: | 1.11.2025 |
Preise & Kosten
Kaltmiete: | 795 € |
Nebenkosten: | 185 € |
Gesamtmiete: |
980 € |
Preis/m²: | 12,01 € |
Mit Mietspiegel Bensheim vergleichen | |
Kaution: | k.A. |
Immobilie
Balkon
Keller
Baujahr: | 1985 |
Befeuerungsart: | Gas |
Energieausweis: | Verbrauchsausweis |
Endenergiebedarf: | 125,70 kWh/(m²*a) |
Objektbeschreibung
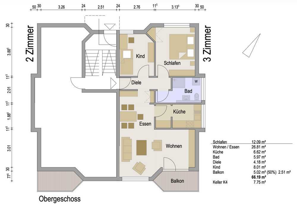
Diese helle und attraktive 3-Zimmer-Wohnung mit ca. 66 m² Wohnfläche befindet sich im 2. Obergeschoss eines gepflegten 5-Familienhauses in Bensheim. Die Wohnung verfügt über einen Balkon, der zum Entspannen einlädt und gliedert sich in: Wohn-und Essbereich, Schlafzimmer, Kinderzimmer, Diele, Bad, Küche und Balkon. Die Innenausstattung ist als anspruchsvoll zu bezeichnen und bietet eine hochwertige Basis für Ihr neues Zuhause. Ein Kellerabteil bietet zusätzlichen Stauraum. Die Wohnung wird ab dem 1.11.2025 verfügbar sein. Haustiere sind in dieser Wohnung leider nicht gestattet.
Lage
Schillerstraße64625 Bensheim
Bensheim
Der aktuelle durchschnittliche Quadratmeterpreis beträgt 12,43 €/m² in Bensheim.
Mit Mietspiegel
Bensheim vergleichen
Was kostet dein Umzug?
Du planst einen Umzug? Finde jetzt die günstigste Umzugsfirma in deiner Region!
Umzugskosten berechnen Schütze dich vor Betrug!
Leiste keinerlei Zahlung im Vorraus!
Beachte unsere Sicherheitshinweise zum Thema Immobilienbetrug und lies, woran du solche Anzeigen erkennen kannst und wie du dich vor Betrügern schützt.
Anzeige melden Beachte unsere Sicherheitshinweise zum Thema Immobilienbetrug und lies, woran du solche Anzeigen erkennen kannst und wie du dich vor Betrügern schützt.
*Anzeige

Ähnliche Wohnungen bei ImmoScout24
Bensheim
- Miete
- 650 €
- Zimmer
- 3 Zi.
- Fläche
- 60 Zi.
Weitere Ergebnisse für:
Wohnungen
Bensheim;
Immobilien
Bensheim;
Haus mieten
Bensheim;
WG Zimmer
Bensheim;
Wohnung
Bensheim kaufen;
Haus kaufen
Bensheim;
Immobilienpreise
Bensheim Mietspiegel
Bensheim wohnungsboerse.net übernimmt keine Gewähr für von Dritten gemachte Angaben