
Etagenwohnung in Speyer-Süd
Hochwertige drei Zimmer Wohnung in Speyer
auf der Karte ansehenUmzugskosten berechnen
- Kaltmiete
- 915 €
- Zimmer
- 3
- Fläche
- 83 m²
23 Aufrufe
Objekt-ID: 38577906
Objekttyp: | Etagenwohnung |
Zimmer: | 3 |
Größe: | 83.00 m² |
Etage: | 2 von 4 |
Frei ab: | 1.12.2025 |
Preise & Kosten
Kaltmiete: | 915 € |
Nebenkosten: | 335 € |
Gesamtmiete: |
1.250 € |
Preis/m²: | 11,02 € |
Mit Mietspiegel Speyer vergleichen | |
Kaution: | k.A. |
Immobilie
Einbauküche
Aufzug
Keller
Tiere erlaubt
Behindertengerecht
Baujahr: | 2012 |
Befeuerungsart: | Nahwärme |
Energieausweis: | Bedarfsausweis |
Endenergiebedarf: | 76,00 kWh/(m²*a) |
Energieeffizienzklasse: | NOT_APPLICABLE |
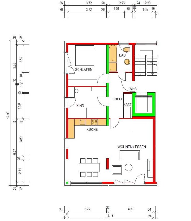
Objektbeschreibung
Diese ansprechende, neuwertige Wohnung im zweiten Stock zeichnet sich durch einen offenen Wohn-Essbereich sowie einer gehobenen Innenausstattung aus und kann zum 01.12.2025 bezogen werden. Zu der Wohnung zählen zwei Schlafzimmer. Ein aktueller Energieausweis liegt zur Besichtigung vor. Durch einen Fahrstuhl gelangen Sie bequem und
Stufenlos aus der Tiefgarage oder anderen Stockwerken in die Wohnung. Ihnen stehen außerdem eine hochwertige Einbauküche sowie ein Stellplatz für Ihr Auto und ein Kellerraum zur Verfügung. Ebenfalls im Keller befindet sich der Waschmaschinen- u. Trocknerraum.
Stufenlos aus der Tiefgarage oder anderen Stockwerken in die Wohnung. Ihnen stehen außerdem eine hochwertige Einbauküche sowie ein Stellplatz für Ihr Auto und ein Kellerraum zur Verfügung. Ebenfalls im Keller befindet sich der Waschmaschinen- u. Trocknerraum.
Lage
Franz-Schöberl-Straße67346 Speyer
Speyer Süd
Der aktuelle durchschnittliche Quadratmeterpreis beträgt 12,36 €/m² in Speyer - Süd. Der durchschnittliche Quadratmeterpreis in Speyer liegt derzeit bei 12,01 €/m².
Mit Mietspiegel
Speyer vergleichen
Was kostet dein Umzug?
Du planst einen Umzug? Finde jetzt die günstigste Umzugsfirma in deiner Region!
Umzugskosten berechnen Schütze dich vor Betrug!
Leiste keinerlei Zahlung im Vorraus!
Beachte unsere Sicherheitshinweise zum Thema Immobilienbetrug und lies, woran du solche Anzeigen erkennen kannst und wie du dich vor Betrügern schützt.
Anzeige melden Beachte unsere Sicherheitshinweise zum Thema Immobilienbetrug und lies, woran du solche Anzeigen erkennen kannst und wie du dich vor Betrügern schützt.
*Anzeige

Ähnliche Wohnungen bei ImmoScout24
Speyer-Süd
- Miete
- 800 €
- Zimmer
- 3 Zi.
- Fläche
- 75 Zi.
Weitere Ergebnisse für:
Wohnungen
Speyer;
Immobilien
Speyer;
Haus mieten
Speyer;
WG Zimmer
Speyer;
Wohnung
Speyer kaufen;
Haus kaufen
Speyer;
Immobilienpreise
Speyer Mietspiegel
Speyer wohnungsboerse.net übernimmt keine Gewähr für von Dritten gemachte Angaben