
Etagenwohnung in Lorch
Traumhafte Maisonette‑Wohnung im Herzen von Lorch
auf der Karte ansehenUmzugskosten berechnen
- Kaltmiete
- 1.000 €
- Zimmer
- 3
- Fläche
- 115 m²
6 Aufrufe
Objekt-ID: 38592486
Objekttyp: | Etagenwohnung |
Zimmer: | 3 |
Größe: | 115.00 m² |
Frei ab: | 1.12.2025 |
Preise & Kosten
Kaltmiete: | 1.000 € |
Nebenkosten: | 250 € |
Gesamtmiete: |
1.250 € |
Preis/m²: | 8,70 € |
Mit Mietspiegel Lorch vergleichen | |
Kaution: | k.A. |
Immobilie
Balkon
Einbauküche
Keller
Objektbeschreibung
Sie suchen eine außergewöhnliche Mietwohnung im idyllischen Lorch? Diese lichtdurchflutete
3‑Zimmer‑Maisonette‑Wohnung verbindet modernen Komfort mit historischem Flair und befindet
sich mitten im Zentrum. Einkaufsmöglichkeiten, Ärzte, Apotheke sowie Bahn‑ und Busanschluss sind
nur wenige Gehminuten entfernt – ideal für all jene, die kurze Wege schätzen und trotzdem im Grünen
wohnen möchten.
Highlights der Wohnung
Helles Raumkonzept: Im Obergeschoss erwartet Sie ein großzügiger, offener Wohn‑/Ess‑/Küchenbereich mit viel Platz für gemütliche Stunden. Eine moderne Einbauküche ist bereits
vorhanden.
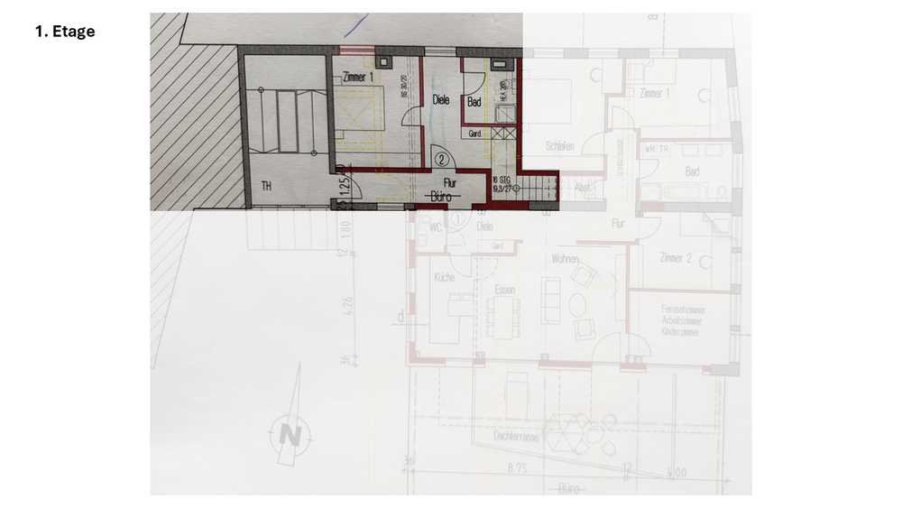
Drei Zimmer über zwei Etagen: Die Wohnung erstreckt sich über die 1. und 2. Etage und bietet neben dem offenen Wohnbereich zwei weitere Zimmer, die sich perfekt als Schlaf‑, Arbeits‑ oder
Kinderzimmer eignen. Der Zugang erfolgt über die erste Etage.
Zwei moderne Bäder: Sowohl oben als auch unten befinden sich jeweils ein Bad mit Dusche
und WC – perfekt für Familien, Paare oder Wohngemeinschaften.
Entspannungszonen: Vom Balkon genießen Sie den Blick auf das Treiben der Stadt. Ein separater Kellerraum sorgt für zusätzlichen Stauraum.
Aktuell ist die Wohnung noch vermietet bis zum 1.12.2025.
3‑Zimmer‑Maisonette‑Wohnung verbindet modernen Komfort mit historischem Flair und befindet
sich mitten im Zentrum. Einkaufsmöglichkeiten, Ärzte, Apotheke sowie Bahn‑ und Busanschluss sind
nur wenige Gehminuten entfernt – ideal für all jene, die kurze Wege schätzen und trotzdem im Grünen
wohnen möchten.
Highlights der Wohnung
Helles Raumkonzept: Im Obergeschoss erwartet Sie ein großzügiger, offener Wohn‑/Ess‑/Küchenbereich mit viel Platz für gemütliche Stunden. Eine moderne Einbauküche ist bereits
vorhanden.
Drei Zimmer über zwei Etagen: Die Wohnung erstreckt sich über die 1. und 2. Etage und bietet neben dem offenen Wohnbereich zwei weitere Zimmer, die sich perfekt als Schlaf‑, Arbeits‑ oder
Kinderzimmer eignen. Der Zugang erfolgt über die erste Etage.
Zwei moderne Bäder: Sowohl oben als auch unten befinden sich jeweils ein Bad mit Dusche
und WC – perfekt für Familien, Paare oder Wohngemeinschaften.
Entspannungszonen: Vom Balkon genießen Sie den Blick auf das Treiben der Stadt. Ein separater Kellerraum sorgt für zusätzlichen Stauraum.
Aktuell ist die Wohnung noch vermietet bis zum 1.12.2025.
Lage
Hauptstraße73547 Lorch
Lorch
Der aktuelle durchschnittliche Quadratmeterpreis beträgt 11,44 €/m² in Lorch.
Mit Mietspiegel
Lorch vergleichen
Was kostet dein Umzug?
Du planst einen Umzug? Finde jetzt die günstigste Umzugsfirma in deiner Region!
Umzugskosten berechnen Schütze dich vor Betrug!
Leiste keinerlei Zahlung im Vorraus!
Beachte unsere Sicherheitshinweise zum Thema Immobilienbetrug und lies, woran du solche Anzeigen erkennen kannst und wie du dich vor Betrügern schützt.
Anzeige melden Beachte unsere Sicherheitshinweise zum Thema Immobilienbetrug und lies, woran du solche Anzeigen erkennen kannst und wie du dich vor Betrügern schützt.
*Anzeige

Ähnliche Wohnungen bei ImmoScout24
Lorch
- Miete
- 850 €
- Zimmer
- 3 Zi.
- Fläche
- 105 Zi.
Weitere Ergebnisse für:
Wohnungen
Lorch;
Immobilien
Lorch;
Haus mieten
Lorch;
WG Zimmer
Lorch;
Wohnung
Lorch kaufen;
Haus kaufen
Lorch;
Immobilienpreise
Lorch Mietspiegel
Lorch wohnungsboerse.net übernimmt keine Gewähr für von Dritten gemachte Angaben