
Erdgeschosswohnung in Bad Driburg
Gepflegte 4-Zimmer Wohnung mit Balkon in Bad Driburg
auf der Karte ansehenUmzugskosten berechnen
- Kaltmiete
- 800 €
- Zimmer
- 4
- Fläche
- 88 m²
4 Aufrufe
Objekt-ID: 38612578
Objekttyp: | Erdgeschosswohnung |
Zimmer: | 4 |
Größe: | 88.00 m² |
Etage: | 1 von 1 |
Frei ab: | 1.1.2026 |
Preise & Kosten
Kaltmiete: | 800 € |
Nebenkosten: | 190 € |
Gesamtmiete: |
990 € |
Preis/m²: | 9,09 € |
Mit Mietspiegel Bad Driburg vergleichen | |
Kaution: | k.A. |
Immobilie
Balkon
Einbauküche
Keller
Baujahr: | 1902 |
Befeuerungsart: | Gas |
Energieausweis: | Energieausweis in Vorbereitung |
Objektbeschreibung
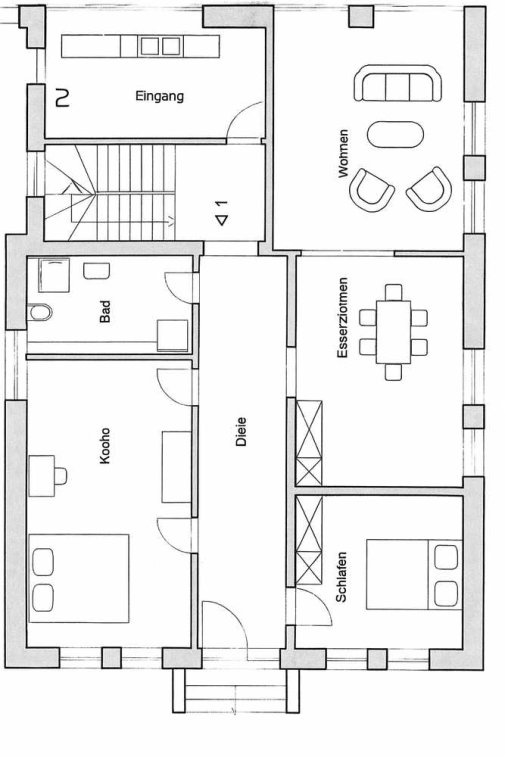
Diese gepflegte 4-Zimmer-Wohnung mit ca. 88 m² Wohnfläche befindet sich im Erdgeschoss eines charmanten Gebäudes aus dem Jahr 1902 in Bad Driburg.
Die Lage ist sehr zentral im Herzen von Bad Driburg und dadurch sehr gut gelegen um alle Einkäufe des Alltags zu Fuss erledigen zu können. Rewe ist zu Fuss 3 mins entfernt, der Bahnhof zu Fuss 8 mins.
Die Wohnung wurde zuletzt 2021 modernisiert und verfügt über eine normale Innenausstattung. Ein Balkon lädt zum Entspannen ein, und eine Einbauküche ist bereits vorhanden. Die Beheizung erfolgt über eine Gasheizung, deren Kosten in den Nebenkosten enthalten sind. Ein eigener Keller bietet zusätzlichen Stauraum. Die Wohnung ist ab dem 01.01.2026 verfügbar. Haustiere sind in dieser Wohnung nicht gestattet.
Die Lage ist sehr zentral im Herzen von Bad Driburg und dadurch sehr gut gelegen um alle Einkäufe des Alltags zu Fuss erledigen zu können. Rewe ist zu Fuss 3 mins entfernt, der Bahnhof zu Fuss 8 mins.
Die Wohnung wurde zuletzt 2021 modernisiert und verfügt über eine normale Innenausstattung. Ein Balkon lädt zum Entspannen ein, und eine Einbauküche ist bereits vorhanden. Die Beheizung erfolgt über eine Gasheizung, deren Kosten in den Nebenkosten enthalten sind. Ein eigener Keller bietet zusätzlichen Stauraum. Die Wohnung ist ab dem 01.01.2026 verfügbar. Haustiere sind in dieser Wohnung nicht gestattet.
Lage
33014 Bad DriburgBad Driburg
Der aktuelle durchschnittliche Quadratmeterpreis beträgt 7,50 €/m² in Bad Driburg.
Mit Mietspiegel
Bad-Driburg vergleichen
Was kostet dein Umzug?
Du planst einen Umzug? Finde jetzt die günstigste Umzugsfirma in deiner Region!
Umzugskosten berechnen Schütze dich vor Betrug!
Leiste keinerlei Zahlung im Vorraus!
Beachte unsere Sicherheitshinweise zum Thema Immobilienbetrug und lies, woran du solche Anzeigen erkennen kannst und wie du dich vor Betrügern schützt.
Anzeige melden Beachte unsere Sicherheitshinweise zum Thema Immobilienbetrug und lies, woran du solche Anzeigen erkennen kannst und wie du dich vor Betrügern schützt.
*Anzeige

Ähnliche Wohnungen bei ImmoScout24
Bad Driburg
- Miete
- 650 €
- Zimmer
- 4 Zi.
- Fläche
- 80 Zi.
Weitere Ergebnisse für:
Wohnungen
Bad Driburg;
Immobilien
Bad Driburg;
Haus mieten
Bad Driburg;
WG Zimmer
Bad Driburg;
Wohnung
Bad Driburg kaufen;
Haus kaufen
Bad Driburg;
Immobilienpreise
Bad Driburg Mietspiegel
Bad Driburg wohnungsboerse.net übernimmt keine Gewähr für von Dritten gemachte Angaben