
Etagenwohnung in Mutterstadt
Gepflegte 3-Zimmer Wohnung mit Balkon im 4. OG in Mutterstadt
auf der Karte ansehenUmzugskosten berechnen
- Kaltmiete
- 990 €
- Zimmer
- 3
- Fläche
- 95 m²
9 Aufrufe
Objekt-ID: 38633295
Objekttyp: | Etagenwohnung |
Zimmer: | 3 |
Größe: | 95.00 m² |
Etage: | 4 von 9 |
Frei ab: | 1.1.2026 |
Preise & Kosten
Kaltmiete: | 990 € |
Nebenkosten: | 300 € |
Gesamtmiete: |
1.290 € |
Preis/m²: | 10,42 € |
Mit Mietspiegel Mutterstadt vergleichen | |
Kaution: | k.A. |
Immobilie
Balkon
Aufzug
Keller
Tiere erlaubt
Baujahr: | 1980 |
Befeuerungsart: | Zentralheizung |
Energieausweis: | Verbrauchsausweis |
Endenergiebedarf: | 147,00 kWh/(m²*a) |
Energieeffizienzklasse: | E |
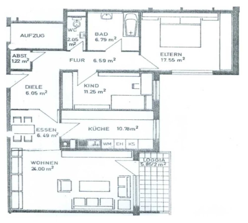
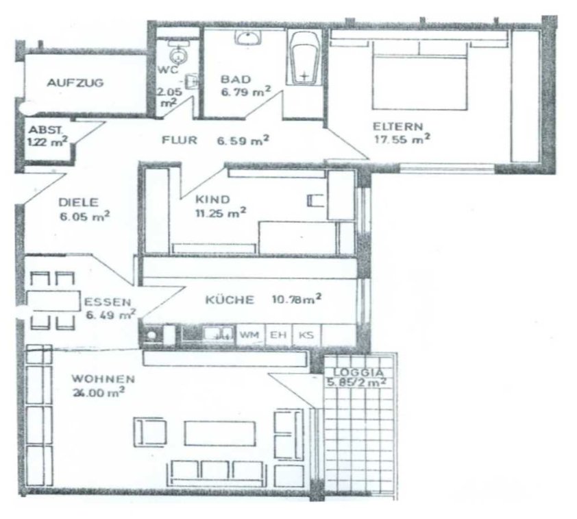
Objektbeschreibung
Diese gepflegte 3-Zimmer-Wohnung mit ca. 95 m² Wohnfläche befindet sich im 4. Obergeschoss eines modernen Apartmentgebäudes in Mutterstadt, Feldrandlage. Die Wohnung wurde zuletzt 2014 modernisiert und verfügt über eine gehobene Innenausstattung. Ein Balkon mit elektr. Markise lädt zum entspannen ein und ein Aufzug erleichtert den Zugang zu allen Etagen. Die Wohnung ist ab dem 01.01.2026 (evtl. 01.12.25) verfügbar. Haustiere sind nach Absprache erlaubt. Ein Tiefgaragenstellplatz u. 1 Außenstellplatz wird mitvermietet.
Lage
67112 MutterstadtMutterstadt
Der aktuelle durchschnittliche Quadratmeterpreis beträgt 11,06 €/m² in Mutterstadt.
Mit Mietspiegel
Mutterstadt vergleichen
Was kostet dein Umzug?
Du planst einen Umzug? Finde jetzt die günstigste Umzugsfirma in deiner Region!
Umzugskosten berechnen Schütze dich vor Betrug!
Leiste keinerlei Zahlung im Vorraus!
Beachte unsere Sicherheitshinweise zum Thema Immobilienbetrug und lies, woran du solche Anzeigen erkennen kannst und wie du dich vor Betrügern schützt.
Anzeige melden Beachte unsere Sicherheitshinweise zum Thema Immobilienbetrug und lies, woran du solche Anzeigen erkennen kannst und wie du dich vor Betrügern schützt.
*Anzeige

Ähnliche Wohnungen bei ImmoScout24
Mutterstadt
- Miete
- 850 €
- Zimmer
- 3 Zi.
- Fläche
- 85 Zi.
Weitere Ergebnisse für:
Wohnungen
Mutterstadt;
Immobilien
Mutterstadt;
Haus mieten
Mutterstadt;
WG Zimmer
Mutterstadt;
Wohnung
Mutterstadt kaufen;
Haus kaufen
Mutterstadt;
Immobilienpreise
Mutterstadt Mietspiegel
Mutterstadt wohnungsboerse.net übernimmt keine Gewähr für von Dritten gemachte Angaben