
Etagenwohnung in Münster-Kinderhaus-West
Wohnen mit der Wärme der Sonne - Helle 4,5 Zimmer Whg mit großer Terrasse
auf der Karte ansehenUmzugskosten berechnen
- Kaltmiete
- 1.678,66 €
- Zimmer
- 4
- Fläche
- 126 m²
9 Aufrufe
Objekt-ID: 38640509
Objekttyp: | Etagenwohnung |
Zimmer: | 4 |
Größe: | 126.00 m² |
Etage: | 2 von 3 |
Frei ab: | 1.1.2026 |
Preise & Kosten
Kaltmiete: | 1.678,66 € |
Nebenkosten: | 317,01 € |
Gesamtmiete: |
1.995,67 € |
Preis/m²: | 13,32 € |
Mit Mietspiegel Münster vergleichen | |
Kaution: | k.A. |
Immobilie
Balkon
Terrasse
Garten
Keller
Baujahr: | 2023 |
Befeuerungsart: | Solar |
Energieausweis: | Bedarfsausweis |
Endenergiebedarf: | 16,00 kWh/(m²*a) |
Energieeffizienzklasse: | A+ |
Objektbeschreibung
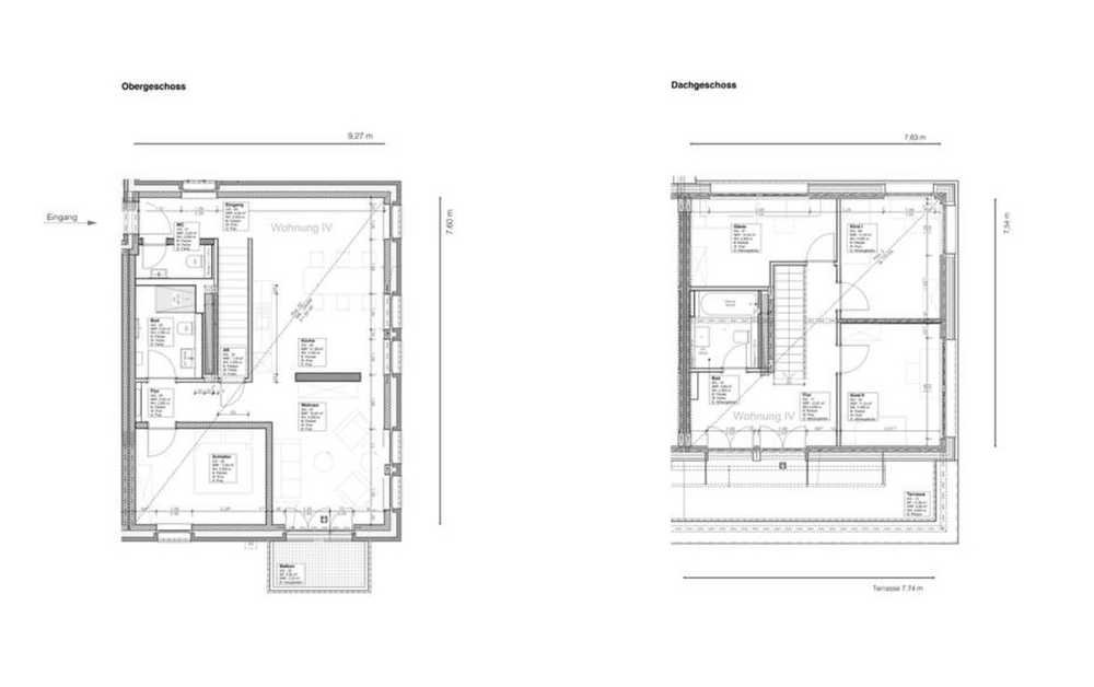
Bei dem Objekt handelt es sich um eine 4,5-Zimmer-Wohnung mit einem Staffelgeschoss in Holzbauweise. Die Wohnung erstreckt sich über zwei Ebenen und bietet eine durchdachte Raumaufteilung. Im oberen Geschoss befindet sich eine große Terrasse, die zusätzlichen Wohnraum im Freien schafft.
Das Gebäude wird über eine Solarthermieanlage mit einem 12.000-Liter-Wärmespeicher beheizt. Diese Anlage macht das Haus zu großen Teilen energieautark. Die restliche Wärme wird durch eine Wärmepumpe erzeugt.
Das Gebäude wird über eine Solarthermieanlage mit einem 12.000-Liter-Wärmespeicher beheizt. Diese Anlage macht das Haus zu großen Teilen energieautark. Die restliche Wärme wird durch eine Wärmepumpe erzeugt.
Lage
Westhoffstraße48159 Münster
Münster Kinderhaus-West
Der aktuelle durchschnittliche Quadratmeterpreis beträgt 11,63 €/m² in Münster - Kinderhaus-West. Der durchschnittliche Quadratmeterpreis in Münster liegt derzeit bei 13,27 €/m².
Mit Mietspiegel
Münster vergleichen
Was kostet dein Umzug?
Du planst einen Umzug? Finde jetzt die günstigste Umzugsfirma in deiner Region!
Umzugskosten berechnen Schütze dich vor Betrug!
Leiste keinerlei Zahlung im Vorraus!
Beachte unsere Sicherheitshinweise zum Thema Immobilienbetrug und lies, woran du solche Anzeigen erkennen kannst und wie du dich vor Betrügern schützt.
Anzeige melden Beachte unsere Sicherheitshinweise zum Thema Immobilienbetrug und lies, woran du solche Anzeigen erkennen kannst und wie du dich vor Betrügern schützt.
*Anzeige

Ähnliche Wohnungen bei ImmoScout24
Münster-Kinderhaus-West
- Miete
- 1.550 €
- Zimmer
- 4 Zi.
- Fläche
- 120 Zi.
Weitere Ergebnisse für:
Wohnungen
Münster;
Immobilien
Münster;
Haus mieten
Münster;
WG Zimmer
Münster;
Wohnung
Münster kaufen;
Haus kaufen
Münster;
Immobilienpreise
Münster Mietspiegel
Münster wohnungsboerse.net übernimmt keine Gewähr für von Dritten gemachte Angaben