
Etagenwohnung in Rockenhausen
Erstbezug nach Sanierung - Stilvolle, barrierefreie 2-Zimmer-Wohnung mit Balkon in zentraler Lage
auf der Karte ansehenUmzugskosten berechnen
- Kaltmiete
- 700 €
- Zimmer
- 2
- Fläche
- 52 m²
1 Aufrufe
Objekt-ID: 38705442
Objekttyp: | Etagenwohnung |
Zimmer: | 2 |
Größe: | 52.00 m² |
Etage: | 1 von 3 |
Frei ab: | 1.12.2025 |
Preise & Kosten
Kaltmiete: | 700 € |
Nebenkosten: | 160 € |
Gesamtmiete: |
860 € |
Preis/m²: | 13,46 € |
Mit Mietspiegel Rockenhausen vergleichen | |
Kaution: | k.A. |
Immobilie
Balkon
Einbauküche
Aufzug
Keller
Behindertengerecht
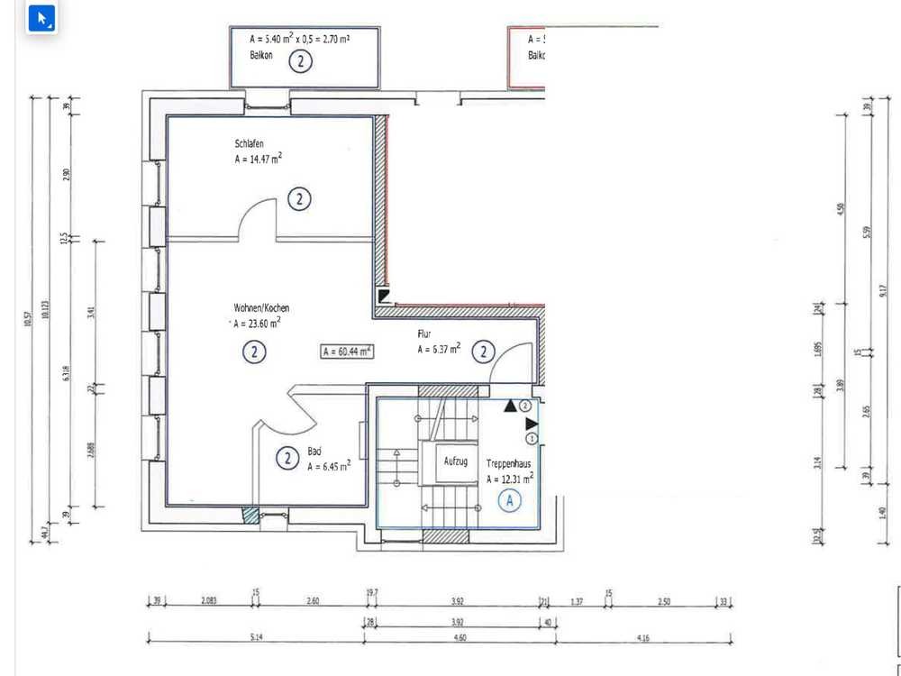
Objektbeschreibung
Ab 01.12.2025 steht diese hochwertig sanierte Wohnung in der Ringstraße 3 zur Vermietung. Das ehemalige Gemeindehaus wurde 2025 vollständig entkernt und mit viel Liebe zum Detail in sechs moderne Wohneinheiten nach KfW-70 EE-Standard umgebaut.
Die Wohnung Nr. 2 liegt im Erdgeschoss und bietet auf ca. 52 m² komfortables Wohnen mit klarer Raumaufteilung:
- freundlicher Eingangsbereich / Diele
- modernes Duschbad mit hochwertigen Fliesen und Armaturen
- großzügiger Wohn-Essbereich mit separater Küche
- sonniger Süd-Balkon (ca. 5,7 m²)
- eigener Abstellraum im Keller
- PKW-Stellplatz direkt am Haus
Die Wohnung ist vollständig barrierefrei, mit Fußbodenheizung, Vinyl-Designboden, dreifach verglasten Fenstern und elektrischen Rollläden ausgestattet. Eine dezentrale Lüftungsanlage mit Wärmerückgewinnung sorgt für frische Luft und niedrige Energiekosten.
Das Gebäude verfügt über einen Aufzug, eine moderne Luft-Wasser-Wärmepumpe mit PV-Anlage für den Allgemeinstrom und eine helle, freundliche Hausgemeinschaft.
Eckdaten:
Wohnfläche: ca. 52 m²
Zimmer: 2
Etage: EG
Bezug: 01.12.2025
Kaltmiete: 700,-€
Nebenkosten: 160,-€
Stellplatz: 25,-€
Energieeffizienz: KfW 70 EE
Lage
Ringstraße67806 Rockenhausen
Rockenhausen
Der aktuelle durchschnittliche Quadratmeterpreis beträgt 8,90 €/m² in Rockenhausen.
Mit Mietspiegel
Rockenhausen vergleichen
Was kostet dein Umzug?
Du planst einen Umzug? Finde jetzt die günstigste Umzugsfirma in deiner Region!
Umzugskosten berechnen Schütze dich vor Betrug!
Leiste keinerlei Zahlung im Vorraus!
Beachte unsere Sicherheitshinweise zum Thema Immobilienbetrug und lies, woran du solche Anzeigen erkennen kannst und wie du dich vor Betrügern schützt.
Anzeige melden Beachte unsere Sicherheitshinweise zum Thema Immobilienbetrug und lies, woran du solche Anzeigen erkennen kannst und wie du dich vor Betrügern schützt.
*Anzeige

Ähnliche Wohnungen bei ImmoScout24
Rockenhausen
- Miete
- 550 €
- Zimmer
- 2 Zi.
- Fläche
- 45 Zi.
Weitere Ergebnisse für:
Wohnungen
Rockenhausen;
Immobilien
Rockenhausen;
Haus mieten
Rockenhausen;
WG Zimmer
Rockenhausen;
Wohnung
Rockenhausen kaufen;
Haus kaufen
Rockenhausen;
Immobilienpreise
Rockenhausen Mietspiegel
Rockenhausen wohnungsboerse.net übernimmt keine Gewähr für von Dritten gemachte Angaben