
Erdgeschosswohnung in Bechtheim
Großzügige 5-Zimmer Erdgeschosswohnung in Bechtheim
auf der Karte ansehenUmzugskosten berechnen
- Kaltmiete
- 1.380 €
- Zimmer
- 5
- Fläche
- 121.09 m²
2 Aufrufe
Objekt-ID: 38708632
Objekttyp: | Erdgeschosswohnung |
Zimmer: | 5 |
Größe: | 121.09 m² |
Frei ab: | 1.12.2025 |
Preise & Kosten
Kaltmiete: | 1.380 € |
Nebenkosten: | 350 € |
Gesamtmiete: |
1.730 € |
Preis/m²: | 11,40 € |
Mit Mietspiegel Bechtheim vergleichen | |
Kaution: | k.A. |
Immobilie
Einbauküche
Baujahr: | 1775 |
Befeuerungsart: | Öl |
Objektbeschreibung
Diese geräumige 5-Zimmer Erdgeschosswohnung mit ca. 121 m² Wohnfläche in Bechtheim steht ab dem 01.12.2025 zur Anmietung bereit. Die Wohnung verfügt über eine ausgestattete Küche und ein Badezimmer sowie ein separates Gäste-WC.
Die Wohnfläche bietet viel Platz für Familien oder Paare, die ein großzügiges Raumangebot schätzen.
Geheizt wird mit Öl, die Warmwasserzubereitung erfolgt über moderne Boiler.
T-DSL 250mBit/s verfügbar
Anmeldung für Glasfaserausbau bereits gestellt.
Die Wohnung ist aktuell in Renovierung und ist ca. ab Dezember verfügbar.
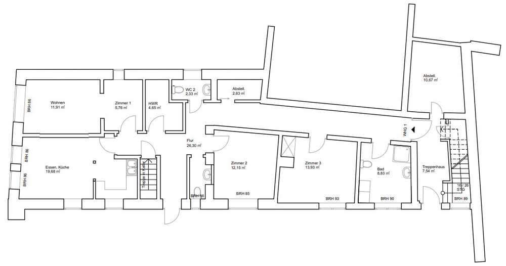
Bilder folgen, zur Überisicht der Grundriss.
Die Wohnfläche bietet viel Platz für Familien oder Paare, die ein großzügiges Raumangebot schätzen.
Geheizt wird mit Öl, die Warmwasserzubereitung erfolgt über moderne Boiler.
T-DSL 250mBit/s verfügbar
Anmeldung für Glasfaserausbau bereits gestellt.
Die Wohnung ist aktuell in Renovierung und ist ca. ab Dezember verfügbar.
Bilder folgen, zur Überisicht der Grundriss.
Lage
Martin-Luther-Straße67595 Bechtheim
Bechtheim
Der aktuelle durchschnittliche Quadratmeterpreis beträgt 9,95 €/m² in Bechtheim.
Mit Mietspiegel
Bechtheim vergleichen
Was kostet dein Umzug?
Du planst einen Umzug? Finde jetzt die günstigste Umzugsfirma in deiner Region!
Umzugskosten berechnen Schütze dich vor Betrug!
Leiste keinerlei Zahlung im Vorraus!
Beachte unsere Sicherheitshinweise zum Thema Immobilienbetrug und lies, woran du solche Anzeigen erkennen kannst und wie du dich vor Betrügern schützt.
Anzeige melden Beachte unsere Sicherheitshinweise zum Thema Immobilienbetrug und lies, woran du solche Anzeigen erkennen kannst und wie du dich vor Betrügern schützt.
*Anzeige

Ähnliche Wohnungen bei ImmoScout24
Bechtheim
- Miete
- 1.250 €
- Zimmer
- 5 Zi.
- Fläche
- 115 Zi.
Weitere Ergebnisse für:
Wohnungen
Bechtheim;
Immobilien
Bechtheim;
Haus mieten
Bechtheim;
WG Zimmer
Bechtheim;
Wohnung
Bechtheim kaufen;
Haus kaufen
Bechtheim;
Immobilienpreise
Bechtheim Mietspiegel
Bechtheim wohnungsboerse.net übernimmt keine Gewähr für von Dritten gemachte Angaben