
Etagenwohnung in Hennigsdorf
Objekt nicht gefunden
auf der Karte ansehenUmzugskosten berechnen
- Kaltmiete
- 745 €
- Zimmer
- 2
- Fläche
- 61.99 m²
8 Aufrufe
Objekt-ID: 38727898
| Objekttyp: | Etagenwohnung |
| Zimmer: | 2 |
| Größe: | 61.99 m² |
| Etage: | 2 von 3 |
| Frei ab: | Dezember |
Preise & Kosten
| Kaltmiete: | k.A. |
| Nebenkosten: | 300 € |
| Gesamtmiete: |
k.A. |
| Preis/m²: | 12,02 € |
| Mit Mietspiegel Hennigsdorf vergleichen | |
| Kaution: | k.A. |
Immobilie
Balkon
Einbauküche
Aufzug
Keller
| Baujahr: | 1998 |
| Befeuerungsart: | Fernwärme |
| Energieausweis: | Verbrauchsausweis |
| Energieverbrauchskennwert: | 81,00 kWh/(m²*a) |
| Energieverbrauch für Warmwasser enthalten? | Ja |
Objektbeschreibung
Die Wohnung befindet sich in einer idyllischen Wohnanlage die direkt an der Havel und dem Havelkanal gelegen ist. Durch den integrierten Yachthafen und den an der Havel geschaffenen Naturbadestrand fühlt man sich zu Hause - wie im Urlaub.
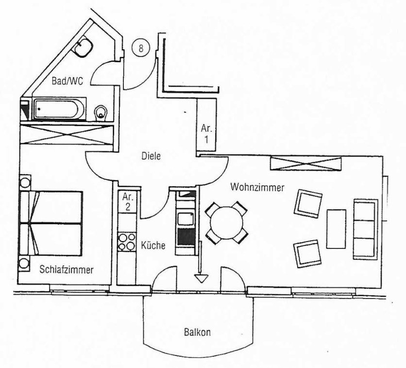
Die lichtdurchflutete 2-Zimmer-Wohnung liegt im 2.Obergeschoss eines Mehrfamilienhauses (Aufzug vorhanden).
Die Wohnung verfügt über ein angenehm großes Wohnzimmer mit angrenzender, teiloffener Küche und Zugang zum Südbalkon, ein Schlafzimmer, Küche inkl. Einbauküche und ein Wannenbad. Im Flur befindet sich ein praktischer Einbauschrank. Zur Wohnung gehört ein Kellerraum und ein Tiefgaragenstellplatz.
Die Wohnung wird frisch gestrichen und mit Designboden ausgestattet.
Die lichtdurchflutete 2-Zimmer-Wohnung liegt im 2.Obergeschoss eines Mehrfamilienhauses (Aufzug vorhanden).
Die Wohnung verfügt über ein angenehm großes Wohnzimmer mit angrenzender, teiloffener Küche und Zugang zum Südbalkon, ein Schlafzimmer, Küche inkl. Einbauküche und ein Wannenbad. Im Flur befindet sich ein praktischer Einbauschrank. Zur Wohnung gehört ein Kellerraum und ein Tiefgaragenstellplatz.
Die Wohnung wird frisch gestrichen und mit Designboden ausgestattet.
Lage
Lindenring16761 Hennigsdorf
Hennigsdorf
Der aktuelle durchschnittliche Quadratmeterpreis beträgt 12,96 €/m² in Hennigsdorf.
Mit Mietspiegel
Hennigsdorf vergleichen
Was kostet dein Umzug?
Du planst einen Umzug? Finde jetzt die günstigste Umzugsfirma in deiner Region!
Umzugskosten berechnen Schütze dich vor Betrug!
Leiste keinerlei Zahlung im Vorraus!
Beachte unsere Sicherheitshinweise zum Thema Immobilienbetrug und lies, woran du solche Anzeigen erkennen kannst und wie du dich vor Betrügern schützt.
Anzeige melden Beachte unsere Sicherheitshinweise zum Thema Immobilienbetrug und lies, woran du solche Anzeigen erkennen kannst und wie du dich vor Betrügern schützt.
*Anzeige
Ähnliche Wohnungen bei ImmoScout24
Hennigsdorf
- Miete
- 600 €
- Zimmer
- 2 Zi.
- Fläche
- 55 Zi.
Anbieter
Diese Anzeige ist momentan deaktiviert. Daher ist eine Kontaktaufnahme nicht möglich.
Weitere Ergebnisse für:
Wohnungen
Hennigsdorf;
Immobilien
Hennigsdorf;
Haus mieten
Hennigsdorf;
WG Zimmer
Hennigsdorf;
Wohnung
Hennigsdorf kaufen;
Haus kaufen
Hennigsdorf;
Immobilienpreise
Hennigsdorf Mietspiegel
Hennigsdorf wohnungsboerse.net übernimmt keine Gewähr für von Dritten gemachte Angaben