Erdgeschosswohnung in Braunsbedra
schöne helle, frisch renovierte 2-Raum Wohnung in Neumark - Braunsbedra (nur ca. 400m zum Geiseltalsee)
auf der Karte ansehenUmzugskosten berechnen
- Kaltmiete
- 350 €
- Zimmer
- 2
- Fläche
- 55 m²
91 Aufrufe
Objekt-ID: 38784894
| Objekttyp: | Erdgeschosswohnung |
| Zimmer: | 2 |
| Größe: | 55.00 m² |
| Frei ab: | ab sofort |
Preise & Kosten
| Kaltmiete: | 350 € |
| Nebenkosten: | 120 € |
| Miete für Garage/Stellplatz: | 15 € |
| Gesamtmiete: |
470 € |
| Preis/m²: | 6,36 € |
| Mit Mietspiegel Braunsbedra vergleichen | |
| Kaution: | 1050 |
Immobilie
Keller
| Baujahr: | 1952 |
| Objektzustand: | renoviert |
| Befeuerungsart: | Gas |
| Energieausweis: | Energieausweis in Vorbereitung |
Objektbeschreibung
Zur Vermietung steht eine attraktive, helle 2-Raum Wohnung im Erdgeschoss eines gut gepflegten kleinen Mehrfamilienhauses mit einem PKW-Stellplatz, Wäscheplatz und Gemeinschaftsrasenfläche.
Das Mehrfamilienhaus befindet sich in Braunsbedra in unmittelbarer Nähe zum Geiseltalsee. Der romantische See mit seinem ca. 40 Kilometer langen Uferweg und die neu gestaltete Marina laden zu verschiedenen Freizeitaktivitäten, z.B. Bade- und Wassersport, Radfahren, Joggen, Wandern ein.
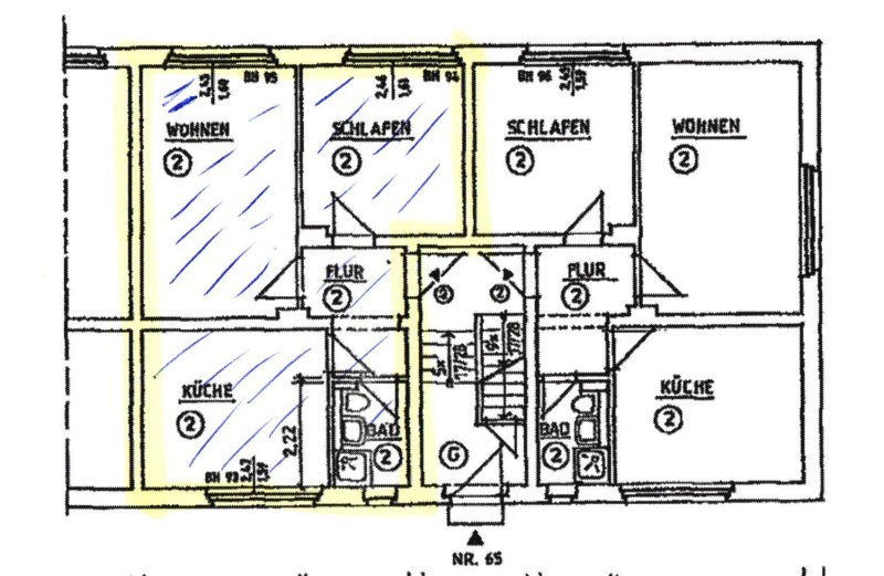
Die Wohnung hat eine Wohnfläche von ca. 55 qm. Sie verfügt über 2 Zimmer. Zur Wohnung gehören ein Tageslichtbad mit Dusche, eine große Küche und ein Kellerraum. SAT und Internetanschluss sind vorhanden. Die Beheizung der Wohnung erfolgt über eine Gaszentralheizungsanlage mit Heizkörpern in allen Zimmern.
Das gut gepflegte Haus mit dem umgebenden Gartengrundstück liegt in ruhiger und grüner Umgebung und ist dennoch gut erreichbar. In unmittelbarer Nachbarschaft gibt es Kleingärten mit wenigen freien Parzellen. In der Nähe finden sich Geschäfte, Ärzte, Restaurants, Schulen und Dienstleister zur Deckung des täglichen Lebensbedarfs.
Kaltmiete: 350,00 EUR
PKW-Stellplatz: 15,00 EUR
Nebenkosten-Vorausz.: 120,00 EUR
Warmmiete: 485,00
Kaution: 1.050,00 EUR (3 Monatskaltmieten)
Das Mehrfamilienhaus befindet sich in Braunsbedra in unmittelbarer Nähe zum Geiseltalsee. Der romantische See mit seinem ca. 40 Kilometer langen Uferweg und die neu gestaltete Marina laden zu verschiedenen Freizeitaktivitäten, z.B. Bade- und Wassersport, Radfahren, Joggen, Wandern ein.
Die Wohnung hat eine Wohnfläche von ca. 55 qm. Sie verfügt über 2 Zimmer. Zur Wohnung gehören ein Tageslichtbad mit Dusche, eine große Küche und ein Kellerraum. SAT und Internetanschluss sind vorhanden. Die Beheizung der Wohnung erfolgt über eine Gaszentralheizungsanlage mit Heizkörpern in allen Zimmern.
Das gut gepflegte Haus mit dem umgebenden Gartengrundstück liegt in ruhiger und grüner Umgebung und ist dennoch gut erreichbar. In unmittelbarer Nachbarschaft gibt es Kleingärten mit wenigen freien Parzellen. In der Nähe finden sich Geschäfte, Ärzte, Restaurants, Schulen und Dienstleister zur Deckung des täglichen Lebensbedarfs.
Kaltmiete: 350,00 EUR
PKW-Stellplatz: 15,00 EUR
Nebenkosten-Vorausz.: 120,00 EUR
Warmmiete: 485,00
Kaution: 1.050,00 EUR (3 Monatskaltmieten)
Lage
Geiseltalstraße06242 Braunsbedra
Braunsbedra
Der aktuelle durchschnittliche Quadratmeterpreis beträgt 6,58 €/m² in Braunsbedra.
Mit Mietspiegel
Braunsbedra vergleichen
Was kostet dein Umzug?
Du planst einen Umzug? Finde jetzt die günstigste Umzugsfirma in deiner Region!
Umzugskosten berechnen Schütze dich vor Betrug!
Leiste keinerlei Zahlung im Vorraus!
Beachte unsere Sicherheitshinweise zum Thema Immobilienbetrug und lies, woran du solche Anzeigen erkennen kannst und wie du dich vor Betrügern schützt.
Anzeige melden Beachte unsere Sicherheitshinweise zum Thema Immobilienbetrug und lies, woran du solche Anzeigen erkennen kannst und wie du dich vor Betrügern schützt.
*Anzeige
Ähnliche Wohnungen bei ImmoScout24
Braunsbedra
- Miete
- 200 €
- Zimmer
- 2 Zi.
- Fläche
- 45 Zi.
Anbieter
privater AnbieterWeitere Ergebnisse für:
Wohnungen
Braunsbedra;
Immobilien
Braunsbedra;
Haus mieten
Braunsbedra;
WG Zimmer
Braunsbedra;
Wohnung
Braunsbedra kaufen;
Haus kaufen
Braunsbedra;
Immobilienpreise
Braunsbedra Mietspiegel
Braunsbedra wohnungsboerse.net übernimmt keine Gewähr für von Dritten gemachte Angaben









