
Etagenwohnung in Lüneburg
4 Zimmer mit Balkon Bockelsberg, nähe Uni
auf der Karte ansehenUmzugskosten berechnen
- Kaltmiete
- 1.000 €
- Zimmer
- 4
- Fläche
- 91 m²
1 Aufrufe
Objekt-ID: 39005105
| Objekttyp: | Etagenwohnung |
| Zimmer: | 4 |
| Größe: | 91.00 m² |
| Etage: | 2 von 3 |
| Frei ab: | 13.12.2025 |
Preise & Kosten
| Kaltmiete: | 1.000 € |
| Nebenkosten: | 400 € |
| Gesamtmiete: |
1.400 € |
| Preis/m²: | 10,99 € |
| Mit Mietspiegel Lüneburg vergleichen | |
| Kaution: | k.A. |
Immobilie
Balkon
Einbauküche
Keller
| Baujahr: | 1997 |
| Befeuerungsart: | Fernwärme |
Objektbeschreibung
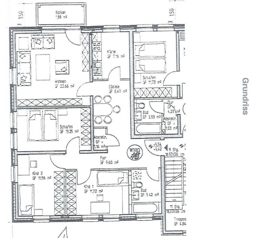
Modernes Gebäude. Die Wohnungstür führt in einen geräumigen Flur von dem 4 separat zugängliche Zimmer abgehen, die untereinander unverbunden sind. Gleiches gilt für Küche, Bad mit Duschkabine und Badewanne, sowie eine kleine Abstellkammer. Der Süd-Balkon gehört zum größten Zimmer, das sich gut als Wohnzimmer eignet und neben der Küche liegt.
Zur Wohnung gehört auch ein abschließbarer Kellerraum. Waschküche und Fahrradkeller sind zur Mitbenutzung. Autostellplatz gehört zur Wohnung. Die Wohnung wird ohne Einbauküche vermietet.
Zur Wohnung gehört auch ein abschließbarer Kellerraum. Waschküche und Fahrradkeller sind zur Mitbenutzung. Autostellplatz gehört zur Wohnung. Die Wohnung wird ohne Einbauküche vermietet.
Lage
21335 LüneburgLüneburg
Der aktuelle durchschnittliche Quadratmeterpreis beträgt 12,58 €/m² in Lüneburg.
Mit Mietspiegel
Lueneburg vergleichen
Was kostet dein Umzug?
Du planst einen Umzug? Finde jetzt die günstigste Umzugsfirma in deiner Region!
Umzugskosten berechnen Schütze dich vor Betrug!
Leiste keinerlei Zahlung im Vorraus!
Beachte unsere Sicherheitshinweise zum Thema Immobilienbetrug und lies, woran du solche Anzeigen erkennen kannst und wie du dich vor Betrügern schützt.
Anzeige melden Beachte unsere Sicherheitshinweise zum Thema Immobilienbetrug und lies, woran du solche Anzeigen erkennen kannst und wie du dich vor Betrügern schützt.
*Anzeige
Ähnliche Wohnungen bei ImmoScout24
Lüneburg
- Miete
- 850 €
- Zimmer
- 4 Zi.
- Fläche
- 85 Zi.
Weitere Ergebnisse für:
Wohnungen
Lüneburg;
Immobilien
Lüneburg;
Haus mieten
Lüneburg;
WG Zimmer
Lüneburg;
Wohnung
Lüneburg kaufen;
Haus kaufen
Lüneburg;
Immobilienpreise
Lüneburg Mietspiegel
Lüneburg wohnungsboerse.net übernimmt keine Gewähr für von Dritten gemachte Angaben