
Wohnung in Herne-Baukau-Ost
Wohnen im Kaiserquartier (ID)
auf der Karte ansehenUmzugskosten berechnen
- Kaltmiete
- 1.950 €
- Zimmer
- 4
- Fläche
- 130 m²
60 Aufrufe
Objekt-ID: 39009733
| Objekttyp: | Keine Angabe |
| Zimmer: | 4 |
| Größe: | 130.00 m² |
| Frei ab: | keine Angabe |
Preise & Kosten
| Kaltmiete: | 1.950 € |
| Nebenkosten: | 325 € |
| Gesamtmiete: |
2.275 € |
| Preis/m²: | 15,00 € |
| Mit Mietspiegel Herne vergleichen | |
| Kaution: | k.A. |
Immobilie
Balkon
Aufzug
Keller
Tiere erlaubt
Behindertengerecht
Objektbeschreibung
Die Neubauwohnungen im Kaiserquartier bieten modernen Wohnkomfort in hochwertiger, energieeffizienter Bauweise. In sechs Mehrfamilienhäusern entstehen insgesamt 88 attraktive Wohneinheiten. Alle Wohnungen verfügen über helle, großzügig geschnittene Grundrisse, moderne Bäder und hochwertige Ausstattungsdetails. Große Fensterflächen schaffen eine freundliche Wohnatmosphäre, während Balkone oder Terrassen – je nach Wohnung – und bodentiefe Fenster zusätzlichen Wohnwert bieten. Aufzüge und barrierearme Zugänge sorgen für hohen Komfort in allen Lebensphasen. Nachhaltige Gebäudetechnik, begrünte Dachflächen sowie ein energieeffizientes Gesamtkonzept runden das Angebot ab. Stellplätze und Fahrradabstellmöglichkeiten stehen im Quartier zur Verfügung.
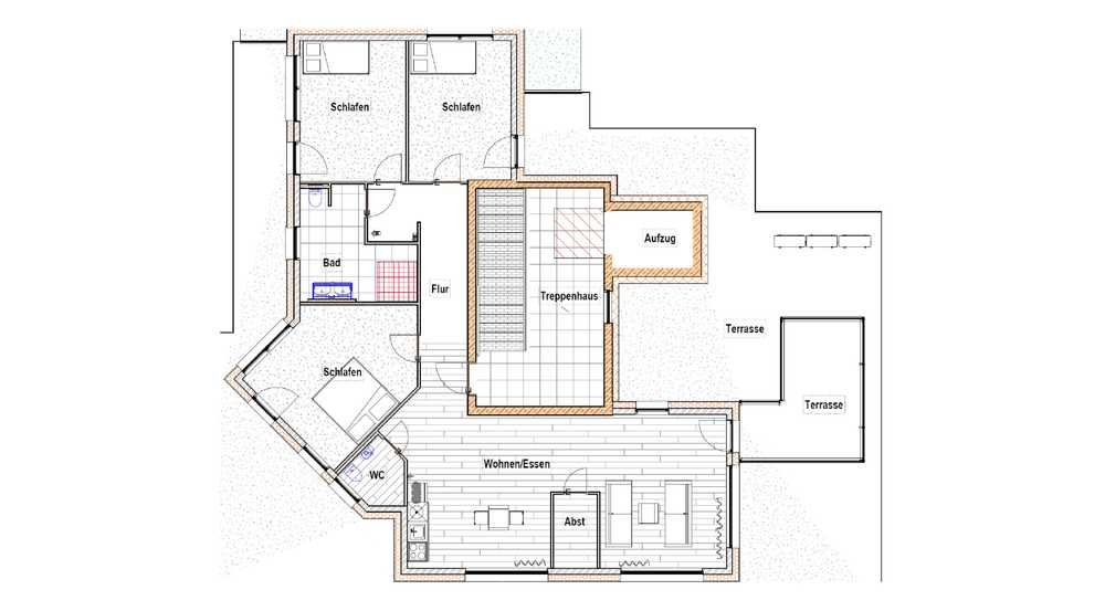
Im modernen Kaiserquartier erwartet Sie mit dem Wohntyp ID eine außergewöhnlich großzügige Dachgeschosswohnung mit 130 m² Wohnfläche. Die lichtdurchflutete 4-Zimmer-Wohnung kombiniert elegantes Design, hochwertige Ausstattung und ein besonderes Raumgefühl unter dem Dach – ideal für Paare, anspruchsvolle Familien oder Menschen, die großzügiges Wohnen schätzen.
Im modernen Kaiserquartier erwartet Sie mit dem Wohntyp ID eine außergewöhnlich großzügige Dachgeschosswohnung mit 130 m² Wohnfläche. Die lichtdurchflutete 4-Zimmer-Wohnung kombiniert elegantes Design, hochwertige Ausstattung und ein besonderes Raumgefühl unter dem Dach – ideal für Paare, anspruchsvolle Familien oder Menschen, die großzügiges Wohnen schätzen.
Lage
Kaiserstraße44629 Herne
Herne Baukau-Ost
Der aktuelle durchschnittliche Quadratmeterpreis beträgt 7,76 €/m² in Herne - Baukau-Ost. Der durchschnittliche Quadratmeterpreis in Herne liegt derzeit bei 7,83 €/m².
Mit Mietspiegel
Herne vergleichen
Was kostet dein Umzug?
Du planst einen Umzug? Finde jetzt die günstigste Umzugsfirma in deiner Region!
Umzugskosten berechnen Schütze dich vor Betrug!
Leiste keinerlei Zahlung im Vorraus!
Beachte unsere Sicherheitshinweise zum Thema Immobilienbetrug und lies, woran du solche Anzeigen erkennen kannst und wie du dich vor Betrügern schützt.
Anzeige melden Beachte unsere Sicherheitshinweise zum Thema Immobilienbetrug und lies, woran du solche Anzeigen erkennen kannst und wie du dich vor Betrügern schützt.
*Anzeige
Ähnliche Wohnungen bei ImmoScout24
Herne-Baukau-Ost
- Miete
- 1.800 €
- Zimmer
- 4 Zi.
- Fläche
- 120 Zi.
Anbieter
Weitere Ergebnisse für:
Wohnungen
Herne;
Immobilien
Herne;
Haus mieten
Herne;
WG Zimmer
Herne;
Wohnung
Herne kaufen;
Haus kaufen
Herne;
Immobilienpreise
Herne Mietspiegel
Herne wohnungsboerse.net übernimmt keine Gewähr für von Dritten gemachte Angaben