
Erdgeschosswohnung in Nittendorf
4,5-Zimmer Wohnung mit Balkon in Nittendorf
auf der Karte ansehenUmzugskosten berechnen
- Kaltmiete
- 1.100 €
- Zimmer
- 4.5
- Fläche
- 95 m²
7 Aufrufe
Objekt-ID: 39013539
| Objekttyp: | Erdgeschosswohnung |
| Zimmer: | 4.5 |
| Größe: | 95.00 m² |
| Frei ab: | 1.2.2026 |
Preise & Kosten
| Kaltmiete: | 1.100 € |
| Nebenkosten: | 200 € |
| Gesamtmiete: |
1.300 € |
| Preis/m²: | 11,58 € |
| Mit Mietspiegel Nittendorf vergleichen | |
| Kaution: | k.A. |
Immobilie
Balkon
Garten
Tiere erlaubt
Objektbeschreibung
Zur Vermietung steht eine traumhafte, frisch renovierte 4‑Zimmer‑Erdgeschosswohnung (95 m²) in einem ehemaligen Bauernhof im idyllischen Ortsteil Thumhausen bei Nittendorf – ideal für Familien, Naturfreunde und alle, die ländlichen Charme mit modernem Wohnkomfort verbinden möchten.
Das großzügige Grundstück bietet viel Platz zum Entspannen und Genießen und verfügt über rund 40 Obstbäume verschiedenster Sorten, deren Ernte gerne mitgenutzt werden darf. Zur Versorgung des Gartens stehen große Wassertanks bereit, die eine nachhaltige Bewässerung ermöglichen – perfekt für Hobbygärtner.
Details zur Wohnung:
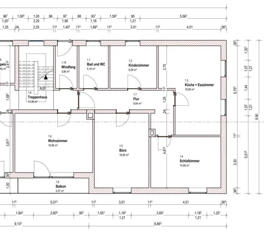
Die Abmessungen und Raumgestaltung der Wohnung sind dem Grundriss in den Bildern zu entnehmen. Die Wohnung wird unmöbliert vermietet. Rauchen in der Wohnung ist nicht gestattet. Durch die Hanglage des Hauses verfügt die Wohnung auf der Eingangsseite über einen ebenerdigen Zugang und auf der gegenüberliegenden Seite über einen Balkon.
Ausstattung:
• Smart Home Steuerung für Heizkörper, Rollläden und Beleuchtung
• In nahezu allen Räumen Netzwerkanschlüsse für schnelles Internet vorhanden
• In drei Zimmern Kaminanschluss vorhanden – ideal zum Anschluss eines eigenen Kaminofens für gemütliche Abende
• Neu modernisiertes Bad mit begehbarer Dusche, Badmöbeln und Waschmaschinenanschluss
• Einbauküche als großzügige Wohnküche im Mietumfang enthalten; Backofen und Herd wie neu, Dunstabzugshaube neu
• Zwei Zimmer mit Echtholzparkett, übrige Räume mit neuem Vinylboden
• Jedes Zimmer ist mit neuen Heizkörpern & dreifachverglasten Wärmeschutzfenstern ausgestattet
• Nachhaltige Zentralheizung mit Hackschnitzeln aus dem eigenen Wald
• Wallbox zur Mitbenutzung, Errichtung eigener Wallbox durch den Nutzer möglich
• Eigene Garage, eigener großer Gartenanteil und Balkon, Terrasse zur Mitbenutzung
• Haustiere willkommen
Das großzügige Grundstück bietet viel Platz zum Entspannen und Genießen und verfügt über rund 40 Obstbäume verschiedenster Sorten, deren Ernte gerne mitgenutzt werden darf. Zur Versorgung des Gartens stehen große Wassertanks bereit, die eine nachhaltige Bewässerung ermöglichen – perfekt für Hobbygärtner.
Details zur Wohnung:
Die Abmessungen und Raumgestaltung der Wohnung sind dem Grundriss in den Bildern zu entnehmen. Die Wohnung wird unmöbliert vermietet. Rauchen in der Wohnung ist nicht gestattet. Durch die Hanglage des Hauses verfügt die Wohnung auf der Eingangsseite über einen ebenerdigen Zugang und auf der gegenüberliegenden Seite über einen Balkon.
Ausstattung:
• Smart Home Steuerung für Heizkörper, Rollläden und Beleuchtung
• In nahezu allen Räumen Netzwerkanschlüsse für schnelles Internet vorhanden
• In drei Zimmern Kaminanschluss vorhanden – ideal zum Anschluss eines eigenen Kaminofens für gemütliche Abende
• Neu modernisiertes Bad mit begehbarer Dusche, Badmöbeln und Waschmaschinenanschluss
• Einbauküche als großzügige Wohnküche im Mietumfang enthalten; Backofen und Herd wie neu, Dunstabzugshaube neu
• Zwei Zimmer mit Echtholzparkett, übrige Räume mit neuem Vinylboden
• Jedes Zimmer ist mit neuen Heizkörpern & dreifachverglasten Wärmeschutzfenstern ausgestattet
• Nachhaltige Zentralheizung mit Hackschnitzeln aus dem eigenen Wald
• Wallbox zur Mitbenutzung, Errichtung eigener Wallbox durch den Nutzer möglich
• Eigene Garage, eigener großer Gartenanteil und Balkon, Terrasse zur Mitbenutzung
• Haustiere willkommen
Lage
93152 NittendorfNittendorf
Der aktuelle durchschnittliche Quadratmeterpreis beträgt 10,77 €/m² in Nittendorf.
Mit Mietspiegel
Nittendorf vergleichen
Was kostet dein Umzug?
Du planst einen Umzug? Finde jetzt die günstigste Umzugsfirma in deiner Region!
Umzugskosten berechnen Schütze dich vor Betrug!
Leiste keinerlei Zahlung im Vorraus!
Beachte unsere Sicherheitshinweise zum Thema Immobilienbetrug und lies, woran du solche Anzeigen erkennen kannst und wie du dich vor Betrügern schützt.
Anzeige melden Beachte unsere Sicherheitshinweise zum Thema Immobilienbetrug und lies, woran du solche Anzeigen erkennen kannst und wie du dich vor Betrügern schützt.
*Anzeige
Ähnliche Wohnungen bei ImmoScout24
Nittendorf
- Miete
- 950 €
- Zimmer
- 4.5 Zi.
- Fläche
- 85 Zi.
Weitere Ergebnisse für:
Wohnungen
Nittendorf;
Immobilien
Nittendorf;
Haus mieten
Nittendorf;
WG Zimmer
Nittendorf;
Wohnung
Nittendorf kaufen;
Haus kaufen
Nittendorf;
Immobilienpreise
Nittendorf Mietspiegel
Nittendorf wohnungsboerse.net übernimmt keine Gewähr für von Dritten gemachte Angaben