
Etagenwohnung in Bad Schönborn
Langenbrücken Neue 3 Zimmer, Küche, Bad mit 2 Balkonen
auf der Karte ansehenUmzugskosten berechnen
- Kaltmiete
- 1.050 €
- Zimmer
- 3
- Fläche
- 73 m²
2 Aufrufe
Objekt-ID: 39076662
| Objekttyp: | Etagenwohnung |
| Zimmer: | 3 |
| Größe: | 73.00 m² |
| Etage: | 2 von 2 |
| Frei ab: | 1.3.2026 |
Preise & Kosten
| Kaltmiete: | 1.050 € |
| Nebenkosten: | 150 € |
| Gesamtmiete: |
1.200 € |
| Preis/m²: | 14,38 € |
| Mit Mietspiegel Bad Schönborn vergleichen | |
| Kaution: | k.A. |
Immobilie
Balkon
| Befeuerungsart: | Strom |
| Energieausweis: | Energieausweis in Vorbereitung |
Objektbeschreibung
Bitte beachten Sie: Wir nehmen ausschließlich Kontakt mit Bewerbern auf, die sich mit einer persönlichen Bewerbung vorstellen (Name, Alter, Personenzahl, Arbeitgeber und Einkommen bzw. Verdienst usw.).
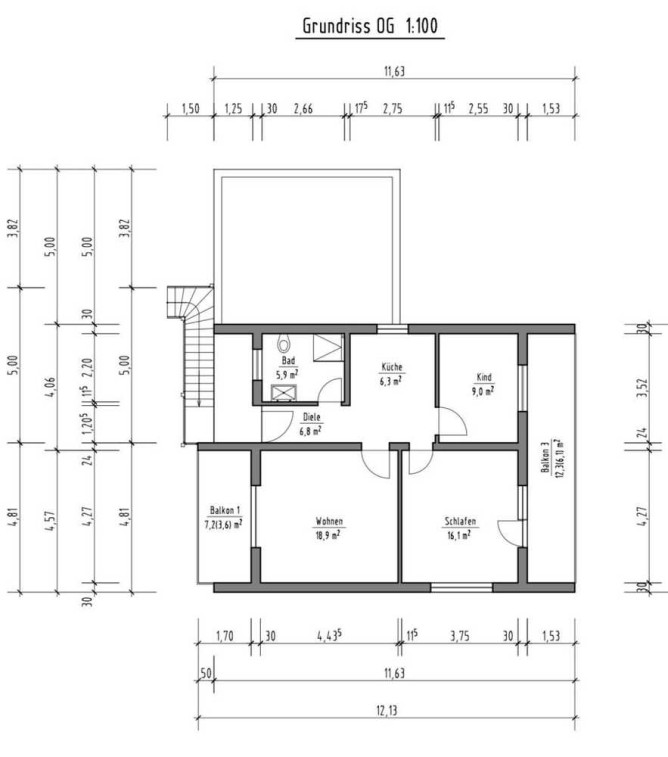
Ab dem 01.03.2026 können Sie diese sehr schöne, hochwertige 3-Zimmer-Wohnung im 1. Obergeschoss beziehen, die durch eine neue, gehobene Innenausstattung besticht.
Die Wohnung verfügt über eine Küche, drei einladende Zimmer (z. B. Esszimmer, Arbeitszimmer, Kinderzimmer oder Ähnliches), ein Wohnzimmer und ein Schlafzimmer, ein Bad mit Dusche, zwei Balkone sowie einen geräumigen Speicherraum, der direkt von der Wohnung aus zugänglich ist.
Durch die aufwendige Sanierung und Modernisierung im Jahr 2024 sind niedrige Energiekosten gewährleistet; ein aktueller Energieausweis liegt zur Besichtigung vor. Die beiden Balkone können Sie an sonnigen Tagen als erweitertes Wohnzimmer genießen.
Ein Abstellraum steht anstelle eines Kellerraums zur Verfügung und ist von außen bequem erreichbar. Zudem gehört ein PKW-Stellplatz direkt vor dem Haus zur Wohnung. Ein eigener, separater Eingang von außen führt direkt in Ihre Wohnung – praktisch und komfortabel.
Ab dem 01.03.2026 können Sie diese sehr schöne, hochwertige 3-Zimmer-Wohnung im 1. Obergeschoss beziehen, die durch eine neue, gehobene Innenausstattung besticht.
Die Wohnung verfügt über eine Küche, drei einladende Zimmer (z. B. Esszimmer, Arbeitszimmer, Kinderzimmer oder Ähnliches), ein Wohnzimmer und ein Schlafzimmer, ein Bad mit Dusche, zwei Balkone sowie einen geräumigen Speicherraum, der direkt von der Wohnung aus zugänglich ist.
Durch die aufwendige Sanierung und Modernisierung im Jahr 2024 sind niedrige Energiekosten gewährleistet; ein aktueller Energieausweis liegt zur Besichtigung vor. Die beiden Balkone können Sie an sonnigen Tagen als erweitertes Wohnzimmer genießen.
Ein Abstellraum steht anstelle eines Kellerraums zur Verfügung und ist von außen bequem erreichbar. Zudem gehört ein PKW-Stellplatz direkt vor dem Haus zur Wohnung. Ein eigener, separater Eingang von außen führt direkt in Ihre Wohnung – praktisch und komfortabel.
Lage
Lilienstraße76669 Bad Schönborn
Bad Schönborn
Der aktuelle durchschnittliche Quadratmeterpreis beträgt 12,18 €/m² in Bad Schönborn.
Mit Mietspiegel
Bad-Schoenborn vergleichen
Was kostet dein Umzug?
Du planst einen Umzug? Finde jetzt die günstigste Umzugsfirma in deiner Region!
Umzugskosten berechnen Schütze dich vor Betrug!
Leiste keinerlei Zahlung im Vorraus!
Beachte unsere Sicherheitshinweise zum Thema Immobilienbetrug und lies, woran du solche Anzeigen erkennen kannst und wie du dich vor Betrügern schützt.
Anzeige melden Beachte unsere Sicherheitshinweise zum Thema Immobilienbetrug und lies, woran du solche Anzeigen erkennen kannst und wie du dich vor Betrügern schützt.
*Anzeige
Ähnliche Wohnungen bei ImmoScout24
Bad Schönborn
- Miete
- 900 €
- Zimmer
- 3 Zi.
- Fläche
- 65 Zi.
Weitere Ergebnisse für:
Wohnungen
Bad Schönborn;
Immobilien
Bad Schönborn;
Haus mieten
Bad Schönborn;
WG Zimmer
Bad Schönborn;
Wohnung
Bad Schönborn kaufen;
Haus kaufen
Bad Schönborn;
Immobilienpreise
Bad Schönborn Mietspiegel
Bad Schönborn wohnungsboerse.net übernimmt keine Gewähr für von Dritten gemachte Angaben