
Etagenwohnung in Wörth am Rhein
Helle 2,5-Zimmer Wohnung im EG in Wörth am Rhein
auf der Karte ansehenUmzugskosten berechnen
- Kaltmiete
- 605 €
- Zimmer
- 2.5
- Fläche
- 55.2 m²
2 Aufrufe
Objekt-ID: 39080555
| Objekttyp: | Etagenwohnung |
| Zimmer: | 2.5 |
| Größe: | 55.20 m² |
| Frei ab: | 1.2.2026 |
Preise & Kosten
| Kaltmiete: | 605 € |
| Nebenkosten: | 200 € |
| Gesamtmiete: |
805 € |
| Preis/m²: | 10,96 € |
| Mit Mietspiegel Wörth am Rhein vergleichen | |
| Kaution: | k.A. |
Immobilie
Garten
Keller
Tiere erlaubt
| Baujahr: | 1967 |
| Befeuerungsart: | Zentralheizung |
| Energieausweis: | liegt vor |
Objektbeschreibung
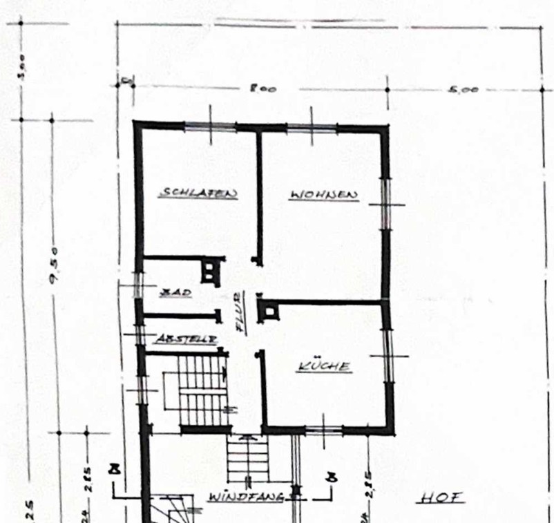
Diese helle 2,5-Zimmer-Wohnung mit ca. 55 m² Wohnfläche befindet sich im Erdgeschoss eines gepflegten Mehrfamilienhauses in Wörth am Rhein Ortsteil Schaidt. Die Wohnung bietet ein Badezimmer sowie eine schlichte, solide Innenausstattung, die Ihnen viel Raum für Ihre persönliche Gestaltung lässt.
Zur Wohnung gehören außerdem ein eigener Kellerraum sowie ein gemeinschaftlich nutzbarer Garten, der zum Entspannen einlädt. Haustiere sind nach Absprache erlaubt.
Die Wohnung ist ab dem 1.2.2026 verfügbar.
Ein besonderes Plus: Im Januar erhält das Gebäude eine neue Hybrid-Zentralheizung (Gas/Wärmepumpe) und zudem werden sämtliche Fenster erneuert – eine Investition, die den Wohnkomfort und die Energieeffizienz deutlich steigert.
Zur Wohnung gehören außerdem ein eigener Kellerraum sowie ein gemeinschaftlich nutzbarer Garten, der zum Entspannen einlädt. Haustiere sind nach Absprache erlaubt.
Die Wohnung ist ab dem 1.2.2026 verfügbar.
Ein besonderes Plus: Im Januar erhält das Gebäude eine neue Hybrid-Zentralheizung (Gas/Wärmepumpe) und zudem werden sämtliche Fenster erneuert – eine Investition, die den Wohnkomfort und die Energieeffizienz deutlich steigert.
Lage
76744 Wörth am RheinWörth am Rhein
Der aktuelle durchschnittliche Quadratmeterpreis beträgt 11,52 €/m² in Wörth am Rhein.
Mit Mietspiegel
Woerth-am-Rhein vergleichen
Was kostet dein Umzug?
Du planst einen Umzug? Finde jetzt die günstigste Umzugsfirma in deiner Region!
Umzugskosten berechnen Schütze dich vor Betrug!
Leiste keinerlei Zahlung im Vorraus!
Beachte unsere Sicherheitshinweise zum Thema Immobilienbetrug und lies, woran du solche Anzeigen erkennen kannst und wie du dich vor Betrügern schützt.
Anzeige melden Beachte unsere Sicherheitshinweise zum Thema Immobilienbetrug und lies, woran du solche Anzeigen erkennen kannst und wie du dich vor Betrügern schützt.
*Anzeige
Ähnliche Wohnungen bei ImmoScout24
Wörth am Rhein
- Miete
- 500 €
- Zimmer
- 2.5 Zi.
- Fläche
- 50 Zi.
Weitere Ergebnisse für:
Wohnungen
Wörth am Rhein;
Immobilien
Wörth am Rhein;
Haus mieten
Wörth am Rhein;
WG Zimmer
Wörth am Rhein;
Wohnung
Wörth am Rhein kaufen;
Haus kaufen
Wörth am Rhein;
Immobilienpreise
Wörth am Rhein Mietspiegel
Wörth am Rhein wohnungsboerse.net übernimmt keine Gewähr für von Dritten gemachte Angaben