
Etagenwohnung in Ammersbek
2 2/2 Zimmer Wohnung, Balkon, Vollbad
auf der Karte ansehenUmzugskosten berechnen
- Kaltmiete
- 920 €
- Zimmer
- 4
- Fläche
- 79 m²
11 Aufrufe
Objekt-ID: 39111818
| Objekttyp: | Etagenwohnung |
| Zimmer: | 4 |
| Größe: | 79.00 m² |
| Etage: | 2 |
| Frei ab: | 13.02.2026 |
Preise & Kosten
| Kaltmiete: | 920 € |
| Nebenkosten: | 320 € |
| Gesamtmiete: |
1.240 € |
| Preis/m²: | 11,65 € |
| Mit Mietspiegel Ammersbek vergleichen | |
| Kaution: | k.A. |
Immobilie
Balkon
Garten
Einbauküche
Keller
Tiere erlaubt
Objektbeschreibung
Moin,
mit diesem Inserat möchte ich einen Nachmieter für meine 2 2/2-Zimmer-Wohnung in guter Lage in Ammersbek zum 15.02.2026 finden.
Die Wohnung befindet sich im 2. OG eines Mehrfamilienhauses mit 6 Parteien. Sie zeichnet ein angenehmer, auch WG-fähigen, Schnitt und die schöne Lage aus. So sind U-Bahn, sowie Naherholungsmöglichkeiten, wie beispielsweise der Wohldorfer Wald, oder der Hoisbüttler Sportverein, als auch Einkaufsmöglichkeiten (Edeka, Aldi, Lidl, Budni, kleine Läden, fußläufig in maximal fünf Minuten erreichbar.
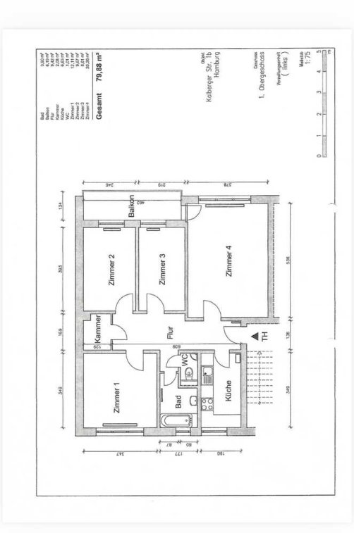
Die Wohnung selber ist wie im Grundriss oben zu sehen mit zwei vollwertigen, sowie zwei kleinen Zimmern ausgestattet. Wobei die kleinen Zimmer derart geschnitten sind, dass sie grundsätzlich als Schlafzimmer dienen könnten.
Inder Wohnung gibt es eine Einbauküche. Diese ist mit einem Kühlschrank mit Gefrierfach und einem Herd mir Backofen ausgerüstet.
Die Waschmaschine findet ihren Platz in einem dafür vorgesehenen Kellerabteil. Zudem gibt es einen gemeinsamen Trockenraum. Auch hat jeder Mieter ein eigenes Kellerabteil und es gibt einen gemeinsamen Fahrradstellplatz im Keller.
Es besteht die Möglichkeit, seperate zu den künftigen Mietvertrag, einen Vertrag über die Nutzung einer Garage, eines freien Stellplatzes, oder eines Stellplatzes mit Stromanschluss abzuschließen.
ICH MÖCHTE HIER FAIRERWEISE angeben, dass die Wohnung Renovierungsbedarf hat. So müssten auf jeden Fall die Tapeten neu gemacht werden. Hierbei müssten Sie sich allerdings Zwecks möglicher Kostenübernahmen mit der Hausverwaltung des Vermieters auseinander setzen.
GESUCHT werden maximal zwei Nachmieter. Es tut mir als Familienvater furchtbar leid hier schreiben zu müssen, dass Familien keine Chancen haben. Allerdings sucht der Vermieter Singles, oder Pärchen.
mit diesem Inserat möchte ich einen Nachmieter für meine 2 2/2-Zimmer-Wohnung in guter Lage in Ammersbek zum 15.02.2026 finden.
Die Wohnung befindet sich im 2. OG eines Mehrfamilienhauses mit 6 Parteien. Sie zeichnet ein angenehmer, auch WG-fähigen, Schnitt und die schöne Lage aus. So sind U-Bahn, sowie Naherholungsmöglichkeiten, wie beispielsweise der Wohldorfer Wald, oder der Hoisbüttler Sportverein, als auch Einkaufsmöglichkeiten (Edeka, Aldi, Lidl, Budni, kleine Läden, fußläufig in maximal fünf Minuten erreichbar.
Die Wohnung selber ist wie im Grundriss oben zu sehen mit zwei vollwertigen, sowie zwei kleinen Zimmern ausgestattet. Wobei die kleinen Zimmer derart geschnitten sind, dass sie grundsätzlich als Schlafzimmer dienen könnten.
Inder Wohnung gibt es eine Einbauküche. Diese ist mit einem Kühlschrank mit Gefrierfach und einem Herd mir Backofen ausgerüstet.
Die Waschmaschine findet ihren Platz in einem dafür vorgesehenen Kellerabteil. Zudem gibt es einen gemeinsamen Trockenraum. Auch hat jeder Mieter ein eigenes Kellerabteil und es gibt einen gemeinsamen Fahrradstellplatz im Keller.
Es besteht die Möglichkeit, seperate zu den künftigen Mietvertrag, einen Vertrag über die Nutzung einer Garage, eines freien Stellplatzes, oder eines Stellplatzes mit Stromanschluss abzuschließen.
ICH MÖCHTE HIER FAIRERWEISE angeben, dass die Wohnung Renovierungsbedarf hat. So müssten auf jeden Fall die Tapeten neu gemacht werden. Hierbei müssten Sie sich allerdings Zwecks möglicher Kostenübernahmen mit der Hausverwaltung des Vermieters auseinander setzen.
GESUCHT werden maximal zwei Nachmieter. Es tut mir als Familienvater furchtbar leid hier schreiben zu müssen, dass Familien keine Chancen haben. Allerdings sucht der Vermieter Singles, oder Pärchen.
Lage
Kolberger Straße22949 Ammersbek
Ammersbek
Der aktuelle durchschnittliche Quadratmeterpreis beträgt 13,40 €/m² in Ammersbek.
Mit Mietspiegel
Ammersbek vergleichen
Was kostet dein Umzug?
Du planst einen Umzug? Finde jetzt die günstigste Umzugsfirma in deiner Region!
Umzugskosten berechnen Schütze dich vor Betrug!
Leiste keinerlei Zahlung im Vorraus!
Beachte unsere Sicherheitshinweise zum Thema Immobilienbetrug und lies, woran du solche Anzeigen erkennen kannst und wie du dich vor Betrügern schützt.
Anzeige melden Beachte unsere Sicherheitshinweise zum Thema Immobilienbetrug und lies, woran du solche Anzeigen erkennen kannst und wie du dich vor Betrügern schützt.
*Anzeige
Ähnliche Wohnungen bei ImmoScout24
Ammersbek
- Miete
- 800 €
- Zimmer
- 4 Zi.
- Fläche
- 70 Zi.
Weitere Ergebnisse für:
Wohnungen
Ammersbek;
Immobilien
Ammersbek;
Haus mieten
Ammersbek;
WG Zimmer
Ammersbek;
Wohnung
Ammersbek kaufen;
Haus kaufen
Ammersbek;
Immobilienpreise
Ammersbek Mietspiegel
Ammersbek wohnungsboerse.net übernimmt keine Gewähr für von Dritten gemachte Angaben