
Etagenwohnung in Göppingen
Großzügige 4-Zimmer-Wohnung mit separatem WC in zentraler Lage von Göppingen
auf der Karte ansehenUmzugskosten berechnen
- Kaltmiete
- 1.040 €
- Zimmer
- 4
- Fläche
- 84.42 m²
1 Aufrufe
Objekt-ID: 39354478
| Objekttyp: | Etagenwohnung |
| Zimmer: | 4 |
| Größe: | 84.42 m² |
| Etage: | 1 von 2 |
| Frei ab: | 01.04.2025 |
Preise & Kosten
| Kaltmiete: | 1.040 € |
| Gesamtmiete: | k.A. |
| Preis/m²: | 12,32 € |
| Mit Mietspiegel Göppingen vergleichen | |
| Kaution: | k.A. |
Immobilie
Einbauküche
Keller
| Baujahr: | 1952 |
| Befeuerungsart: | Zentralheizung |
| Energieausweis: | Verbrauchsausweis |
| Endenergiebedarf: | 189,80 kWh/(m²*a) |
| Energieeffizienzklasse: | F |
Objektbeschreibung
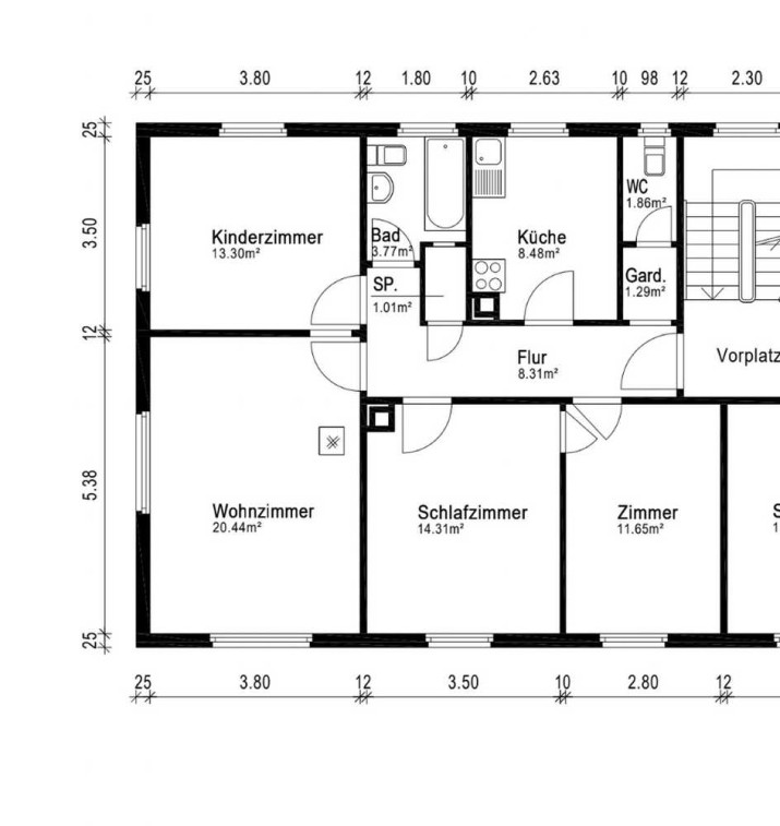
Zur Vermietung steht eine großzügige und gut geschnittene 4-Zimmer-Wohnung mit ca. 84,42 m² Wohnfläche im 1. Obergeschoss eines Mehrfamilienhauses in zentraler Lage von Göppingen.
Die Wohnung verfügt über ein großes Wohnzimmer, drei weitere Zimmer, die flexibel als Schlafzimmer, Kinderzimmer oder Homeoffice genutzt werden können, eine separate Küche, einen Flur mit Garderobenbereich sowie ein Badezimmer mit Badewanne. Zusätzlich steht ein separates WC zur Verfügung, was den Wohnkomfort insbesondere für Familien deutlich erhöht.
Ein Abstellraum innerhalb der Wohnung sorgt für zusätzlichen Stauraum. Die Wohnräume sind mit einem gepflegten Teppichboden ausgestattet, Küche, Bad und WC sind gefliest.
Die Wohnung eignet sich ideal für Familien, Paare mit Platzbedarf oder Wohngemeinschaften, die eine zentrale Lage und eine praktische Raumaufteilung schätzen.
Ein eigener Kellerraum gehört ebenfalls zur Wohnung.
Die Wohnung verfügt über ein großes Wohnzimmer, drei weitere Zimmer, die flexibel als Schlafzimmer, Kinderzimmer oder Homeoffice genutzt werden können, eine separate Küche, einen Flur mit Garderobenbereich sowie ein Badezimmer mit Badewanne. Zusätzlich steht ein separates WC zur Verfügung, was den Wohnkomfort insbesondere für Familien deutlich erhöht.
Ein Abstellraum innerhalb der Wohnung sorgt für zusätzlichen Stauraum. Die Wohnräume sind mit einem gepflegten Teppichboden ausgestattet, Küche, Bad und WC sind gefliest.
Die Wohnung eignet sich ideal für Familien, Paare mit Platzbedarf oder Wohngemeinschaften, die eine zentrale Lage und eine praktische Raumaufteilung schätzen.
Ein eigener Kellerraum gehört ebenfalls zur Wohnung.
Lage
Freihofstrasse73033 Göppingen
Göppingen
Der aktuelle durchschnittliche Quadratmeterpreis beträgt 12,14 €/m² in Göppingen.
Mit Mietspiegel
Goeppingen vergleichen
Was kostet dein Umzug?
Du planst einen Umzug? Finde jetzt die günstigste Umzugsfirma in deiner Region!
Umzugskosten berechnen Schütze dich vor Betrug!
Leiste keinerlei Zahlung im Vorraus!
Beachte unsere Sicherheitshinweise zum Thema Immobilienbetrug und lies, woran du solche Anzeigen erkennen kannst und wie du dich vor Betrügern schützt.
Anzeige melden Beachte unsere Sicherheitshinweise zum Thema Immobilienbetrug und lies, woran du solche Anzeigen erkennen kannst und wie du dich vor Betrügern schützt.
*Anzeige
Ähnliche Wohnungen bei ImmoScout24
Göppingen
- Miete
- 900 €
- Zimmer
- 4 Zi.
- Fläche
- 75 Zi.
Anbieter
Weitere Ergebnisse für:
Wohnungen
Göppingen;
Immobilien
Göppingen;
Haus mieten
Göppingen;
WG Zimmer
Göppingen;
Wohnung
Göppingen kaufen;
Haus kaufen
Göppingen;
Immobilienpreise
Göppingen Mietspiegel
Göppingen wohnungsboerse.net übernimmt keine Gewähr für von Dritten gemachte Angaben