
Etagenwohnung in Müssen
Helle 4-Zimmer-Wohnung mit Balkon in Müssen
auf der Karte ansehenUmzugskosten berechnen
- Kaltmiete
- 1.250 €
- Zimmer
- 4
- Fläche
- 95 m²
4 Aufrufe
Objekt-ID: 39434088
| Objekttyp: | Etagenwohnung |
| Zimmer: | 4 |
| Größe: | 95.00 m² |
| Etage: | 1 von 2 |
| Frei ab: | 1.8.2026 |
Preise & Kosten
| Kaltmiete: | 1.250 € |
| Nebenkosten: | 300 € |
| Gesamtmiete: |
1.550 € |
| Preis/m²: | 13,16 € |
| Kaution: | k.A. |
Immobilie
Balkon
Garten
Einbauküche
Keller
| Baujahr: | 2024 |
| Befeuerungsart: | Umweltwärme |
| Energieausweis: | liegt vor |
Objektbeschreibung
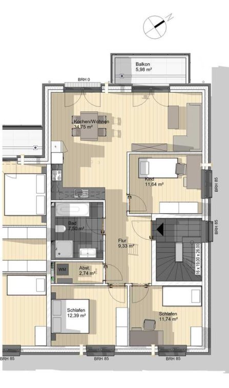
Diese helle 4-Zimmer-Wohnung mit ca. 95 m² Wohnfläche befindet sich im 1. Obergeschoss eines gepflegten Mehrfamilienhauses in Müssen. Die Wohnung verfügt über eine hochwertige Ausstattung mit Feinsteinzeug und i.o. Rollladen, Vinyl Boden in den Wohnräumen, eine Dusche und eine Badewanne im Badezimmer und einen Lüftungsanlange in der gesamten Wohnung.
Weiter gibt es einen Balkon zum Garten und einen großen Gemeinschaftsgarten mit Klettergerüst und Fahrradhaus für alle Kinder des Hauses. Ein eigener Kellerraum bietet zusätzlichen Stauraum. Die Küche ist ausgestattet und die Wohnung ist ab dem 1. August 2026 verfügbar. Haustiere sind nicht gestattet. Die Küchen E-Geräte müssen vom Vormieter übernommen werden. (Preisabsprache mit dem Vormieter). Das Haus ist als Kfw 40 NH mit Fertigstellung 04/2024 erbaut und verfügt über eine Wärmepumpenheizung mit PV Anlage und Speicher.
Treppenhausreinigung , Winterdienst, Gartenservice und Müllservice wird gestellt und ist bereits in den Nebenkosten enthalten.
Die Wohnung wir voraussichtlich ab 01.08.2026 frei, der genaue Termin wir 3 Monate vorab bekannt gegeben.
Bei Interesse senden sie mir bitte eine Mieterselbstauskunft, sowie eine aktuelle Schufa Auskunft.
Hinweis: Das Amt zahlt diese Wohnung nicht !!!
Weiter gibt es einen Balkon zum Garten und einen großen Gemeinschaftsgarten mit Klettergerüst und Fahrradhaus für alle Kinder des Hauses. Ein eigener Kellerraum bietet zusätzlichen Stauraum. Die Küche ist ausgestattet und die Wohnung ist ab dem 1. August 2026 verfügbar. Haustiere sind nicht gestattet. Die Küchen E-Geräte müssen vom Vormieter übernommen werden. (Preisabsprache mit dem Vormieter). Das Haus ist als Kfw 40 NH mit Fertigstellung 04/2024 erbaut und verfügt über eine Wärmepumpenheizung mit PV Anlage und Speicher.
Treppenhausreinigung , Winterdienst, Gartenservice und Müllservice wird gestellt und ist bereits in den Nebenkosten enthalten.
Die Wohnung wir voraussichtlich ab 01.08.2026 frei, der genaue Termin wir 3 Monate vorab bekannt gegeben.
Bei Interesse senden sie mir bitte eine Mieterselbstauskunft, sowie eine aktuelle Schufa Auskunft.
Hinweis: Das Amt zahlt diese Wohnung nicht !!!
Was kostet dein Umzug?
Du planst einen Umzug? Finde jetzt die günstigste Umzugsfirma in deiner Region!
Umzugskosten berechnen Schütze dich vor Betrug!
Leiste keinerlei Zahlung im Vorraus!
Beachte unsere Sicherheitshinweise zum Thema Immobilienbetrug und lies, woran du solche Anzeigen erkennen kannst und wie du dich vor Betrügern schützt.
Anzeige melden Beachte unsere Sicherheitshinweise zum Thema Immobilienbetrug und lies, woran du solche Anzeigen erkennen kannst und wie du dich vor Betrügern schützt.
*Anzeige
Ähnliche Wohnungen bei ImmoScout24
Müssen
- Miete
- 1.100 €
- Zimmer
- 4 Zi.
- Fläche
- 85 Zi.
Weitere Ergebnisse für:
Wohnungen
Müssen;
Immobilien
Müssen;
Haus mieten
Müssen;
WG Zimmer
Müssen;
Wohnung
Müssen kaufen;
Haus kaufen
Müssen;
wohnungsboerse.net übernimmt keine Gewähr für von Dritten gemachte Angaben