
Einfamilienhaus mieten in Achstetten
Neusaniertes Einfamilienhaus mit schönem Garten und Aussicht
auf der Karte ansehenUmzugskosten berechnen
- Kaltmiete
- 1.550 €
- Zimmer
- 4
- Fläche
- 150 m²
6 Aufrufe
Objekt-ID: 39461059
| Objekttyp: | Einfamilienhaus |
| Zimmer: | 4 |
| Größe: | 150.00 m² |
| Grundstücksfläche: | 700,00 m² |
| Frei ab: | 27.1.2026 |
Preise & Kosten
| Kaltmiete: | 1.550 € |
| Nebenkosten: | 250 € |
| Gesamtmiete: |
1.800 € |
| Preis/m²: | 10,33 € |
| Mit Mietspiegel Achstetten vergleichen | |
| Kaution: | k.A. |
Immobilie
Garten
Einbauküche
Keller
Tiere erlaubt
| Befeuerungsart: | Gas |
| Energieausweis: | Energieausweis in Vorbereitung |
Objektbeschreibung
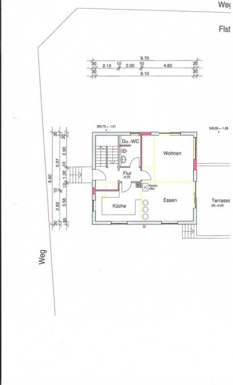
Das im Jahre 2019 vollsanierte Haus liegt in einem Teilort von Achstetten, am Rande von Bronnen. Es ist ideal für ein Paar oder kleiner Familie. Im UG befindet sich ein Gäste-WC mit Dusche. Der Hauptraum besteht aus einer sehr schönen, neuen Einbauküche, einem großzügigen Wohn- und Essbereich mit Blick in den Garten. Von dort aus ist auch der Zugang zu einer fast 30 m² großen Terrasse, welche teils überdacht und mit Wind- und Sonnenschutz versehen ist. Im Obergeschoß befinden sich zwei sperate Zimmer und ein Ankleideraum. Sowie ein großes Badezimmer mit Dusche und großer Badewanne. Das gesamte Haus ist unterkellert mit 4 Räumen plus einem Technikraum. In einem Raum ist eine Sauna mit Zugang ins Freie. Die ehemalige Garage kann als Abstellraum für Räder oder Gartengeräte genutz werden.
Lage
88480 AchstettenAchstetten
Der aktuelle durchschnittliche Quadratmeterpreis beträgt 7,29 €/m² in Achstetten.
Mit Mietspiegel
Achstetten vergleichen
Was kostet dein Umzug?
Du planst einen Umzug? Finde jetzt die günstigste Umzugsfirma in deiner Region!
Umzugskosten berechnen Schütze dich vor Betrug!
Leiste keinerlei Zahlung im Vorraus!
Beachte unsere Sicherheitshinweise zum Thema Immobilienbetrug und lies, woran du solche Anzeigen erkennen kannst und wie du dich vor Betrügern schützt.
Anzeige melden Beachte unsere Sicherheitshinweise zum Thema Immobilienbetrug und lies, woran du solche Anzeigen erkennen kannst und wie du dich vor Betrügern schützt.
*Anzeige
Ähnliche Häuser bei ImmoScout24
Achstetten
- Miete
- 1.400 €
- Zimmer
- 4 Zi.
- Fläche
- 140 Zi.
Weitere Ergebnisse für:
Wohnungen
Achstetten;
Immobilien
Achstetten;
Haus mieten
Achstetten;
WG Zimmer
Achstetten;
Wohnung
Achstetten kaufen;
Haus kaufen
Achstetten;
Immobilienpreise
Achstetten Mietspiegel
Achstetten wohnungsboerse.net übernimmt keine Gewähr für von Dritten gemachte Angaben