
Etagenwohnung in Villingen-Schwenningen
3Zi.- Neubauwohnung- Geförderter Wohnraum *Wohnberechtigungsschein erforderlich*
auf der Karte ansehenUmzugskosten berechnen
- Kaltmiete
- 586,94 €
- Zimmer
- 3
- Fläche
- 74.96 m²
2 Aufrufe
Objekt-ID: 39531611
| Objekttyp: | Etagenwohnung |
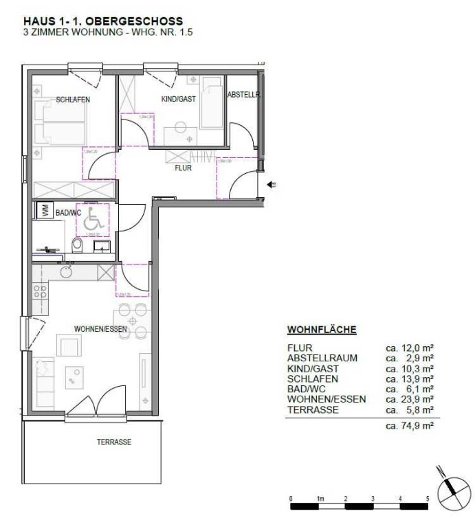
| Zimmer: | 3 |
| Größe: | 74.96 m² |
| Etage: | 1 von 4 |
| Frei ab: | 01.11.2023 |
Preise & Kosten
| Kaltmiete: | 586,94 € |
| Nebenkosten: | 286 € |
| Gesamtmiete: |
872,94 € |
| Preis/m²: | 7,83 € |
| Mit Mietspiegel Villingen-Schwenningen vergleichen | |
| Kaution: | k.A. |
Immobilie
Balkon
Einbauküche
Aufzug
Keller
Neubau
Tiere erlaubt
Behindertengerecht
| Baujahr: | 2022 |
| Energieausweis: | Energieausweis in Vorbereitung |
Objektbeschreibung
Diese moderne Wohnanlage, welche gerade in der attraktiven Doppelstadt Villingen-Schwenningen entsteht, setzt sich aus 4 Häusern zusammen und umfasst insgesamt 102 Wohnungen im Erstbezug mit 2, 3 und 4 Zimmern zwischen 58 m² – 114 m².
Die Wohnungen können jeweils von der Tiefgarage bis in das Dachgeschoss durch Aufzüge erschlossen werden. PKW-Stellplätze sind in der Tiefgarage sowie vor den Hauseingängen vorhanden und zusätzlich anmietbar (Tiefgarage 75,00 € und Außenstellplatz 55,00 €). Jede Wohnung verfügt über einen Abstellraum innerhalb der Wohnung sowie einen zusätzlichen Kellerraum in der Tiefgarage. Ausreichend Fahrradstellplätze sind in sicheren Fahrradräumen der Tiefgarage vorhanden.
In allen Wohn- und Schlafräumen werden hochwertige Vinyl-Design Böden verwendet. Die Wohnungen sind mit hellen Einbauküchen ausgestattet (Spüle, Spülmaschine, Herd mit Ceran -/Glaskeramik Kochfeld, Umlufthaube, Backofen, Kühlschrank, je 2 Ober- und Unterschränke). Die Bäder haben eine bodengleiche (Walk-In) Dusche mit Duschabtrennung aus Echtglas sowie einen praktischen Handtuchheizkörper (Elektro) und einen Waschmaschinenanschluss. Beheizt wird mit komfortablen Fußbodenheizungen. Zusätzlich wurden moderne Gegensprechanlagen sowie Kabel- und Glasfaseranschlüsse in der gesamten Wohnanlage verbaut. Über einen Balkon, eine Terrasse oder eine Dachterrasse können Sie die Süd-West-Ausrichtung genießen. Die hochwertige Ausstattung, die attraktive Grundrissgestaltung sowie die aufwendig gestaltete Wohnanlage mit begrünten Außenanlagen und architektonischer Fassadengestaltung, lädt Sie zum Wohlfühlen in Ihr Zuhause ein.
Ein Teil der Wohnungen unterliegt der öffentlichen Förderung und bedarf daher einen gültigen Wohnberechtigungsschein. Gern beraten wir Sie vor Ort über die besonderen Voraussetzungen für die Anmietung dieser Wohnungen.
Die Wohnungen können jeweils von der Tiefgarage bis in das Dachgeschoss durch Aufzüge erschlossen werden. PKW-Stellplätze sind in der Tiefgarage sowie vor den Hauseingängen vorhanden und zusätzlich anmietbar (Tiefgarage 75,00 € und Außenstellplatz 55,00 €). Jede Wohnung verfügt über einen Abstellraum innerhalb der Wohnung sowie einen zusätzlichen Kellerraum in der Tiefgarage. Ausreichend Fahrradstellplätze sind in sicheren Fahrradräumen der Tiefgarage vorhanden.
In allen Wohn- und Schlafräumen werden hochwertige Vinyl-Design Böden verwendet. Die Wohnungen sind mit hellen Einbauküchen ausgestattet (Spüle, Spülmaschine, Herd mit Ceran -/Glaskeramik Kochfeld, Umlufthaube, Backofen, Kühlschrank, je 2 Ober- und Unterschränke). Die Bäder haben eine bodengleiche (Walk-In) Dusche mit Duschabtrennung aus Echtglas sowie einen praktischen Handtuchheizkörper (Elektro) und einen Waschmaschinenanschluss. Beheizt wird mit komfortablen Fußbodenheizungen. Zusätzlich wurden moderne Gegensprechanlagen sowie Kabel- und Glasfaseranschlüsse in der gesamten Wohnanlage verbaut. Über einen Balkon, eine Terrasse oder eine Dachterrasse können Sie die Süd-West-Ausrichtung genießen. Die hochwertige Ausstattung, die attraktive Grundrissgestaltung sowie die aufwendig gestaltete Wohnanlage mit begrünten Außenanlagen und architektonischer Fassadengestaltung, lädt Sie zum Wohlfühlen in Ihr Zuhause ein.
Ein Teil der Wohnungen unterliegt der öffentlichen Förderung und bedarf daher einen gültigen Wohnberechtigungsschein. Gern beraten wir Sie vor Ort über die besonderen Voraussetzungen für die Anmietung dieser Wohnungen.
Lage
Paula-Straub-Straße78048 Villingen-Schwenningen
Villingen-Schwenningen
Der aktuelle durchschnittliche Quadratmeterpreis beträgt 11,08 €/m² in Villingen-Schwenningen.
Mit Mietspiegel
Villingen-Schwenningen vergleichen
Was kostet dein Umzug?
Du planst einen Umzug? Finde jetzt die günstigste Umzugsfirma in deiner Region!
Umzugskosten berechnen Schütze dich vor Betrug!
Leiste keinerlei Zahlung im Vorraus!
Beachte unsere Sicherheitshinweise zum Thema Immobilienbetrug und lies, woran du solche Anzeigen erkennen kannst und wie du dich vor Betrügern schützt.
Anzeige melden Beachte unsere Sicherheitshinweise zum Thema Immobilienbetrug und lies, woran du solche Anzeigen erkennen kannst und wie du dich vor Betrügern schützt.
*Anzeige
Ähnliche Wohnungen bei ImmoScout24
Villingen-Schwenningen
- Miete
- 450 €
- Zimmer
- 3 Zi.
- Fläche
- 65 Zi.
Anbieter
Weitere Ergebnisse für:
Wohnungen
Villingen-Schwenningen;
Immobilien
Villingen-Schwenningen;
Haus mieten
Villingen-Schwenningen;
WG Zimmer
Villingen-Schwenningen;
Wohnung
Villingen-Schwenningen kaufen;
Haus kaufen
Villingen-Schwenningen;
Immobilienpreise
Villingen-Schwenningen Mietspiegel
Villingen-Schwenningen wohnungsboerse.net übernimmt keine Gewähr für von Dritten gemachte Angaben