Doppelhaushälfte mieten in Reichling
* Wunderschön gelegene moderne Doppelhaushälfte in Reichling zu mieten! *
auf der Karte ansehenUmzugskosten berechnen
- Kaltmiete
- 2.200 €
- Zimmer
- 6
- Fläche
- 155 m²
40 Aufrufe
Objekt-ID: 39548244
| Objekttyp: | Doppelhaushälfte |
| Zimmer: | 6 |
| Größe: | 155.00 m² |
| Grundstücksfläche: | 264,00 m² |
| Frei ab: | 01.06.2026 |
Preise & Kosten
| Kaltmiete: | 2.200 € |
| Nebenkosten: | 120 € |
| Miete für Garage/Stellplatz: | 120 € |
| Gesamtmiete: |
2.320 € |
| Provision: | Ohne Provision |
| Preis/m²: | 14,19 € |
| Mit Mietspiegel Reichling vergleichen | |
| Kaution: | 4400 |
Immobilie
Terrasse
Garten
Keller
Neubau
| Baujahr: | 2024 |
| Objektzustand: | gepflegt |
| Befeuerungsart: | Wärmepumpe |
| Energieausweis: | Energieausweis in Vorbereitung |
Objektbeschreibung
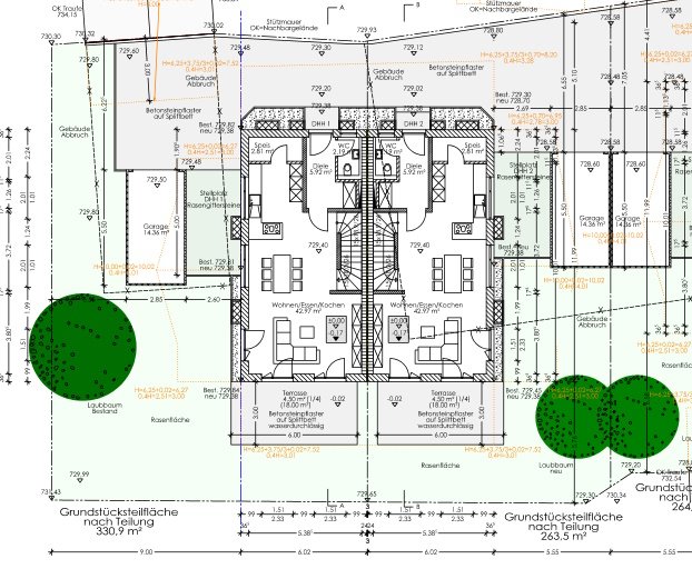
Moderne Neubau-Doppelhaushälfte südlich von Landsberg am Lech zum 1. Juni 2026 zu mieten, idyllisch zwischen Ammersee und Allgäu gelegen!
Mit über 210m2 Wohn/Nutzfläche auf vier Ebenen, Terrasse und Garten, Garage + Stellplatz!
Details:
- Ziegelbauweise KFW 55 EE
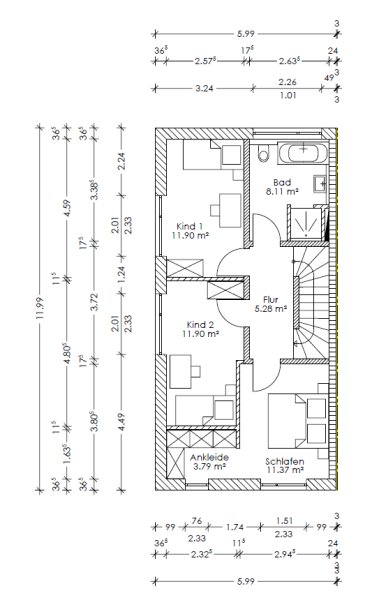
- 155 m² Wohnfläche verteilt auf 6 Zimmer
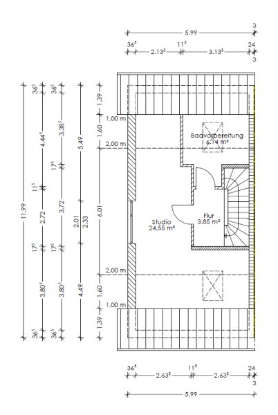
- großes Homeoffice in der Dachgeschoß-Galerie
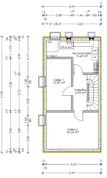
- Geräumiger Keller mit zwei Nutzräumen
- Einzelgarage + Stellplatz
- ausgestattet mit modernster Luft-Wasser-Wärmepumpe
- kontrollierte Be- und Entlüftungsanlage mit Wärmerückgewinnung
- moderne Sanitärausstattung mit bodentiefer Dusche
- hochwertige Bodenbeläge
- gute Internetanbindung
Besonderheit: der Panoramablick auf Lech und Zugspitze, siehe Bilder, ist nur 3 Gehminuten vom Haus entfernt!
Reichling bietet: Kindergarten, Bäckerei mit Postannahmestelle, Bio-Gärtnerei mit Cafe und Hofladen, Metzgerei, Autowerkstatt, Post, Friseur, Ärzte usw. Grund- und Hauptschule befinden sich im Nachbarort Rott, wohin die Kinder mit dem Schulbus gefahren werden. Zu den weiterführenden Schulen fahren die Kinder nach Landsberg, Dießen oder Schongau mit dem Schulbus.
Die Freizeitmöglichkeiten: großzügige Sportanlage mit Fußballplatz, Turnhalle und Tennisplätzen, Badeweiher, Radl- & Wanderwege.
Der Ammersee ist 10 bis 15 Autominuten entfernt, ebenso die nächstgrößeren Städte Landsberg (Autobahn München-Lindau A 96), Weilheim oder Schongau.
Wir freuen uns auf Ihr Interesse, bitte mit Angabe persönlicher Daten!
Mit über 210m2 Wohn/Nutzfläche auf vier Ebenen, Terrasse und Garten, Garage + Stellplatz!
Details:
- Ziegelbauweise KFW 55 EE
- 155 m² Wohnfläche verteilt auf 6 Zimmer
- großes Homeoffice in der Dachgeschoß-Galerie
- Geräumiger Keller mit zwei Nutzräumen
- Einzelgarage + Stellplatz
- ausgestattet mit modernster Luft-Wasser-Wärmepumpe
- kontrollierte Be- und Entlüftungsanlage mit Wärmerückgewinnung
- moderne Sanitärausstattung mit bodentiefer Dusche
- hochwertige Bodenbeläge
- gute Internetanbindung
Besonderheit: der Panoramablick auf Lech und Zugspitze, siehe Bilder, ist nur 3 Gehminuten vom Haus entfernt!
Reichling bietet: Kindergarten, Bäckerei mit Postannahmestelle, Bio-Gärtnerei mit Cafe und Hofladen, Metzgerei, Autowerkstatt, Post, Friseur, Ärzte usw. Grund- und Hauptschule befinden sich im Nachbarort Rott, wohin die Kinder mit dem Schulbus gefahren werden. Zu den weiterführenden Schulen fahren die Kinder nach Landsberg, Dießen oder Schongau mit dem Schulbus.
Die Freizeitmöglichkeiten: großzügige Sportanlage mit Fußballplatz, Turnhalle und Tennisplätzen, Badeweiher, Radl- & Wanderwege.
Der Ammersee ist 10 bis 15 Autominuten entfernt, ebenso die nächstgrößeren Städte Landsberg (Autobahn München-Lindau A 96), Weilheim oder Schongau.
Wir freuen uns auf Ihr Interesse, bitte mit Angabe persönlicher Daten!
Was kostet dein Umzug?
Du planst einen Umzug? Finde jetzt die günstigste Umzugsfirma in deiner Region!
Umzugskosten berechnen Schütze dich vor Betrug!
Leiste keinerlei Zahlung im Vorraus!
Beachte unsere Sicherheitshinweise zum Thema Immobilienbetrug und lies, woran du solche Anzeigen erkennen kannst und wie du dich vor Betrügern schützt.
Anzeige melden Beachte unsere Sicherheitshinweise zum Thema Immobilienbetrug und lies, woran du solche Anzeigen erkennen kannst und wie du dich vor Betrügern schützt.
*Anzeige
Ähnliche Häuser bei ImmoScout24
Reichling
- Miete
- 2.050 €
- Zimmer
- 6 Zi.
- Fläche
- 145 Zi.
Anbieter
privater AnbieterWeitere Ergebnisse für:
Wohnungen
Reichling;
Immobilien
Reichling;
Haus mieten
Reichling;
WG Zimmer
Reichling;
Wohnung
Reichling kaufen;
Haus kaufen
Reichling;
Immobilienpreise
Reichling Mietspiegel
Reichling wohnungsboerse.net übernimmt keine Gewähr für von Dritten gemachte Angaben













