Bungalow zum kaufen in Braunschweig-Bienrode-Waggum-Bevenrode
Winkelbungalow, beschauliches Wohnen auf einer Etage / Feldrandlage
auf der Karte ansehenUmzugskosten berechnen
- Kaufpreis
- 415.000 €
- Zimmer
- 5
- Fläche
- 140 m²
2534 Aufrufe
Objekt-ID: 26605663
| Objekttyp: | Bungalow |
| Zimmer: | 5 |
| Größe: | 140.00 m² |
| Grundstücksfläche: | 800,00 m² |
| Etage: | 1 |
| Renditeobjekt: |
Preise & Kosten
| Kaufpreis: | 415.000 € |
| Jetzt kostenlos Finanzierungsangebot anfragen! | |
| Garage/Stellplatz Kaufpreis: |
2 € |
| Preis/m²: | 2.964,29 € |
| Mit Immobilienpreisen Braunschweig vergleichen | |
Immobilie
Terrasse
Garten
Einbauküche
Keller
Tiere erlaubt
| Baujahr: | 1968 |
| Objektzustand: | saniert |
| Befeuerungsart: | Gas |
| Energieausweis: | Bedarfsausweis |
| Energieverbrauchskennwert: | 294,00 kWh/(m²*a) |
| Energieverbrauch für Warmwasser enthalten? | Ja |
Objektbeschreibung
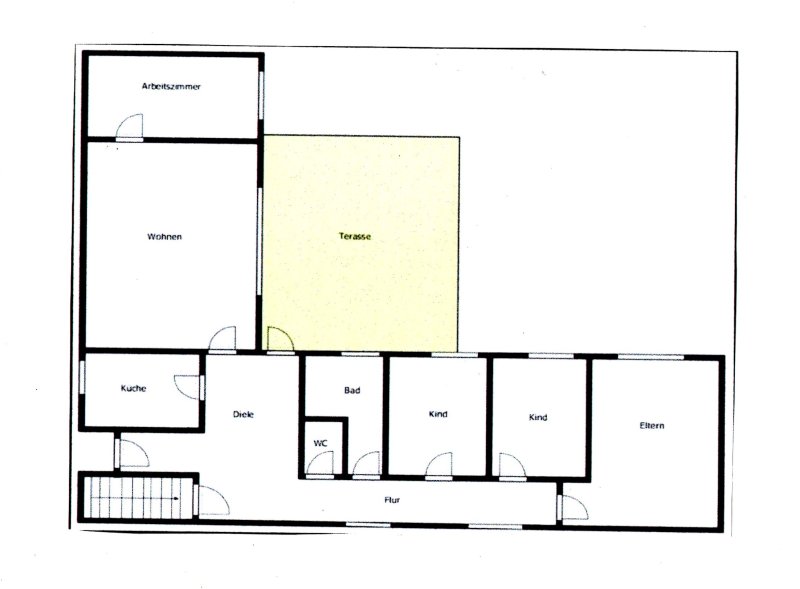
Zum Verkauf steht ein schöner L-förmiger Winkelbungalow in Braunschweig mit überdachter Terrasse.
Der Grundriss ist gliedert in zwei Flügel mit mittig liegender zentraler Diele und Küche . In dem einen Flügel befinden sich Wohn- und Arbeitszimmer. Im Wohnzimmer garantiert eine breite Fensterfront (Südseite) Tageslicht, während ein Kaminofen im Winter für angenehme Wärme sorgt.
Der andere Flügel des Bungalows stellt ein Eltern- und zwei Kinderschlafzimmer sowie das Badezimmer und separates Gäste-WC bereit. Von der zentralen Diele geht es direkt auf die
ca. 50 m² teilüberdachte Terrasse mit großem Garten.
Ein weiteres Highlight ist der idyllisch gepflegte Garten mit seltenen Hochbaumbestand.
Viel Platz für mehrere Nutzungsmöglichkeiten garantiert Ihnen der rund 120 m² große Keller des Bungalows. Dieser stellt Ihnen 6 Räume, 3 davon beheizbar, zur Verfügung und kann noch weiter ausgebaut werden. Die Fenster wurden 2010 neu verglast und aufgearbeitet.
Direkt neben dem Haus befindet sich eine Garage für einen Pkw. Die Auffahrt bietet Platz für 2 weitere Autos.
Das Erbbaurecht wurde 1966 auf 99 Jahre abgeschlossen. Der Erbbauzins beträgt derzeit 264,37 € pro Quartal.
Das Haus befindet sich im Stadtteil Waggum. Die ruhige Feldrandlage im Nordosten von Braunschweig ist geprägt von Einfamilienhäusern.
Es besteht eine sehr gute Verkehrsanbindung zur A2 und öffentlichen Verkehrsmitteln. Im Ort befinden sich diverse Geschäfte, Apotheke, Arztpraxen, Bankfilialen sowie ein Freibad
Der Grundriss ist gliedert in zwei Flügel mit mittig liegender zentraler Diele und Küche . In dem einen Flügel befinden sich Wohn- und Arbeitszimmer. Im Wohnzimmer garantiert eine breite Fensterfront (Südseite) Tageslicht, während ein Kaminofen im Winter für angenehme Wärme sorgt.
Der andere Flügel des Bungalows stellt ein Eltern- und zwei Kinderschlafzimmer sowie das Badezimmer und separates Gäste-WC bereit. Von der zentralen Diele geht es direkt auf die
ca. 50 m² teilüberdachte Terrasse mit großem Garten.
Ein weiteres Highlight ist der idyllisch gepflegte Garten mit seltenen Hochbaumbestand.
Viel Platz für mehrere Nutzungsmöglichkeiten garantiert Ihnen der rund 120 m² große Keller des Bungalows. Dieser stellt Ihnen 6 Räume, 3 davon beheizbar, zur Verfügung und kann noch weiter ausgebaut werden. Die Fenster wurden 2010 neu verglast und aufgearbeitet.
Direkt neben dem Haus befindet sich eine Garage für einen Pkw. Die Auffahrt bietet Platz für 2 weitere Autos.
Das Erbbaurecht wurde 1966 auf 99 Jahre abgeschlossen. Der Erbbauzins beträgt derzeit 264,37 € pro Quartal.
Das Haus befindet sich im Stadtteil Waggum. Die ruhige Feldrandlage im Nordosten von Braunschweig ist geprägt von Einfamilienhäusern.
Es besteht eine sehr gute Verkehrsanbindung zur A2 und öffentlichen Verkehrsmitteln. Im Ort befinden sich diverse Geschäfte, Apotheke, Arztpraxen, Bankfilialen sowie ein Freibad
Lage
Kiebitzweg38110 Braunschweig
Braunschweig Bienrode-Waggum-Bevenrode
Der aktuelle durchschnittliche Quadratmeterpreis beträgt 2.896,03 €/m² in Braunschweig - Bienrode-Waggum-Bevenrode. Der durchschnittliche Immobilienpreis in Braunschweig liegt derzeit bei 3.438,53 €/m².
Mit Immobilienpreisen
Braunschweig vergleichen
Was kostet dein Umzug?
Du planst einen Umzug? Finde jetzt die günstigste Umzugsfirma in deiner Region!
Umzugskosten berechnen Schütze dich vor Betrug!
Leiste keinerlei Zahlung im Vorraus!
Beachte unsere Sicherheitshinweise zum Thema Immobilienbetrug und lies, woran du solche Anzeigen erkennen kannst und wie du dich vor Betrügern schützt.
Anzeige melden Beachte unsere Sicherheitshinweise zum Thema Immobilienbetrug und lies, woran du solche Anzeigen erkennen kannst und wie du dich vor Betrügern schützt.
*Anzeige
Ähnliche Häuser bei ImmoScout24
Braunschweig-Bienrode-Waggum-Bevenrode
- Kaufpreis
- 365.000 €
- Zimmer
- 5 Zi.
- Fläche
- 130 Zi.
Anbieter
privater AnbieterWeitere Ergebnisse für:
Wohnungen
Braunschweig;
Immobilien
Braunschweig;
Haus mieten
Braunschweig;
WG Zimmer
Braunschweig;
Wohnung
Braunschweig kaufen;
Haus kaufen
Braunschweig;
Immobilienpreise
Braunschweig Mietspiegel
Braunschweig wohnungsboerse.net übernimmt keine Gewähr für von Dritten gemachte Angaben











