
Doppelhaushälfte zum kaufen in Mainz-Weisenau
Charmantes 5-Zimmer-Haus in Mainz Weisenau *Provisionsfrei*
auf der Karte ansehenUmzugskosten berechnen
- Kaufpreis
- 245.000 €
- Zimmer
- 3.5
- Fläche
- 79 m²
75 Aufrufe
Objekt-ID: 35563939
Objekttyp: | Doppelhaushälfte |
Zimmer: | 3.5 |
Größe: | 79.00 m² |
Grundstücksfläche: | 91,00 m² |
Verfügbar ab: | 30.9.2024 |
Preise & Kosten
Kaufpreis: | 245.000 € |
Jetzt kostenlos Finanzierungsangebot anfragen! |
Provision: | Nein |
Preis/m²: | 3.101,27 € |
Mit Immobilienpreisen Mainz vergleichen |
Immobilie
Behindertengerecht
Baujahr: | 1940 |
Befeuerungsart: | Holzpellets |
Energieausweis: | Energieausweis in Vorbereitung |
Objektbeschreibung
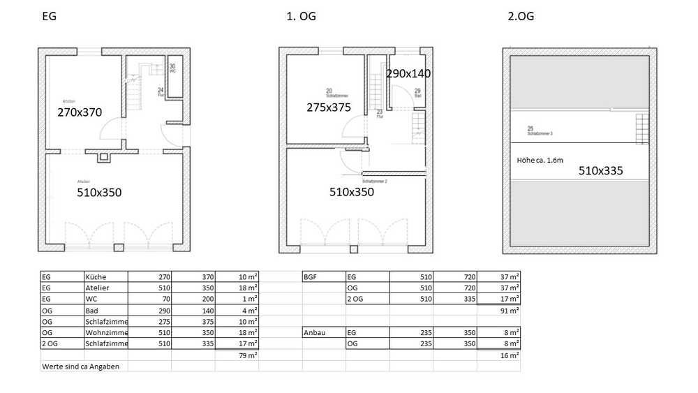
Charmantes Altbauhaus in Mainz-Weisenau, erbaut im Jahr 1940, in zentraler und ruhiger Lage. Das Gebäude besticht durch seine historische Architektur und bietet eine einzigartige Kombination aus Altbauflair und modernem Komfort. Es besteht aus einem Haupthaus mit rund 91 m², die sich auf drei Ebenen (Dachgeschoss teilnutzbar mit Firsthöhe 1,6m) verteilen (Nutzfläche ca. 79 m², Geschossfläche 91m²), und einem Nebengebäude mit ca. 16 m², das auf zwei Ebenen zusätzlichen Raum für kreative Nutzungsmöglichkeiten bietet – ideal als Atelier, Werkstatt oder Gästeunterkunft.
Strom und Wasser sind vorhanden, das Haupthaus ist unterkellert und wurde wärmeisoliert. Trotz fehlender Zentralheizung sorgen durchdachte Heizlösungen für Wohlbefinden: Im 1. Obergeschoss schafft ein Pelletofen eine gemütliche Atmosphäre, während das Erdgeschoss durch moderne Infrarotheizungen effizient beheizt wird. Die Installation einer Zentralheizung wird empfohlen. Eine Gastherme liefert warmes Wasser für das Duschbad im 1. OG. Dieses sollte altersbedingt renoviert werden.
Im Erdgeschoss ist eine geräumige Küche verbaut.
Das Haus bietet vielfältige Gestaltungsmöglichkeiten und eignet sich ideal für kreative Köpfe oder Familien, die das Besondere suchen. Die gute Anbindung an das öffentliche Verkehrsnetz und die Nähe zu Einkaufsmöglichkeiten, Schulen und Freizeiteinrichtungen machen die Lage besonders attraktiv. Zudem lädt der begrünte Innenhof zu entspannten Stunden im Freien ein. Der Innenhof verfügt über einen großzügigen Fahrrad Stellplatz. Ein separater Parkplatz ist nicht vorhanden.
Die Immobilie finden Sie in zentraler Lage in Mainz Weisenau. Mehrere Buslinien sind fußläufig zu erreichen. In Laufnähe gibt es ein paar Restaurants, Ärzte, Bäckereien, Supermärkte und ein Café. Fitnessstudios, zwei Grün- und Parkanlagen finden Sie ebenfalls vor Ort.
Die Nähe zum Rhein macht die Lage besonders attraktiv.
Strom und Wasser sind vorhanden, das Haupthaus ist unterkellert und wurde wärmeisoliert. Trotz fehlender Zentralheizung sorgen durchdachte Heizlösungen für Wohlbefinden: Im 1. Obergeschoss schafft ein Pelletofen eine gemütliche Atmosphäre, während das Erdgeschoss durch moderne Infrarotheizungen effizient beheizt wird. Die Installation einer Zentralheizung wird empfohlen. Eine Gastherme liefert warmes Wasser für das Duschbad im 1. OG. Dieses sollte altersbedingt renoviert werden.
Im Erdgeschoss ist eine geräumige Küche verbaut.
Das Haus bietet vielfältige Gestaltungsmöglichkeiten und eignet sich ideal für kreative Köpfe oder Familien, die das Besondere suchen. Die gute Anbindung an das öffentliche Verkehrsnetz und die Nähe zu Einkaufsmöglichkeiten, Schulen und Freizeiteinrichtungen machen die Lage besonders attraktiv. Zudem lädt der begrünte Innenhof zu entspannten Stunden im Freien ein. Der Innenhof verfügt über einen großzügigen Fahrrad Stellplatz. Ein separater Parkplatz ist nicht vorhanden.
Die Immobilie finden Sie in zentraler Lage in Mainz Weisenau. Mehrere Buslinien sind fußläufig zu erreichen. In Laufnähe gibt es ein paar Restaurants, Ärzte, Bäckereien, Supermärkte und ein Café. Fitnessstudios, zwei Grün- und Parkanlagen finden Sie ebenfalls vor Ort.
Die Nähe zum Rhein macht die Lage besonders attraktiv.
Lage
Langentalstraße55130 Mainz
Mainz Weisenau
Der aktuelle durchschnittliche Quadratmeterpreis beträgt 6.542,61 €/m² in Mainz - Weisenau. Der durchschnittliche Immobilienpreis in Mainz liegt derzeit bei 7.664,83 €/m².
Mit Immobilienpreisen
Mainz vergleichen
Was kostet dein Umzug?
Du planst einen Umzug? Finde jetzt die günstigste Umzugsfirma in deiner Region!
Umzugskosten berechnen Schütze dich vor Betrug!
Leiste keinerlei Zahlung im Vorraus!
Beachte unsere Sicherheitshinweise zum Thema Immobilienbetrug und lies, woran du solche Anzeigen erkennen kannst und wie du dich vor Betrügern schützt.
Anzeige melden Beachte unsere Sicherheitshinweise zum Thema Immobilienbetrug und lies, woran du solche Anzeigen erkennen kannst und wie du dich vor Betrügern schützt.
*Anzeige

Ähnliche Häuser bei ImmoScout24
Mainz-Weisenau
- Kaufpreis
- 195.000 €
- Zimmer
- 3.5 Zi.
- Fläche
- 70 Zi.
Weitere Ergebnisse für:
Wohnungen
Mainz;
Immobilien
Mainz;
Haus mieten
Mainz;
WG Zimmer
Mainz;
Wohnung
Mainz kaufen;
Haus kaufen
Mainz;
Immobilienpreise
Mainz Mietspiegel
Mainz wohnungsboerse.net übernimmt keine Gewähr für von Dritten gemachte Angaben