
Erdgeschosswohnung in Hamburg-Horn
Clever in die Zukunft investieren: 2-Zimmer-Wohnungen in urbaner Lage kaufen!
auf der Karte ansehenUmzugskosten berechnen
- Kaufpreis
- 349.000 €
- Zimmer
- 2
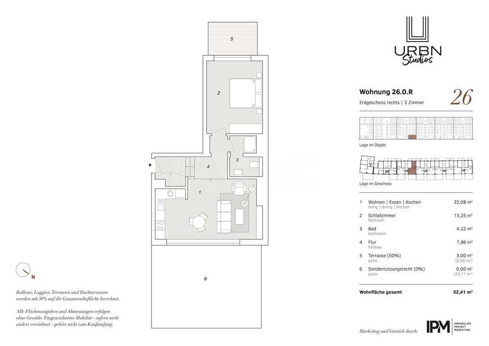
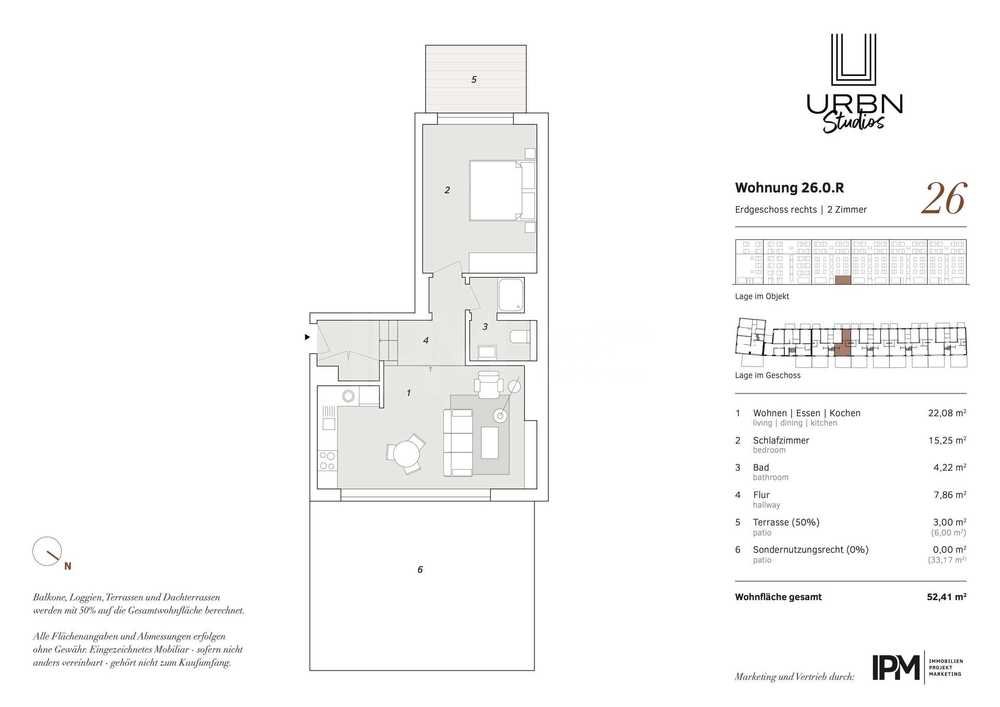
- Fläche
- 52.41 m²
33 Aufrufe
Objekt-ID: 37474903
Objekttyp: | Erdgeschosswohnung |
Zimmer: | 2 |
Größe: | 52.41 m² |
Verfügbar ab: | keine Angabe |
Preise & Kosten
Kaufpreis: | 349.000 € |
Jetzt kostenlos Finanzierungsangebot anfragen! |
Provision: | Nein |
Preis/m²: | 6.659,03 € |
Mit Immobilienpreisen Hamburg vergleichen |
Immobilie
Balkon
Garten
Keller
Baujahr: | 2023 |
Objektbeschreibung
Wir könnten jetzt ins Detail gehen und dir von den vielen Vorzügen erzählen, wie dem genialen Schnitt der 2-Zimmer-Wohnung mit einem 3,00m hohen Wohnzimmer, der Fußbodenheizung und dem Fernwärmeanschluss, der Süd-West-Terrasse, auf dem tatsächlich den ganzen Tag die Sonne scheint, dem großzügigem privatem Außenbereich, für den du nichts extra zahlst oder der unschlagbaren Anbindung ins Stadtzentrum mit der U4 und dem Metrobus. Aber was zählt, ist doch, ob du dich in deiner neuen Neubauwohnung wirklich wohl fühlst. Das finden wir am besten heraus, indem du sie dir persönlich ansiehst.
Egal, ob du selbst einziehen, deinem studierenden Kind ein eigenes Nest schaffen, eine Zweitwohnung in der pulsierenden Nord-Metropole besitzen, den ersten Schritt zur finanziellen Unabhängigkeit mit einem Eigenheim gehen oder als weitsichtiger Kapitalanleger in einem Mietmarkt investieren möchtest, der kontinuierlich neue Rekorde bricht – diese Wohnungen könnten der Beginn von etwas Großem sein.
Worauf wartest du noch?
Kontaktiere uns, um einen Besichtigungstermin zu vereinbaren.
Deine Wohnung. Fertig. Los.
P.S. Kapitalanlegern bieten wir zudem einen Erstvermietungsservice an, damit es direkt losgehen kann. Im Gespräch verraten wir auch, wie gut sich das rechnet.
Egal, ob du selbst einziehen, deinem studierenden Kind ein eigenes Nest schaffen, eine Zweitwohnung in der pulsierenden Nord-Metropole besitzen, den ersten Schritt zur finanziellen Unabhängigkeit mit einem Eigenheim gehen oder als weitsichtiger Kapitalanleger in einem Mietmarkt investieren möchtest, der kontinuierlich neue Rekorde bricht – diese Wohnungen könnten der Beginn von etwas Großem sein.
Worauf wartest du noch?
Kontaktiere uns, um einen Besichtigungstermin zu vereinbaren.
Deine Wohnung. Fertig. Los.
P.S. Kapitalanlegern bieten wir zudem einen Erstvermietungsservice an, damit es direkt losgehen kann. Im Gespräch verraten wir auch, wie gut sich das rechnet.
Lage
Washingtonallee22111 Hamburg
Hamburg Horn
Der aktuelle durchschnittliche Quadratmeterpreis beträgt 4.744,95 €/m² in Hamburg - Horn. Der durchschnittliche Immobilienpreis in Hamburg liegt derzeit bei 6.733,82 €/m².
Mit Immobilienpreisen
Hamburg vergleichen
Was kostet dein Umzug?
Du planst einen Umzug? Finde jetzt die günstigste Umzugsfirma in deiner Region!
Umzugskosten berechnen Schütze dich vor Betrug!
Leiste keinerlei Zahlung im Vorraus!
Beachte unsere Sicherheitshinweise zum Thema Immobilienbetrug und lies, woran du solche Anzeigen erkennen kannst und wie du dich vor Betrügern schützt.
Anzeige melden Beachte unsere Sicherheitshinweise zum Thema Immobilienbetrug und lies, woran du solche Anzeigen erkennen kannst und wie du dich vor Betrügern schützt.
*Anzeige

Ähnliche Immobilien bei ImmoScout24
Hamburg-Horn
- Kaufpreis
- 300.000 €
- Zimmer
- 2 Zi.
- Fläche
- 45 Zi.
Anbieter
Weitere Ergebnisse für:
Wohnungen
Hamburg;
Immobilien
Hamburg;
Haus mieten
Hamburg;
WG Zimmer
Hamburg;
Wohnung
Hamburg kaufen;
Haus kaufen
Hamburg;
Immobilienpreise
Hamburg Mietspiegel
Hamburg wohnungsboerse.net übernimmt keine Gewähr für von Dritten gemachte Angaben