
Etagenwohnung in Dresden-Laubegast
www.immovista.de RUHIGE 3-RAUM WOHNUNG MIT LIFT IN LAUBEGAST
auf der Karte ansehenUmzugskosten berechnen
- Kaufpreis
- 659.500 €
- Zimmer
- 3
- Fläche
- 97.8 m²
19 Aufrufe
Objekt-ID: 38692669
| Objekttyp: | Etagenwohnung |
| Zimmer: | 3 |
| Größe: | 97.80 m² |
| Etage: | 1 von 4 |
| Verfügbar ab: | keine Angabe |
Preise & Kosten
| Kaufpreis: | 659.500 € |
| Jetzt kostenlos Finanzierungsangebot anfragen! | |
| Provision: | Nein |
| Preis/m²: | 6.743,35 € |
| Mit Immobilienpreisen Dresden vergleichen | |
Immobilie
Balkon
| Befeuerungsart: | Zentralheizung |
Objektbeschreibung
In ruhiger, idyllischer Lage einer Seitenstraße des beliebten Stadtteils Laubegast, entsteht ein kleines Mehrfamilienhaus mit 7 Wohnungen. Durch die hochwassersichere Bauweise, beginnen die Wohnungen im 1. Obergeschoss, im Erdgeschoss findet man die Garage.
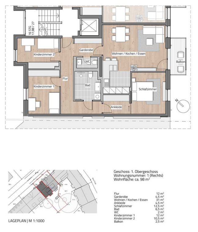
Der hohe Anspruch an den Energiestandard der Gebäudehülle sowie der 3-fach verlasten Fenster, gepaart mit einem modernen Heizsystem hält die zukünftigen Nebenkosten gering. Jede Wohnung ist als 3-Raum oder 4-Raum Variante ausführbar. Die Küchen können offen oder geschlossen gestaltet werden. Der Baubeginn ist im Herbst 2025 geplant, die Fertigstellung wird ca. 18 Monate später erfolgen. Gern berücksichtigen wir Ihre individuellen Wünsche. Im Grundriss handelt es sich um die Wohnung Nr. 01.
Der hohe Anspruch an den Energiestandard der Gebäudehülle sowie der 3-fach verlasten Fenster, gepaart mit einem modernen Heizsystem hält die zukünftigen Nebenkosten gering. Jede Wohnung ist als 3-Raum oder 4-Raum Variante ausführbar. Die Küchen können offen oder geschlossen gestaltet werden. Der Baubeginn ist im Herbst 2025 geplant, die Fertigstellung wird ca. 18 Monate später erfolgen. Gern berücksichtigen wir Ihre individuellen Wünsche. Im Grundriss handelt es sich um die Wohnung Nr. 01.
Lage
01279 DresdenDresden Laubegast
Der aktuelle durchschnittliche Quadratmeterpreis beträgt 3.860,17 €/m² in Dresden - Laubegast. Der durchschnittliche Immobilienpreis in Dresden liegt derzeit bei 3.526,57 €/m².
Mit Immobilienpreisen
Dresden vergleichen
Was kostet dein Umzug?
Du planst einen Umzug? Finde jetzt die günstigste Umzugsfirma in deiner Region!
Umzugskosten berechnen Schütze dich vor Betrug!
Leiste keinerlei Zahlung im Vorraus!
Beachte unsere Sicherheitshinweise zum Thema Immobilienbetrug und lies, woran du solche Anzeigen erkennen kannst und wie du dich vor Betrügern schützt.
Anzeige melden Beachte unsere Sicherheitshinweise zum Thema Immobilienbetrug und lies, woran du solche Anzeigen erkennen kannst und wie du dich vor Betrügern schützt.
*Anzeige
Ähnliche Immobilien bei ImmoScout24
Dresden-Laubegast
- Kaufpreis
- 610.000 €
- Zimmer
- 3 Zi.
- Fläche
- 90 Zi.
Anbieter
Weitere Ergebnisse für:
Wohnungen
Dresden;
Immobilien
Dresden;
Haus mieten
Dresden;
WG Zimmer
Dresden;
Wohnung
Dresden kaufen;
Haus kaufen
Dresden;
Immobilienpreise
Dresden Mietspiegel
Dresden wohnungsboerse.net übernimmt keine Gewähr für von Dritten gemachte Angaben