Wohnung in Hamburg-Nienstedten
Wohnen auf Zeit in Hamburg Hochkamp (von privat)
auf der Karte ansehenUmzugskosten berechnen
- Kaltmiete
- 1.660 €
- Zimmer
- 2
- Fläche
- 86 m²
3172 Aufrufe
Objekt-ID: 26747096
| Objekttyp: | Wohnung |
| Zimmer: | 2 |
| Größe: | 86.00 m² |
| Etage: | 1 von 1 |
| Frei ab: | ab sofort |
Preise & Kosten
| Kaltmiete: | 1.660 € |
| Gesamtmiete: |
1.660 € |
| Preis/m²: | 19,30 € |
| Mit Mietspiegel Hamburg vergleichen | |
| Kaution: | 3000 € |
Immobilie
Möbliert
Balkon
Einbauküche
Wohnen auf Zeit
| Baujahr: | 1962 |
| Qualität der Ausstattung: | normal |
| Objektzustand: | gepflegt |
| Befeuerungsart: | Öl |
| Energieausweis: | Verbrauchsausweis |
| Endenergiebedarf: | 235,80 kWh/(m²*a) |
| Energieeffizienzklasse: | G |
Objektbeschreibung
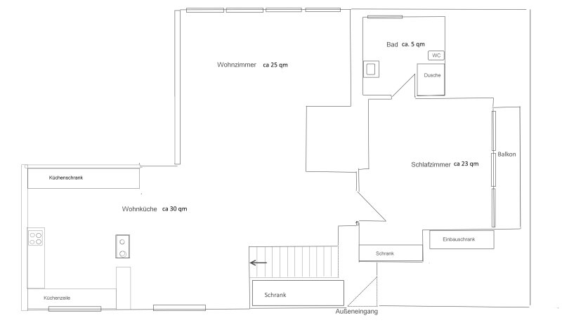
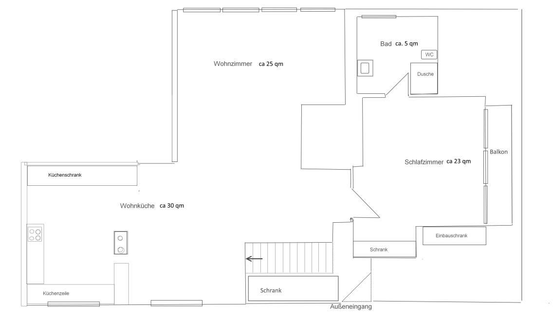
>>OBJEKTBESCHREIBUNG>> Angeboten wird zum „vorübergehenden Gebrauch“ eine möblierte 2-Zimmer-Wohnung, komplett ausgestattet in Hamburg-Hochkamp.
Es handelt sich um eine gepflegte, helle Einliegerwohnung mit separatem Eingang in einer Villa in ruhiger Wohnlage.
>>WOHNZIMMER>>
Sofa mit Recamiere und Hocker, Stühle,
HD-Fernseher, Kabelanschluss, Hifi.
>>ESSBEREICH>> Im Essbereich einladender, großer Tisch für 6 Personen.
>>KÜCHE>> große, voll ausgestattete Küche offen zum Wohnbereich
(Radio, Toaster, Mikrowelle, Backofen,
Einbauküche inkl. Geschirrspülmaschine).
>>SCHLAFZIMMER>> Schlafzimmer mit Doppelbett 140x200, viel Schrankraum (Einbauschränke).
>>BAD>> Duschbad und Waschmaschine mit integriertem Trockner.
>>AUSSTATTUNG>> Die Wohnung ist ausgestattet mit Teppichboden im Wohnbereich, Zentralheizung und Klimaanlage, elektrischen Rollläden.
>>LAGE>>
S-Bahnhof Hochkamp fußläufig zu erreichen,
20 Minuten in die Innenstadt;
25 Autominuten zum Flughafen oder Hauptbahnhof,
gute Anbindung an die A7 (ca. 25 Autominuten zu Airbus),
5 min zur Führungsakademie der Bundeswehr.
Parken ohne Probleme vor dem Haus bzw. auf dem Grundstück.
>>SONSTIGES>> Internet/DSL auf Wunsch. Mindestmietdauer 4 Monate für maximal 2 Personen (Nichtraucher).
Pauschalmiete dh. inkl. Nebenkosten zzgl. Strom und Endreinigung.
Es handelt sich um eine gepflegte, helle Einliegerwohnung mit separatem Eingang in einer Villa in ruhiger Wohnlage.
>>WOHNZIMMER>>
Sofa mit Recamiere und Hocker, Stühle,
HD-Fernseher, Kabelanschluss, Hifi.
>>ESSBEREICH>> Im Essbereich einladender, großer Tisch für 6 Personen.
>>KÜCHE>> große, voll ausgestattete Küche offen zum Wohnbereich
(Radio, Toaster, Mikrowelle, Backofen,
Einbauküche inkl. Geschirrspülmaschine).
>>SCHLAFZIMMER>> Schlafzimmer mit Doppelbett 140x200, viel Schrankraum (Einbauschränke).
>>BAD>> Duschbad und Waschmaschine mit integriertem Trockner.
>>AUSSTATTUNG>> Die Wohnung ist ausgestattet mit Teppichboden im Wohnbereich, Zentralheizung und Klimaanlage, elektrischen Rollläden.
>>LAGE>>
S-Bahnhof Hochkamp fußläufig zu erreichen,
20 Minuten in die Innenstadt;
25 Autominuten zum Flughafen oder Hauptbahnhof,
gute Anbindung an die A7 (ca. 25 Autominuten zu Airbus),
5 min zur Führungsakademie der Bundeswehr.
Parken ohne Probleme vor dem Haus bzw. auf dem Grundstück.
>>SONSTIGES>> Internet/DSL auf Wunsch. Mindestmietdauer 4 Monate für maximal 2 Personen (Nichtraucher).
Pauschalmiete dh. inkl. Nebenkosten zzgl. Strom und Endreinigung.
Lage
Reichskanzlerstraße22609 Hamburg
Hamburg Nienstedten
Der aktuelle durchschnittliche Quadratmeterpreis beträgt 13,90 €/m² in Hamburg - Nienstedten. Der durchschnittliche Quadratmeterpreis in Hamburg liegt derzeit bei 17,12 €/m².
Mit Mietspiegel
Hamburg vergleichen
Was kostet dein Umzug?
Du planst einen Umzug? Finde jetzt die günstigste Umzugsfirma in deiner Region!
Umzugskosten berechnen Schütze dich vor Betrug!
Leiste keinerlei Zahlung im Vorraus!
Beachte unsere Sicherheitshinweise zum Thema Immobilienbetrug und lies, woran du solche Anzeigen erkennen kannst und wie du dich vor Betrügern schützt.
Anzeige melden Beachte unsere Sicherheitshinweise zum Thema Immobilienbetrug und lies, woran du solche Anzeigen erkennen kannst und wie du dich vor Betrügern schützt.
*Anzeige
Ähnliche Wohnungen bei ImmoScout24
Hamburg-Nienstedten
- Miete
- 1.550 €
- Zimmer
- 2 Zi.
- Fläche
- 80 Zi.
Anbieter
privater AnbieterWeitere Ergebnisse für:
Wohnungen
Hamburg;
Immobilien
Hamburg;
Haus mieten
Hamburg;
WG Zimmer
Hamburg;
Wohnung
Hamburg kaufen;
Haus kaufen
Hamburg;
Immobilienpreise
Hamburg Mietspiegel
Hamburg wohnungsboerse.net übernimmt keine Gewähr für von Dritten gemachte Angaben









