
Wohnung in Gera-Untermhaus
Objekt nicht gefunden
auf der Karte ansehenUmzugskosten berechnen
- Kaltmiete
- 1.450 €
- Zimmer
- 3
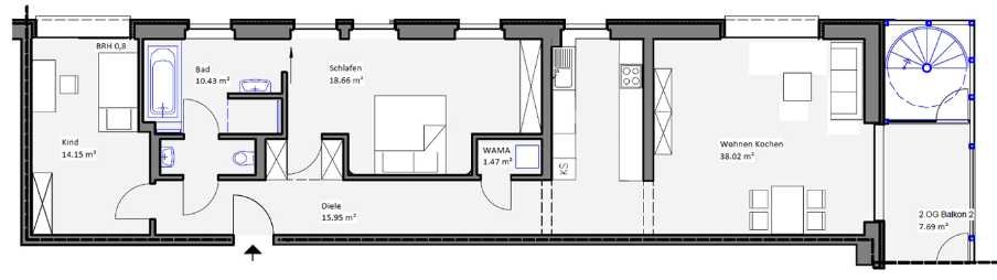
- Fläche
- 102.52 m²
34 Aufrufe
Objekt-ID: 37195940
| Objekttyp: | Keine Angabe |
| Zimmer: | 3 |
| Größe: | 102.52 m² |
| Etage: | 2 von 3 |
| Frei ab: | 01.05.2025 |
Preise & Kosten
| Kaltmiete: | k.A. |
| Nebenkosten: | 260 € |
| Gesamtmiete: |
k.A. |
| Preis/m²: | 14,14 € |
| Mit Mietspiegel Gera vergleichen | |
| Kaution: | k.A. |
Immobilie
Balkon
Aufzug
Objektbeschreibung
Die Wohnungen wurden mit viel Liebe zum Detail und mit hochwertigen Materialien ausgestattet. Der durchdachten Grundrisse bieten großzügige Wohnflächen, die durch edle Parkettböden und stilvolle Fliesenbeläge ergänzt werden. Eine Fußbodenheizung sorgt in allen Räumen für behaglichen Komfort und eine gleichmäßige Wärmeverteilung. Die Wohnungen sind mit einer hochwertigen Elektroinstallation und Videosprechanlage ausgestattet. Ein moderner Aufzug gehört ebenfalls zum Standard dieses Hauses.
Eine moderne Luft-Wärmepumpe gekoppelt mit einer Photovoltaik Anlage sorgt für effizientes Heizen und die hochwertigen Holzfenster mit 3-fach Verglasung sowie die durchgeführten Wärmedämmmaßnahmen im gesamten Gebäude reduzieren gleichzeitig die Energiekosten erheblich.
Auf dem Grundstück wurde ein Parkdeck mit 2 Ebenen für 21 Fahrzeuge und 5 große Garagen geschaffen. Alle Stellplätze bieten die Möglichkeit der Installation einer E-Ladestation.
Eine moderne Luft-Wärmepumpe gekoppelt mit einer Photovoltaik Anlage sorgt für effizientes Heizen und die hochwertigen Holzfenster mit 3-fach Verglasung sowie die durchgeführten Wärmedämmmaßnahmen im gesamten Gebäude reduzieren gleichzeitig die Energiekosten erheblich.
Auf dem Grundstück wurde ein Parkdeck mit 2 Ebenen für 21 Fahrzeuge und 5 große Garagen geschaffen. Alle Stellplätze bieten die Möglichkeit der Installation einer E-Ladestation.
Lage
Schloss Osterstein07548 Gera
Gera Untermhaus
Der aktuelle durchschnittliche Quadratmeterpreis beträgt 6,11 €/m² in Gera - Untermhaus. Der durchschnittliche Quadratmeterpreis in Gera liegt derzeit bei 6,75 €/m².
Mit Mietspiegel
Gera vergleichen
Was kostet dein Umzug?
Du planst einen Umzug? Finde jetzt die günstigste Umzugsfirma in deiner Region!
Umzugskosten berechnen Schütze dich vor Betrug!
Leiste keinerlei Zahlung im Vorraus!
Beachte unsere Sicherheitshinweise zum Thema Immobilienbetrug und lies, woran du solche Anzeigen erkennen kannst und wie du dich vor Betrügern schützt.
Anzeige melden Beachte unsere Sicherheitshinweise zum Thema Immobilienbetrug und lies, woran du solche Anzeigen erkennen kannst und wie du dich vor Betrügern schützt.
*Anzeige
Ähnliche Wohnungen bei ImmoScout24
Gera-Untermhaus
- Miete
- 1.300 €
- Zimmer
- 3 Zi.
- Fläche
- 95 Zi.
Anbieter
Diese Anzeige ist momentan deaktiviert. Daher ist eine Kontaktaufnahme nicht möglich.
Weitere Ergebnisse für:
Wohnungen
Gera;
Immobilien
Gera;
Haus mieten
Gera;
WG Zimmer
Gera;
Wohnung
Gera kaufen;
Haus kaufen
Gera;
Immobilienpreise
Gera Mietspiegel
Gera wohnungsboerse.net übernimmt keine Gewähr für von Dritten gemachte Angaben