
Etagenwohnung in Dresden-Leubnitz-Neuostra
4-Zimmer Wohnung mit Balkon in zentraler Lage ### 3 Monate mietfei ###
auf der Karte ansehenUmzugskosten berechnen
- Kaltmiete
- 680 €
- Zimmer
- 4
- Fläche
- 77 m²
998 Aufrufe
Objekt-ID: 37632819
Objekttyp: | Etagenwohnung |
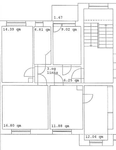
Zimmer: | 4 |
Größe: | 77.00 m² |
Etage: | 3 von 3 |
Frei ab: | sofort |
Preise & Kosten
Kaltmiete: | 680 € |
Nebenkosten: | 200 € |
Gesamtmiete: |
880 € |
Preis/m²: | 8,83 € |
Mit Mietspiegel Dresden vergleichen | |
Kaution: | k.A. |
Immobilie
Balkon
Garten
Keller
Tiere erlaubt
Befeuerungsart: | Gas |
Energieausweis: | Energieausweis in Vorbereitung |
Objektbeschreibung
Die Wohnung ist von den Vormietern weit über den üblichen Gebrauch abgewohnt worden und dementsprechend renovierungsbedürftig. Aufgrund voller Auftragsbücher und extrem gestiegener Baukosten auch in diesem Segment, bieten wir Ihnen an, die Wohnung in Eigenregie zu renovieren. Wir stellen Ihnen Material und beschaffen neue Sanitäreinrichtungen und Sie renovieren in Abstimmung mit uns und gemäß den anerkannten Regeln der Technik (handwerkliche Fachkunde und Geschick vorausgesetzt) die Wohnung im Wesentlichen nach Ihren Vorstellungen. Für die Zeit von 3 Monaten zahlen Sie ausschließlich die Betriebskostenvorauszahlung. Nach Ablauf der 3 Monate zahlen Sie dann die hier aufgerufene Warmmiete.
Wir freuen uns auf Ihre aussagekräftigen Anfragen mit entsprechenden Belegen Ihrer handwerklichen Eignung, um so ein Vorhaben auch zu realisieren.
Wir freuen uns auf Ihre aussagekräftigen Anfragen mit entsprechenden Belegen Ihrer handwerklichen Eignung, um so ein Vorhaben auch zu realisieren.
Lage
Dohnaer Str.01219 Dresden
Dresden Leubnitz-Neuostra
Der aktuelle durchschnittliche Quadratmeterpreis beträgt 10,22 €/m² in Dresden - Leubnitz-Neuostra. Der durchschnittliche Quadratmeterpreis in Dresden liegt derzeit bei 10,33 €/m².
Mit Mietspiegel
Dresden vergleichen
Was kostet dein Umzug?
Du planst einen Umzug? Finde jetzt die günstigste Umzugsfirma in deiner Region!
Umzugskosten berechnen Schütze dich vor Betrug!
Leiste keinerlei Zahlung im Vorraus!
Beachte unsere Sicherheitshinweise zum Thema Immobilienbetrug und lies, woran du solche Anzeigen erkennen kannst und wie du dich vor Betrügern schützt.
Anzeige melden Beachte unsere Sicherheitshinweise zum Thema Immobilienbetrug und lies, woran du solche Anzeigen erkennen kannst und wie du dich vor Betrügern schützt.
*Anzeige

Ähnliche Wohnungen bei ImmoScout24
Dresden-Leubnitz-Neuostra
- Miete
- 550 €
- Zimmer
- 4 Zi.
- Fläche
- 70 Zi.
Anbieter
Weitere Ergebnisse für:
Wohnungen
Dresden;
Immobilien
Dresden;
Haus mieten
Dresden;
WG Zimmer
Dresden;
Wohnung
Dresden kaufen;
Haus kaufen
Dresden;
Immobilienpreise
Dresden Mietspiegel
Dresden wohnungsboerse.net übernimmt keine Gewähr für von Dritten gemachte Angaben