
Etagenwohnung in Dresden-Gruna
Tauschwohnung: 2-Zimmer Albaucharme mit 2 Balkonen
auf der Karte ansehenUmzugskosten berechnen
- Kaltmiete
- 450 €
- Zimmer
- 2
- Fläche
- 61.32 m²
8 Aufrufe
Objekt-ID: 38760221
| Objekttyp: | Etagenwohnung |
| Zimmer: | 2 |
| Größe: | 61.32 m² |
| Etage: | 2 |
| Frei ab: | keine Angabe |
Preise & Kosten
| Kaltmiete: | 450 € |
| Nebenkosten: | 150 € |
| Gesamtmiete: |
600 € |
| Preis/m²: | 7,34 € |
| Mit Mietspiegel Dresden vergleichen | |
| Kaution: | k.A. |
Immobilie
Balkon
Keller
Tiere erlaubt
Objektbeschreibung
Ich biete meine herrliche 2-Zimmerwohnung zum Tausch an.
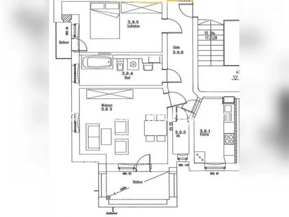
Die Raumaufteilung ist optimal, da alle Räume vom Flur aus betretbar sind. Das Schlafzimmer verfügt über einen kleinen Balkon. Das Badezimmer ist mit einer Wanne, einem Fenster und einem Waschmaschinenanschluss ausgestattet. Ein großer Balkon mit ca. 7,5 Quadratmeter ist vom Wohnzimmer aus begehbar. Der Balkon ist zum ruhigen Innenhof ausgerichtet und bietet einen herrlichen Ausblick auf den Fernsehturm.
Die Wohnung besitzt seinen klassischen Albaucharme mit hohen Decken.
Zur Wohnung gehört ein großes Kellerabteil und einen weiteren Waschmaschinenanschluss im Waschkeller. Das Mehrfamilienhaus bietet noch einen Fahrradraum und einen gepflegten Hinterhof mit Wäscheleinen.
Die Raumaufteilung ist optimal, da alle Räume vom Flur aus betretbar sind. Das Schlafzimmer verfügt über einen kleinen Balkon. Das Badezimmer ist mit einer Wanne, einem Fenster und einem Waschmaschinenanschluss ausgestattet. Ein großer Balkon mit ca. 7,5 Quadratmeter ist vom Wohnzimmer aus begehbar. Der Balkon ist zum ruhigen Innenhof ausgerichtet und bietet einen herrlichen Ausblick auf den Fernsehturm.
Die Wohnung besitzt seinen klassischen Albaucharme mit hohen Decken.
Zur Wohnung gehört ein großes Kellerabteil und einen weiteren Waschmaschinenanschluss im Waschkeller. Das Mehrfamilienhaus bietet noch einen Fahrradraum und einen gepflegten Hinterhof mit Wäscheleinen.
Lage
Tauschwohnungstraße01277 Dresden
Dresden Gruna
Der aktuelle durchschnittliche Quadratmeterpreis beträgt 10,22 €/m² in Dresden - Gruna. Der durchschnittliche Quadratmeterpreis in Dresden liegt derzeit bei 10,33 €/m².
Mit Mietspiegel
Dresden vergleichen
Was kostet dein Umzug?
Du planst einen Umzug? Finde jetzt die günstigste Umzugsfirma in deiner Region!
Umzugskosten berechnen Schütze dich vor Betrug!
Leiste keinerlei Zahlung im Vorraus!
Beachte unsere Sicherheitshinweise zum Thema Immobilienbetrug und lies, woran du solche Anzeigen erkennen kannst und wie du dich vor Betrügern schützt.
Anzeige melden Beachte unsere Sicherheitshinweise zum Thema Immobilienbetrug und lies, woran du solche Anzeigen erkennen kannst und wie du dich vor Betrügern schützt.
*Anzeige
Ähnliche Wohnungen bei ImmoScout24
Dresden-Gruna
- Miete
- 300 €
- Zimmer
- 2 Zi.
- Fläche
- 55 Zi.
Anbieter
Weitere Ergebnisse für:
Wohnungen
Dresden;
Immobilien
Dresden;
Haus mieten
Dresden;
WG Zimmer
Dresden;
Wohnung
Dresden kaufen;
Haus kaufen
Dresden;
Immobilienpreise
Dresden Mietspiegel
Dresden wohnungsboerse.net übernimmt keine Gewähr für von Dritten gemachte Angaben