
Erdgeschosswohnung in Dresden-Albertstadt
Tauschwohnung: Biete ruhig gelegene 3R-Wohnung in der Albertstadt
auf der Karte ansehenUmzugskosten berechnen
- Kaltmiete
- 487 €
- Zimmer
- 3
- Fläche
- 75 m²
36 Aufrufe
Objekt-ID: 38905920
| Objekttyp: | Erdgeschosswohnung |
| Zimmer: | 3 |
| Größe: | 75.00 m² |
| Frei ab: | keine Angabe |
Preise & Kosten
| Kaltmiete: | 487 € |
| Nebenkosten: | 280 € |
| Gesamtmiete: |
767 € |
| Preis/m²: | 6,49 € |
| Mit Mietspiegel Dresden vergleichen | |
| Kaution: | k.A. |
Immobilie
Balkon
Garten
Einbauküche
Aufzug
Keller
Tiere erlaubt
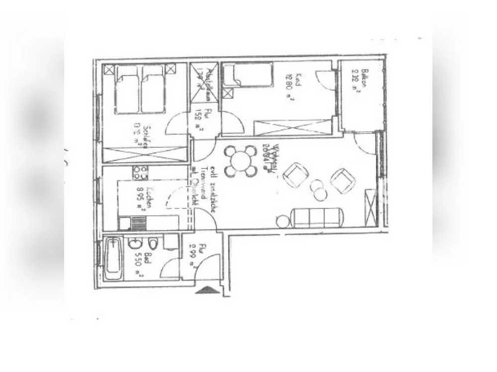
Objektbeschreibung
Unsere Dreiraum- Wohnung (75 qm; Baujahr 2000) mit
Terrasse + kleinem Garten
Badewanne
Keller
Küche in separatem Raum
Fahrradkeller und Wäschekeller
befindet sich in dem ruhigem/ grünen Stadtteil Dresden-Albertstadt zwischen Stauffenbergallee und Fabricestr. nähe Carolapark/ Heller.
Das Edeka Heeresbäckerei als Einkaufmöglichkeit, die Haltestellen der Straßenbahnlinie 7/8 und Buslinie 64, Hechtviertel und die Neustadt liegen fußläufig max. 10 Minuten entfernt.
Ebenso bieten der nahe gelegene Heller/ die Hellerberge und der Prießnitzgrund tolle Ausflüge ins Grüne.
Es besteht die Möglichkeit einen extra Stellplatz in der TG (35 €/Monat) oder auf dem Deck (25€/Monat) anzumieten.
Wir suchen eine ruhig gelegene Vierraum-Wohnung mit mind. 90 qm in den angegebenen Stadtteilen (Haustiere erlaubt). Unverzichtbar für uns sind neben einer ebenso ruhigen Lage ein Balkon/Terrasse oder Garten(anteil) und eine Badewanne.
Bei ernsthaftem Tauschinteresse stellen wir gerne Bilder von unserem Wohnbereich zur Verfügung. Ebenso würden wir auch erst dann den Vermieter kontaktieren. Es könnte Möglich sein, dass sich die Kaltmiete bei Abschluss eines neues Mietvertrages ändert.
Terrasse + kleinem Garten
Badewanne
Keller
Küche in separatem Raum
Fahrradkeller und Wäschekeller
befindet sich in dem ruhigem/ grünen Stadtteil Dresden-Albertstadt zwischen Stauffenbergallee und Fabricestr. nähe Carolapark/ Heller.
Das Edeka Heeresbäckerei als Einkaufmöglichkeit, die Haltestellen der Straßenbahnlinie 7/8 und Buslinie 64, Hechtviertel und die Neustadt liegen fußläufig max. 10 Minuten entfernt.
Ebenso bieten der nahe gelegene Heller/ die Hellerberge und der Prießnitzgrund tolle Ausflüge ins Grüne.
Es besteht die Möglichkeit einen extra Stellplatz in der TG (35 €/Monat) oder auf dem Deck (25€/Monat) anzumieten.
Wir suchen eine ruhig gelegene Vierraum-Wohnung mit mind. 90 qm in den angegebenen Stadtteilen (Haustiere erlaubt). Unverzichtbar für uns sind neben einer ebenso ruhigen Lage ein Balkon/Terrasse oder Garten(anteil) und eine Badewanne.
Bei ernsthaftem Tauschinteresse stellen wir gerne Bilder von unserem Wohnbereich zur Verfügung. Ebenso würden wir auch erst dann den Vermieter kontaktieren. Es könnte Möglich sein, dass sich die Kaltmiete bei Abschluss eines neues Mietvertrages ändert.
Lage
01099 DresdenDresden Albertstadt
Der aktuelle durchschnittliche Quadratmeterpreis beträgt 10,09 €/m² in Dresden - Albertstadt. Der durchschnittliche Quadratmeterpreis in Dresden liegt derzeit bei 10,35 €/m².
Mit Mietspiegel
Dresden vergleichen
Was kostet dein Umzug?
Du planst einen Umzug? Finde jetzt die günstigste Umzugsfirma in deiner Region!
Umzugskosten berechnen Schütze dich vor Betrug!
Leiste keinerlei Zahlung im Vorraus!
Beachte unsere Sicherheitshinweise zum Thema Immobilienbetrug und lies, woran du solche Anzeigen erkennen kannst und wie du dich vor Betrügern schützt.
Anzeige melden Beachte unsere Sicherheitshinweise zum Thema Immobilienbetrug und lies, woran du solche Anzeigen erkennen kannst und wie du dich vor Betrügern schützt.
*Anzeige
Ähnliche Wohnungen bei ImmoScout24
Dresden-Albertstadt
- Miete
- 350 €
- Zimmer
- 3 Zi.
- Fläche
- 65 Zi.
Anbieter
Weitere Ergebnisse für:
Wohnungen
Dresden;
Immobilien
Dresden;
Haus mieten
Dresden;
WG Zimmer
Dresden;
Wohnung
Dresden kaufen;
Haus kaufen
Dresden;
Immobilienpreise
Dresden Mietspiegel
Dresden wohnungsboerse.net übernimmt keine Gewähr für von Dritten gemachte Angaben