
Erdgeschosswohnung in Lübeck-St. Jürgen
Hochwertige 2,5-Zimmer EG-Wohnung mit Terrasse & großem Garten – Neubau, Top-Ausstattung
auf der Karte ansehenUmzugskosten berechnen
- Kaltmiete
- 1.300 €
- Zimmer
- 2.5
- Fläche
- 76 m²
3 Aufrufe
Objekt-ID: 39056290
| Objekttyp: | Erdgeschosswohnung |
| Zimmer: | 2.5 |
| Größe: | 76.00 m² |
| Frei ab: | 15.1.2026 |
Preise & Kosten
| Kaltmiete: | 1.300 € |
| Nebenkosten: | 310 € |
| Gesamtmiete: |
1.610 € |
| Preis/m²: | 17,11 € |
| Mit Mietspiegel Lübeck vergleichen | |
| Kaution: | k.A. |
Immobilie
Balkon
Terrasse
Garten
Einbauküche
Neubau
Objektbeschreibung
Warmmiete: 1.610 € (1.300 € kalt + 310 € NK)
Stellplatz optional: 30 € / Monat
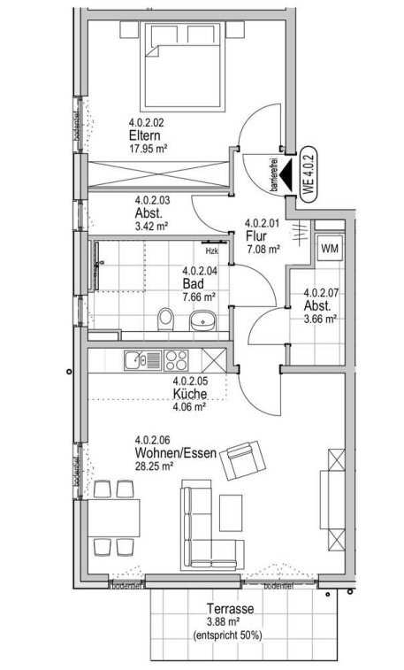
Wohnfläche: ca. 76 m²
Garten: ca. 90 m²
Zimmer: 2,5
Haustiere: Nicht erlaubt
Bezugsfertig: voraussichtlich ab 15.01.2026
Lage: St. Jürgen (ruhiges Neubaugebiet)
⸻
Objektbeschreibung
Zur Vermietung steht eine hochwertige, barrierefreie Erdgeschosswohnung in einem modernen 5-Parteien-Haus (Baujahr 2021).
Die Wohnung wurde ursprünglich für den Eigentümer selbst gebaut und ist entsprechend sehr hochwertig ausgestattet.
Ein besonderes Highlight ist der privat nutzbare Garten (ca. 90 m²) mit angrenzender Terrasse – ideal zum Entspannen und Genießen.
⸻
Ausstattung
✓ Designer-Häcker-Küche (grifflos) mit LED-Beleuchtung & Fernbedienung
✓ Hochwertige Geräteausstattung:
• Siemens Induktionskochfeld
• Siemens Backofen mit Mikrowellenfunktion
• Siemens Geschirrspüler
• Siemens integrierte Kaffeemaschine
• Liebherr Kühlschrank
• Liebherr separater Gefrierschrank
✓ Fußbodenheizung in allen Räumen
✓ Bodengleiche Regendusche im Bad
✓ Außenrollos an allen Fenstern
✓ LAN-Steckdose im Wohnzimmer (Router-Direktverbindung)
✓ Moderne Kamera-Türklingel
✓ Professionelle Fliegengitter-Schiebetür zur Terrasse
✓ Barrierefrei
⸻
Räume & Aufteilung
• Großzügiges Wohnzimmer mit Essbereich
• Offene hochwertige Einbauküche
• Schlafzimmer
• Modernes Bad mit Regendusche
• Hauswirtschaftsraum in der Wohnung
• Abstellraum in der Wohnung
• Gemeinschaftlicher Fahrradraum für die Hausbewohner
⸻
Wichtige Hinweise
• Haustiere sind nicht erlaubt
• Stellplatz: 30 €/Monat
• Strom: separat vom Mieter zu zahlen
• Bezugsfertig voraussichtlich ab 15.01.2026
Stellplatz optional: 30 € / Monat
Wohnfläche: ca. 76 m²
Garten: ca. 90 m²
Zimmer: 2,5
Haustiere: Nicht erlaubt
Bezugsfertig: voraussichtlich ab 15.01.2026
Lage: St. Jürgen (ruhiges Neubaugebiet)
⸻
Objektbeschreibung
Zur Vermietung steht eine hochwertige, barrierefreie Erdgeschosswohnung in einem modernen 5-Parteien-Haus (Baujahr 2021).
Die Wohnung wurde ursprünglich für den Eigentümer selbst gebaut und ist entsprechend sehr hochwertig ausgestattet.
Ein besonderes Highlight ist der privat nutzbare Garten (ca. 90 m²) mit angrenzender Terrasse – ideal zum Entspannen und Genießen.
⸻
Ausstattung
✓ Designer-Häcker-Küche (grifflos) mit LED-Beleuchtung & Fernbedienung
✓ Hochwertige Geräteausstattung:
• Siemens Induktionskochfeld
• Siemens Backofen mit Mikrowellenfunktion
• Siemens Geschirrspüler
• Siemens integrierte Kaffeemaschine
• Liebherr Kühlschrank
• Liebherr separater Gefrierschrank
✓ Fußbodenheizung in allen Räumen
✓ Bodengleiche Regendusche im Bad
✓ Außenrollos an allen Fenstern
✓ LAN-Steckdose im Wohnzimmer (Router-Direktverbindung)
✓ Moderne Kamera-Türklingel
✓ Professionelle Fliegengitter-Schiebetür zur Terrasse
✓ Barrierefrei
⸻
Räume & Aufteilung
• Großzügiges Wohnzimmer mit Essbereich
• Offene hochwertige Einbauküche
• Schlafzimmer
• Modernes Bad mit Regendusche
• Hauswirtschaftsraum in der Wohnung
• Abstellraum in der Wohnung
• Gemeinschaftlicher Fahrradraum für die Hausbewohner
⸻
Wichtige Hinweise
• Haustiere sind nicht erlaubt
• Stellplatz: 30 €/Monat
• Strom: separat vom Mieter zu zahlen
• Bezugsfertig voraussichtlich ab 15.01.2026
Lage
23560 LübeckLübeck St. Jürgen
Der aktuelle durchschnittliche Quadratmeterpreis beträgt 9,40 €/m² in Lübeck - St. Jürgen. Der durchschnittliche Quadratmeterpreis in Lübeck liegt derzeit bei 12,20 €/m².
Mit Mietspiegel
Lübeck vergleichen
Was kostet dein Umzug?
Du planst einen Umzug? Finde jetzt die günstigste Umzugsfirma in deiner Region!
Umzugskosten berechnen Schütze dich vor Betrug!
Leiste keinerlei Zahlung im Vorraus!
Beachte unsere Sicherheitshinweise zum Thema Immobilienbetrug und lies, woran du solche Anzeigen erkennen kannst und wie du dich vor Betrügern schützt.
Anzeige melden Beachte unsere Sicherheitshinweise zum Thema Immobilienbetrug und lies, woran du solche Anzeigen erkennen kannst und wie du dich vor Betrügern schützt.
*Anzeige
Ähnliche Wohnungen bei ImmoScout24
Lübeck-St. Jürgen
- Miete
- 1.150 €
- Zimmer
- 2.5 Zi.
- Fläche
- 70 Zi.
Weitere Ergebnisse für:
Wohnungen
Lübeck;
Immobilien
Lübeck;
Haus mieten
Lübeck;
WG Zimmer
Lübeck;
Wohnung
Lübeck kaufen;
Haus kaufen
Lübeck;
Immobilienpreise
Lübeck Mietspiegel
Lübeck wohnungsboerse.net übernimmt keine Gewähr für von Dritten gemachte Angaben