
Wohnung in Wien
Objekt nicht gefunden
auf der Karte ansehenUmzugskosten berechnen
- Gesamtmiete
- 1.052 €
- Zimmer
- 2
- Fläche
- 49 m²
10 Aufrufe
Objekt-ID: 37665854
| Objekttyp: | Wohnung |
| Zimmer: | 2 |
| Größe: | 49.00 m² |
| Frei ab: | keine Angabe |
Immobilie
Garten
Einbauküche
Aufzug
Keller
Objektbeschreibung
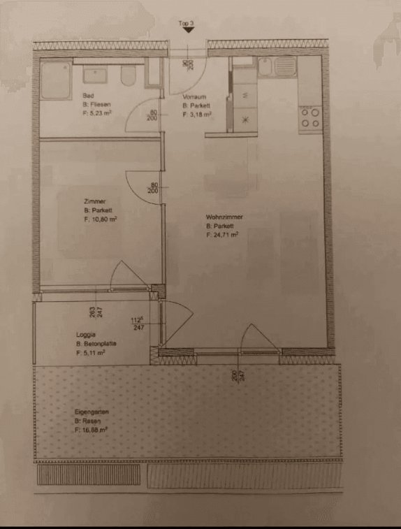
Barrierefreie Erdgeschosswohnung mit Garten in 1110 Wien, Fuchsröhrenstraße 29. Die 49 m² große Neubauwohnung verfügt über 2 Zimmer und ist ab 01.07.2025 verfügbar. Die monatlichen alle Kosten betragen 1.052 € mit einer Kaution von 3.000 €. Die Wohnung bietet eine 5,11 m² große Loggia und einen 16 m² großen Garten.
Die vollmöblierte Wohnung ist mit Parkettboden ausgestattet und verfügt über eine Einbauküche. Zur Ausstattung gehören Fernwärme und eine Etagenheizung. Die Wohnung ist rollstuhlgerecht und über einen Aufzug erreichbar. Zusätzlich steht ein Kellerabteil zur Verfügung.
Die vollmöblierte Wohnung ist mit Parkettboden ausgestattet und verfügt über eine Einbauküche. Zur Ausstattung gehören Fernwärme und eine Etagenheizung. Die Wohnung ist rollstuhlgerecht und über einen Aufzug erreichbar. Zusätzlich steht ein Kellerabteil zur Verfügung.
Bewerbermappe
Jetzt Bewerbermappe erstellen
Lage
Fuchsröhrenstraße1110 Wien
Wien
Der aktuelle durchschnittliche Quadratmeterpreis beträgt 18,36 €/m² in Wien.
Mit Mietspiegel
Wien vergleichen
Was kostet dein Umzug?
Du planst einen Umzug? Finde jetzt die günstigste Umzugsfirma in deiner Region!
Umzugskosten berechnen Schütze dich vor Betrug!
Leiste keinerlei Zahlung im Vorraus!
Beachte unsere Sicherheitshinweise zum Thema Immobilienbetrug und lies, woran du solche Anzeigen erkennen kannst und wie du dich vor Betrügern schützt.
Anzeige melden Beachte unsere Sicherheitshinweise zum Thema Immobilienbetrug und lies, woran du solche Anzeigen erkennen kannst und wie du dich vor Betrügern schützt.
Anbieter
Diese Anzeige ist momentan deaktiviert. Daher ist eine Kontaktaufnahme nicht möglich.
Weitere Ergebnisse für:
Wohnungen
Wien;
Immobilien
Wien;
Haus mieten
Wien;
Wohnung
Wien kaufen;
Haus kaufen
Wien;
Immobilienpreise
Wien Mietspiegel
Wien wohnungsboerse.net übernimmt keine Gewähr für von Dritten gemachte Angaben