
Wohnung in Wien
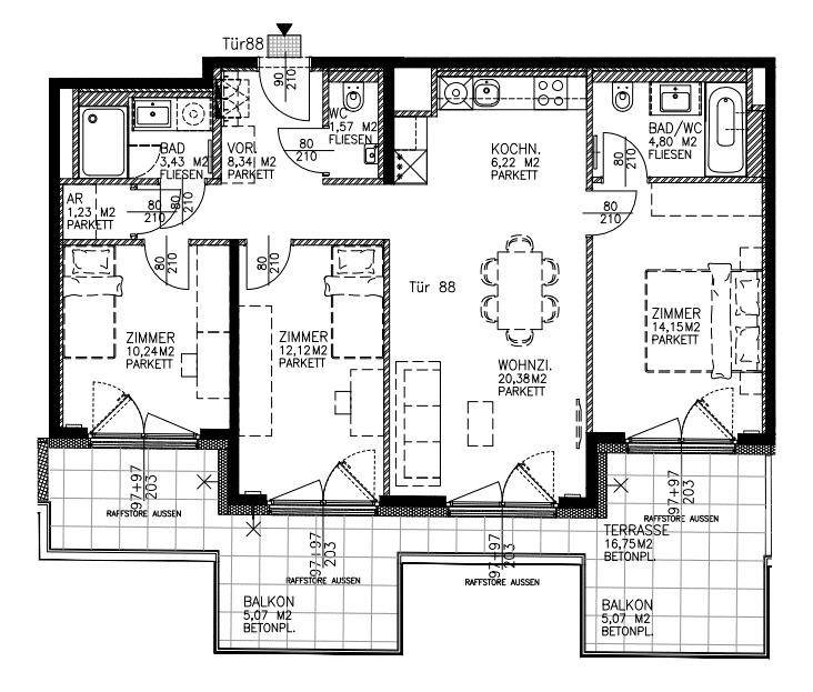
Sonnige 4-Zimmer-Dachgeschoß-Wohnung mit durchgehender Terrasse in Niedrigenergiehaus - zu mieten in 1110 Wien
auf der Karte ansehenUmzugskosten berechnen
- Gesamtmiete
- 1.570,75 €
- Zimmer
- 4
- Fläche
- 82.49 m²
1 Aufrufe
Objekt-ID: 39054298
| Objekttyp: | Wohnung |
| Zimmer: | 4 |
| Größe: | 82.49 m² |
| Frei ab: | keine Angabe |
Immobilie
Balkon
Terrasse
Einbauküche
Keller
Tiere erlaubt
Objektbeschreibung
MY LORY - Die perfekte Lage in Simmering.
Angrenzend an das Zentrum Simmering befindet sich im 2023 in Niedrigenergieweise erbauten Gebäude diese sonnige 4-Zimmer-Dachgeschoß-Wohnung mit durchgehenden Balkonen / Terrassen.
Die Wohnung ist zudem mit Klimaanlage ausgestattet.
Die Wohnhausanlage besticht durch Energieeffizienz, intelligente Grundrisse und eine hochwertige Ausstattung.
Alle Wohnungen sind mit überhohen Türen und Terrassentüren, bodentiefen Fenstern mit Dreischeibenisolierverglasung, Beschattungsanlagen, Markeneinbauküchen, modernen Elektrogeräten, eleganten Bädern mit großflächigen Designfliesen und hochwertigen Eichenparkettböden, ausgestattet.
Die Fußbodenheizung erfolgt über eine zentrale Wärmeaufbereitungsanlage über Fernwärme.
Angrenzend an das Zentrum Simmering befindet sich im 2023 in Niedrigenergieweise erbauten Gebäude diese sonnige 4-Zimmer-Dachgeschoß-Wohnung mit durchgehenden Balkonen / Terrassen.
Die Wohnung ist zudem mit Klimaanlage ausgestattet.
Die Wohnhausanlage besticht durch Energieeffizienz, intelligente Grundrisse und eine hochwertige Ausstattung.
Alle Wohnungen sind mit überhohen Türen und Terrassentüren, bodentiefen Fenstern mit Dreischeibenisolierverglasung, Beschattungsanlagen, Markeneinbauküchen, modernen Elektrogeräten, eleganten Bädern mit großflächigen Designfliesen und hochwertigen Eichenparkettböden, ausgestattet.
Die Fußbodenheizung erfolgt über eine zentrale Wärmeaufbereitungsanlage über Fernwärme.
Bewerbermappe
Jetzt Bewerbermappe erstellen
Lage
1110 WienWien
Der aktuelle durchschnittliche Quadratmeterpreis beträgt 18,36 €/m² in Wien.
Mit Mietspiegel
Wien vergleichen
Was kostet dein Umzug?
Du planst einen Umzug? Finde jetzt die günstigste Umzugsfirma in deiner Region!
Umzugskosten berechnen Schütze dich vor Betrug!
Leiste keinerlei Zahlung im Vorraus!
Beachte unsere Sicherheitshinweise zum Thema Immobilienbetrug und lies, woran du solche Anzeigen erkennen kannst und wie du dich vor Betrügern schützt.
Anzeige melden Beachte unsere Sicherheitshinweise zum Thema Immobilienbetrug und lies, woran du solche Anzeigen erkennen kannst und wie du dich vor Betrügern schützt.
Anbieter
Weitere Ergebnisse für:
Wohnungen
Wien;
Immobilien
Wien;
Haus mieten
Wien;
Wohnung
Wien kaufen;
Haus kaufen
Wien;
Immobilienpreise
Wien Mietspiegel
Wien wohnungsboerse.net übernimmt keine Gewähr für von Dritten gemachte Angaben