
Etagenwohnung in Wien
Neues Projekt in der Schwarzelackenau beim Marchfeldkanal - noch 17 Einheiten verfügbar!
auf der Karte ansehenUmzugskosten berechnen
- Kaufpreis
- 569.000 €
- Zimmer
- 2
- Fläche
- 88.04 m²
17 Aufrufe
Objekt-ID: 38160074
| Objekttyp: | Etagenwohnung |
| Zimmer: | 2 |
| Größe: | 88.04 m² |
| Verfügbar ab: | keine Angabe |
Immobilie
Aufzug
Keller
Behindertengerecht
Objektbeschreibung
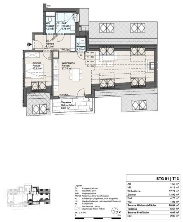
Top 13 | 2 Zimmer | ca. 88 m² + ca. 7 m² FreiflächeDie helle, loftartige Wohnung bietet auf ca. 88 m² ein großzügiges Raumgefühl. Herzstück ist die ca. 58 m² große Wohnküche, die durch bodentiefe Fenstertüren und zahlreiche Dachfenster lichtdurchflutet ist. Zusätzlich steht ein weiteres, vielseitig nutzbares Zimmer zur Verfügung. Von der Wohnküche aus gelangt man auf die ca. 7 m² große Terrasse, die den Wohnbereich ins Freie erweitert und für ein offenes, freundliches Ambiente sorgt.Raumaufteilung: Abstellraum: ca. 1,55 m² Vorraum: ca. 8,12 m² Wohnküche: ca. 57,74 m² Zimmer: ca. 13,92 m² Bad: ca. 4,78 m² WC: ca. 1,93 m² Terrasse: ca. 6,67 m²Ein Kellerabteil mit ca. 2,92 m² ist der Wohnung zugeordnet.Besonders hervorzuheben: Der Bau hat bereits begonnen – das ermöglicht Ihnen als Käufer, gemeinsam mit dem Architekten individuelle Anpassungen in der Raumgestaltung vorzunehmen und Ihre persönlichen Wohnideen zu verwirklichen (solange es noch möglich ist).Die Architektur ist klar und zeitgemäß, das Wohnkonzept auf langfristige Qualität ausgerichtet: Alle Wohnungen sind barrierefrei zugänglich. Beheizt wird mittels Luft/Wasser-Wärmepumpe , ergänzt durch eine Photovoltaikanlage zur Unterstützung des Allgemeinstroms. Eine Tiefgarage mit gesamt 19 Stellplätzen , steht Ihnen zur Verfügung.Technische Ausstattung & Komfort: Wärmepumpe Photovoltaik/Solaranlage zur Reduktion von Energie- und Betriebskosten Fußbodenheizung mit Raumthermostaten Fußbodentemperierung in sämtlichen Zimmern Hochwertige Innenausstattung (Eichenparkett, Feinsteinfliesen u.v.m.) 3‑fach verglaste Kunststoff‑Alu‑Fenster und Sonnenschutz in allen Wohnungen (Rollladen, Raffstores, Markisoletten) Kleinkinderspielplatz auf EigengrundKaufpreis:Der Verkaufspreis beläuft sich auf Euro 569.000.-Diese Wohnung kann auch als Vorsorge- / Anlagewohnung mit Umsatzsteuerausweisung (weitere Vermietung verpflichtend!) erworben werden:Anlegerpreis: Euro 512.612,61.- (zzgl. 20% Ust).Alle Preise verstehen sich ohne Kücheneinrichtung und Tiefgaragenstellplatz ( á € 32.256.- bzw. 29.059,46.- Netto + USt) , in schlüsselfertiger Ausführung!Was überzeugt? Ein klar strukturiertes Konzept, intelligente Grundrisse und eine Lage mit Lebensqualität. Egal ob zur Kapitalanlage oder für den Eigenbedarf – Mit diesem Wohnbauprojekt investieren Sie in Lebensqualität und Substanz! Immobilien gelten als wertbeständige und sichere Anlageform. Alle Wohnungen und Stellplätze können auch als Vorsorge- / Anlagewohnung mit Umsatzsteuerausweisung (weitere Vermietung verpflichtend!) erworben werden! Sichern Sie sich Ihre neue Vorsorgewohnung - gerne beraten wir Sie dazu!Infina, Österreichs beliebtester Wohnbau-Finanz-Experte, begleitet Sie ganzheitlich rund um Ihr Immobilienvorhaben.Unser Team von Immobilienexperten unterstützt Sie beim geplanten Kauf als auch bei einem möglichen Verkauf Ihrer bestehenden Immobilie. Zudem bieten unsere Finanzierungsexperten auf Wunsch maßgeschneiderte Finanzierungslösungen durch den Vergleich der besten Kredite von über 120 Banken in Österreich und Deutschland.Wir möchten Sie unabhängig, transparent und flexibel als starker Partner in allen Immobilienangelegenheiten unterstützen.Kontaktieren Sie uns für einen persönlichen Besichtigungstermin oder eine unverbindliche und kostenfreie Finanzierungsberatung.Was kann Infina noch für Sie tun?Wenn Sie eine Finanzierung für Ihre Traumimmobilie wünschen, begleiten wir Sie gerne von der strategischen Planung bis zur Realisierung und darüber hinaus. Wir sind Österreichs beliebtester Wohnbau-Finanz-Experte und unsere Mission lautet: Jeder Kunde hat das Recht auf den besten Kredit.Infina kooperiert mit über 120 Banken in Österreich und DeutschlandÜber 600 Kreditprodukte im VergleichÜber 100-mal vor Ort in ganz ÖsterreichEbenso unterstützen wir unsere Kunden beim Verkauf und der Vermietung Ihrer Immobilien sowie bei der Immobiliensuche durch unsere Immobilienexperten.
Wir weisen Sie darauf hin, dass die gemachten Angaben und Informationen lediglich unverbindliche Vorabinformationen sind und daher ohne Gewähr erfolgen.Der Vermittler ist als Doppelmakler tätig.
Infrastruktur / EntfernungenGesundheit
Arzt <1.000m
Apotheke <500m
Klinik <2.500m
Krankenhaus <2.500m
Kinder & Schulen
Schule <500m
Kindergarten <1.000m
Universität <2.000m
Höhere Schule <2.000m
Nahversorgung
Supermarkt <500m
Bäckerei <1.000m
Einkaufszentrum <2.000m
Sonstige
Geldautomat <1.500m
Bank <1.500m
Post <1.500m
Polizei <1.000m
Verkehr
Bus <500m
U-Bahn <3.000m
Straßenbahn <500m
Bahnhof <1.500m
Autobahnanschluss <1.500m
Angaben Entfernung Luftlinie / Quelle: OpenStreetMap
Wir weisen Sie darauf hin, dass die gemachten Angaben und Informationen lediglich unverbindliche Vorabinformationen sind und daher ohne Gewähr erfolgen.Der Vermittler ist als Doppelmakler tätig.
Infrastruktur / EntfernungenGesundheit
Arzt <1.000m
Apotheke <500m
Klinik <2.500m
Krankenhaus <2.500m
Kinder & Schulen
Schule <500m
Kindergarten <1.000m
Universität <2.000m
Höhere Schule <2.000m
Nahversorgung
Supermarkt <500m
Bäckerei <1.000m
Einkaufszentrum <2.000m
Sonstige
Geldautomat <1.500m
Bank <1.500m
Post <1.500m
Polizei <1.000m
Verkehr
Bus <500m
U-Bahn <3.000m
Straßenbahn <500m
Bahnhof <1.500m
Autobahnanschluss <1.500m
Angaben Entfernung Luftlinie / Quelle: OpenStreetMap
Vorstellungsmappe
Jetzt Vorstellungsmappe erstellen
Lage
1210 WienWien
Der aktuelle durchschnittliche Quadratmeterpreis beträgt 6.522,45 €/m² in Wien.
Mit Immobilienpreisen
Wien vergleichen
Was kostet dein Umzug?
Du planst einen Umzug? Finde jetzt die günstigste Umzugsfirma in deiner Region!
Umzugskosten berechnen Schütze dich vor Betrug!
Leiste keinerlei Zahlung im Vorraus!
Beachte unsere Sicherheitshinweise zum Thema Immobilienbetrug und lies, woran du solche Anzeigen erkennen kannst und wie du dich vor Betrügern schützt.
Anzeige melden Beachte unsere Sicherheitshinweise zum Thema Immobilienbetrug und lies, woran du solche Anzeigen erkennen kannst und wie du dich vor Betrügern schützt.
*Anzeige
Ähnliche Immobilien bei ImmoScout24
Wien
- Kaufpreis
- 520.000 €
- Zimmer
- 2 Zi.
- Fläche
- 80 Zi.
Anbieter
Weitere Ergebnisse für:
Wohnungen
Wien;
Immobilien
Wien;
Haus mieten
Wien;
Wohnung
Wien kaufen;
Haus kaufen
Wien;
Immobilienpreise
Wien Mietspiegel
Wien wohnungsboerse.net übernimmt keine Gewähr für von Dritten gemachte Angaben