
Etagenwohnung in Aachen-Mitte
Objekt nicht gefunden
auf der Karte ansehenUmzugskosten berechnen
- Kaltmiete
- 680 €
- Zimmer
- 1
- Fläche
- 24.02 m²
28 Aufrufe
Objekt-ID: 37192280
| Objekttyp: | Etagenwohnung |
| Zimmer: | 1 |
| Größe: | 24.02 m² |
| Frei ab: | 01.06.2025 |
Preise & Kosten
| Kaltmiete: | k.A. |
| Gesamtmiete: |
k.A. |
| Preis/m²: | 28,31 € |
| Mit Mietspiegel Aachen vergleichen | |
| Kaution: | k.A. |
Immobilie
Möbliert
Einbauküche
Aufzug
Keller
Neubau
| Baujahr: | 2025 |
| Energieausweis: | Energieausweis nicht notwendig (Denkmalschutz) |
Objektbeschreibung
All-inclusive-Miete: Keine versteckten Kosten – Strom, Internet und Nebenkosten sind bereits in der Miete enthalten
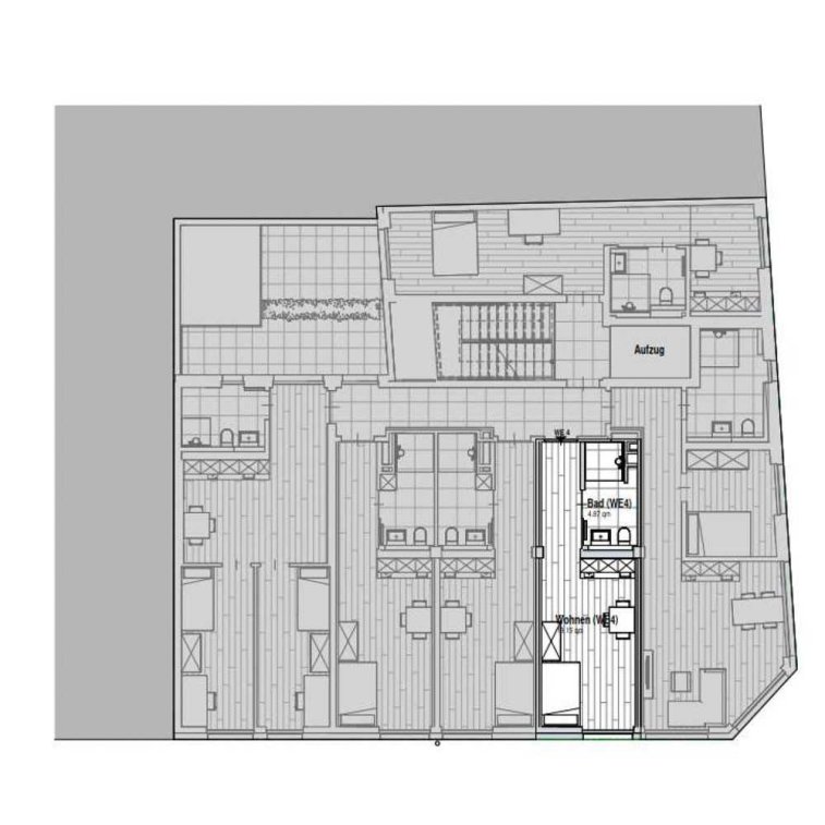
Studio Apartments:
Die 1-Zimmer-Apartments befinden sich in einem modernen Neubau in der Adalbertstraße 128/Martin-Luther-Straße 2 in Aachen-Mitte. Mit Wohnflächen zwischen 22 und 26 m2 bieten die Apartments ein ideales Zuhause für Menschen, die ein zentrales Zuhause mit hoher Lebensqualität suchen. Das Gebäude umfasst insgesamt 37 Wohneinheiten und eine Gewerbeeinheit im Erdgeschoss.
Die Wohnungen sind stilvoll ausgestattet und überzeugen durch einen durchdachten Grundriss mit Wohn-, Schlaf- und Essbereichen sowie Badezimmern mit moderner und großzügiger Dusche.
Studio Apartments:
Die 1-Zimmer-Apartments befinden sich in einem modernen Neubau in der Adalbertstraße 128/Martin-Luther-Straße 2 in Aachen-Mitte. Mit Wohnflächen zwischen 22 und 26 m2 bieten die Apartments ein ideales Zuhause für Menschen, die ein zentrales Zuhause mit hoher Lebensqualität suchen. Das Gebäude umfasst insgesamt 37 Wohneinheiten und eine Gewerbeeinheit im Erdgeschoss.
Die Wohnungen sind stilvoll ausgestattet und überzeugen durch einen durchdachten Grundriss mit Wohn-, Schlaf- und Essbereichen sowie Badezimmern mit moderner und großzügiger Dusche.
Lage
Adalbertstraße / Martin-Luther-Straße52062 Aachen
Aachen Mitte
Der aktuelle durchschnittliche Quadratmeterpreis beträgt 12,87 €/m² in Aachen - Mitte. Der durchschnittliche Quadratmeterpreis in Aachen liegt derzeit bei 12,98 €/m².
Mit Mietspiegel
Aachen vergleichen
Was kostet dein Umzug?
Du planst einen Umzug? Finde jetzt die günstigste Umzugsfirma in deiner Region!
Umzugskosten berechnen Schütze dich vor Betrug!
Leiste keinerlei Zahlung im Vorraus!
Beachte unsere Sicherheitshinweise zum Thema Immobilienbetrug und lies, woran du solche Anzeigen erkennen kannst und wie du dich vor Betrügern schützt.
Anzeige melden Beachte unsere Sicherheitshinweise zum Thema Immobilienbetrug und lies, woran du solche Anzeigen erkennen kannst und wie du dich vor Betrügern schützt.
*Anzeige
Ähnliche Wohnungen bei ImmoScout24
Aachen-Mitte
- Miete
- 550 €
- Zimmer
- 1 Zi.
- Fläche
- 15 Zi.
Anbieter
Diese Anzeige ist momentan deaktiviert. Daher ist eine Kontaktaufnahme nicht möglich.
Weitere Ergebnisse für:
Wohnungen
Aachen;
Immobilien
Aachen;
Haus mieten
Aachen;
WG Zimmer
Aachen;
Wohnung
Aachen kaufen;
Haus kaufen
Aachen;
Immobilienpreise
Aachen Mietspiegel
Aachen wohnungsboerse.net übernimmt keine Gewähr für von Dritten gemachte Angaben