
Wohnung in Berlin-Marienfelde
Tauschwohnung: 3-Zimmer-Wohnung– Familie sucht größere Wohnun
auf der Karte ansehenUmzugskosten berechnen
- Kaltmiete
- 1.500 €
- Zimmer
- 3.5
- Fläche
- 80 m²
170 Aufrufe
Objekt-ID: 38569667
Objekttyp: | Keine Angabe |
Zimmer: | 3.5 |
Größe: | 80.00 m² |
Etage: | 2 |
Frei ab: | keine Angabe |
Preise & Kosten
Kaltmiete: | 1.500 € |
Gesamtmiete: | k.A. |
Preis/m²: | 18,75 € |
Mit Mietspiegel Berlin vergleichen | |
Kaution: | k.A. |
Immobilie
Balkon
Garten
Einbauküche
Keller
Tiere erlaubt
Objektbeschreibung
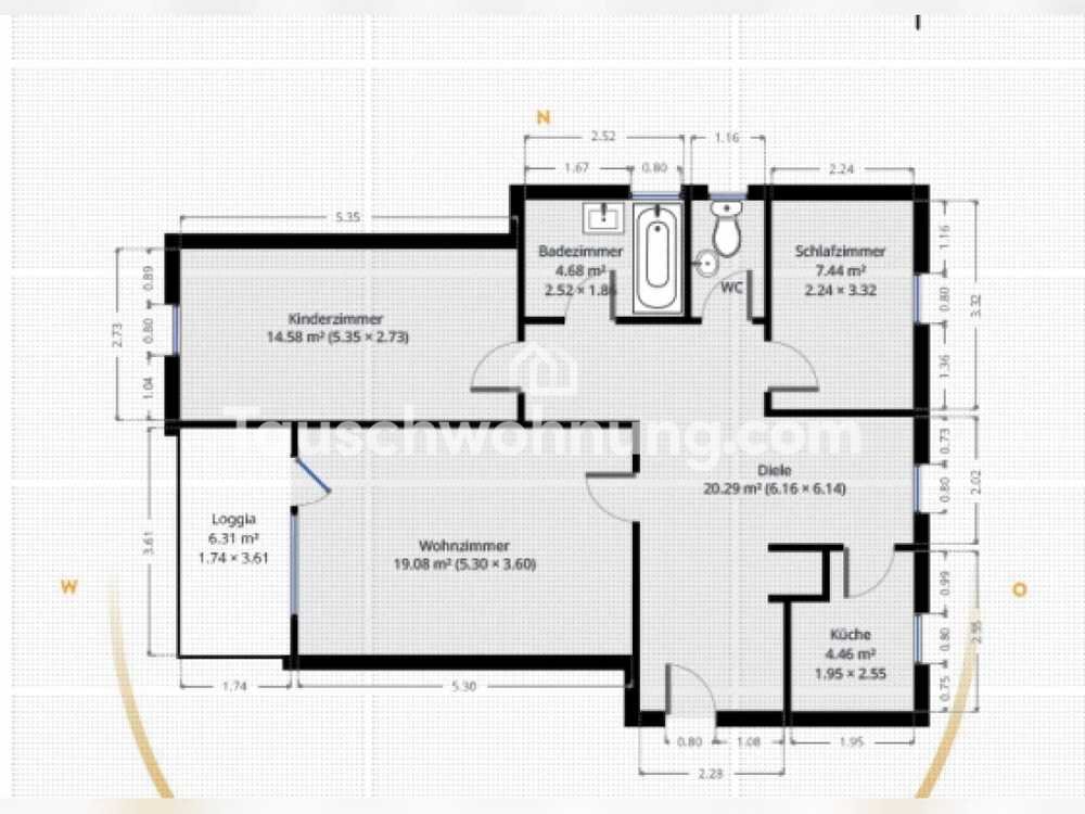
Wir sind eine 4-köpfige Familie und sind aus unserer 3-Zimmer-Wohnung (77 m²) herausgewachsen. Wir suchen eine Wohnung mit mindestens 3,5 Zimmern und einer Warmmiete bis max. 1.800 €.
Unsere aktuelle Wohnung befindet sich im 2. OG eines gepflegten Mehrfamilienhauses mit 9 nette Parteien. Sie verfügt über eine Westausrichtung, Gemeinschaftsgarten, Tiefgarage, Kellerraum, EBK und Grillplatz. Warmmiete: ca 1.099 €.
Vor dem Haus befindet sich eine Bushaltestelle für die Linien 112, M11 und M85. Außerdem sind ein Edeka, Dönerladen, Restaurants, ein Kindergarten und ein Futterhaus weniger als zwei Gehminuten entfernt!
Unsere aktuelle Wohnung befindet sich im 2. OG eines gepflegten Mehrfamilienhauses mit 9 nette Parteien. Sie verfügt über eine Westausrichtung, Gemeinschaftsgarten, Tiefgarage, Kellerraum, EBK und Grillplatz. Warmmiete: ca 1.099 €.
Vor dem Haus befindet sich eine Bushaltestelle für die Linien 112, M11 und M85. Außerdem sind ein Edeka, Dönerladen, Restaurants, ein Kindergarten und ein Futterhaus weniger als zwei Gehminuten entfernt!
Lage
Tauschwohnungstraße12279 Berlin
Berlin Marienfelde
Der aktuelle durchschnittliche Quadratmeterpreis beträgt 18,82 €/m² in Berlin - Marienfelde. Der durchschnittliche Quadratmeterpreis in Berlin liegt derzeit bei 19,93 €/m².
Mit Mietspiegel
Berlin vergleichen
Was kostet dein Umzug?
Du planst einen Umzug? Finde jetzt die günstigste Umzugsfirma in deiner Region!
Umzugskosten berechnen Schütze dich vor Betrug!
Leiste keinerlei Zahlung im Vorraus!
Beachte unsere Sicherheitshinweise zum Thema Immobilienbetrug und lies, woran du solche Anzeigen erkennen kannst und wie du dich vor Betrügern schützt.
Anzeige melden Beachte unsere Sicherheitshinweise zum Thema Immobilienbetrug und lies, woran du solche Anzeigen erkennen kannst und wie du dich vor Betrügern schützt.
*Anzeige

Ähnliche Wohnungen bei ImmoScout24
Berlin-Marienfelde
- Miete
- 1.350 €
- Zimmer
- 3.5 Zi.
- Fläche
- 70 Zi.
Anbieter
Weitere Ergebnisse für:
Wohnungen
Berlin;
Immobilien
Berlin;
Haus mieten
Berlin;
WG Zimmer
Berlin;
Wohnung
Berlin kaufen;
Haus kaufen
Berlin;
Immobilienpreise
Berlin Mietspiegel
Berlin wohnungsboerse.net übernimmt keine Gewähr für von Dritten gemachte Angaben