
Etagenwohnung in Osnabrück-Haste
Kernsanierte attraktive 2-Zimmer Wohnung mit großem Balkon in Os-Haste
auf der Karte ansehenUmzugskosten berechnen
- Kaltmiete
- 900 €
- Zimmer
- 2
- Fläche
- 63 m²
5 Aufrufe
Objekt-ID: 38575978
Objekttyp: | Etagenwohnung |
Zimmer: | 2 |
Größe: | 63.00 m² |
Etage: | 2 von 2 |
Frei ab: | 1.1.2026 |
Preise & Kosten
Kaltmiete: | 900 € |
Nebenkosten: | 160 € |
Gesamtmiete: |
1.060 € |
Preis/m²: | 14,29 € |
Mit Mietspiegel Osnabrück vergleichen | |
Kaution: | k.A. |
Immobilie
Balkon
Einbauküche
Keller
Tiere erlaubt
Baujahr: | 1950 |
Befeuerungsart: | Strom |
Energieausweis: | liegt vor |
Objektbeschreibung
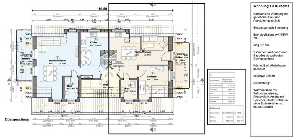
Diese gepflegte 2-Zimmer Wohnung mit ca. 63 m² Wohnfläche befindet sich im 2. Obergeschoss eines gepflegten Mehrfamilienhauses in Osnabrück-Haste. Die Wohnung verfügt über eine gehobene Innenausstattung und einen großen Balkon, der zum Entspannen einlädt. Eine Einbauküche ist bereits vorhanden und erleichtert Ihnen den Einzug. Ein Keller bietet zusätzlichen Stauraum. Haustiere sind nach Absprache erlaubt. Die Heizkosten sind in den Nebenkosten enthalten. Ein Stellplatz steht zur Verfügung. Die Wohnung ist ab dem 1. Januar 2026 verfügbar. (Nach Vereinbarung evtl. auch eher). Die Wohnung eignet sich für Alleinstehende und Paare.
Lage
49090 OsnabrückOsnabrück Haste
Der aktuelle durchschnittliche Quadratmeterpreis beträgt 9,71 €/m² in Osnabrück - Haste. Der durchschnittliche Quadratmeterpreis in Osnabrück liegt derzeit bei 11,10 €/m².
Mit Mietspiegel
Osnabrück vergleichen
Was kostet dein Umzug?
Du planst einen Umzug? Finde jetzt die günstigste Umzugsfirma in deiner Region!
Umzugskosten berechnen Schütze dich vor Betrug!
Leiste keinerlei Zahlung im Vorraus!
Beachte unsere Sicherheitshinweise zum Thema Immobilienbetrug und lies, woran du solche Anzeigen erkennen kannst und wie du dich vor Betrügern schützt.
Anzeige melden Beachte unsere Sicherheitshinweise zum Thema Immobilienbetrug und lies, woran du solche Anzeigen erkennen kannst und wie du dich vor Betrügern schützt.
*Anzeige

Ähnliche Wohnungen bei ImmoScout24
Osnabrück-Haste
- Miete
- 750 €
- Zimmer
- 2 Zi.
- Fläche
- 55 Zi.
Weitere Ergebnisse für:
Wohnungen
Osnabrück;
Immobilien
Osnabrück;
Haus mieten
Osnabrück;
WG Zimmer
Osnabrück;
Wohnung
Osnabrück kaufen;
Haus kaufen
Osnabrück;
Immobilienpreise
Osnabrück Mietspiegel
Osnabrück wohnungsboerse.net übernimmt keine Gewähr für von Dritten gemachte Angaben