
Penthouse in Frankfurt-Riedberg
Objekt nicht gefunden
auf der Karte ansehenUmzugskosten berechnen
- Kaltmiete
- 1.020,04 €
- Zimmer
- 2
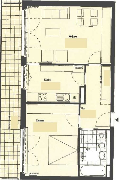
- Fläche
- 65.22 m²
14 Aufrufe
Objekt-ID: 38772673
| Objekttyp: | Penthouse |
| Zimmer: | 2 |
| Größe: | 65.22 m² |
| Etage: | 4 von 5 |
| Frei ab: | 15.12.2025 |
Preise & Kosten
| Kaltmiete: | k.A. |
| Nebenkosten: | 260,88 € |
| Gesamtmiete: |
k.A. |
| Preis/m²: | 15,64 € |
| Mit Mietspiegel Frankfurt vergleichen | |
| Kaution: | k.A. |
Immobilie
Balkon
Einbauküche
Aufzug
Keller
Tiere erlaubt
Behindertengerecht
| Baujahr: | 2010 |
| Befeuerungsart: | Fernwärme |
| Energieausweis: | Bedarfsausweis |
| Endenergiebedarf: | 80,90 kWh/(m²*a) |
| Energieeffizienzklasse: | C |
Objektbeschreibung
Die energieeffizienten attraktiven Häuser
stehen in einem in sich abgeschlossenen Areal im Wohnpark Riedberg. Der Zugang ist nur den Bewohnern und deren Besuchern möglich. Die parkähnlichen Grünanlagen zwischen den Häusern laden zur Erholung und Entspannung ein.
Direkt unter dem Gebäude befindet sich die Tiefgarage mit ebenerdigen Stellplätzen und gewährleistet so einen direkten Zugang ins Haus und zur Wohnung.
Zur Wohnung gehört ein abschließbarer separater Keller sowie ein Trockenraum und Fahrradkeller.
stehen in einem in sich abgeschlossenen Areal im Wohnpark Riedberg. Der Zugang ist nur den Bewohnern und deren Besuchern möglich. Die parkähnlichen Grünanlagen zwischen den Häusern laden zur Erholung und Entspannung ein.
Direkt unter dem Gebäude befindet sich die Tiefgarage mit ebenerdigen Stellplätzen und gewährleistet so einen direkten Zugang ins Haus und zur Wohnung.
Zur Wohnung gehört ein abschließbarer separater Keller sowie ein Trockenraum und Fahrradkeller.
Lage
Robert-Koch-Allee60438 Frankfurt
Frankfurt Riedberg
Der aktuelle durchschnittliche Quadratmeterpreis beträgt 19,87 €/m² in Frankfurt - Riedberg. Der durchschnittliche Quadratmeterpreis in Frankfurt liegt derzeit bei 19,63 €/m².
Mit Mietspiegel
Frankfurt vergleichen
Was kostet dein Umzug?
Du planst einen Umzug? Finde jetzt die günstigste Umzugsfirma in deiner Region!
Umzugskosten berechnen Schütze dich vor Betrug!
Leiste keinerlei Zahlung im Vorraus!
Beachte unsere Sicherheitshinweise zum Thema Immobilienbetrug und lies, woran du solche Anzeigen erkennen kannst und wie du dich vor Betrügern schützt.
Anzeige melden Beachte unsere Sicherheitshinweise zum Thema Immobilienbetrug und lies, woran du solche Anzeigen erkennen kannst und wie du dich vor Betrügern schützt.
*Anzeige
Ähnliche Wohnungen bei ImmoScout24
Frankfurt-Riedberg
- Miete
- 900 €
- Zimmer
- 2 Zi.
- Fläche
- 60 Zi.
Anbieter
Diese Anzeige ist momentan deaktiviert. Daher ist eine Kontaktaufnahme nicht möglich.
Weitere Ergebnisse für:
Wohnungen
Frankfurt;
Immobilien
Frankfurt;
Haus mieten
Frankfurt;
WG Zimmer
Frankfurt;
Wohnung
Frankfurt kaufen;
Haus kaufen
Frankfurt;
Immobilienpreise
Frankfurt Mietspiegel
Frankfurt wohnungsboerse.net übernimmt keine Gewähr für von Dritten gemachte Angaben