
Loft in Berlin-Friedrichshagen
Charmante 2-Zimmer Loftwohnung mit Terrasse in Berlin Friedrichshagen (Köpenick)
auf der Karte ansehenUmzugskosten berechnen
- Kaltmiete
- 1.200 €
- Zimmer
- 2
- Fläche
- 81 m²
40 Aufrufe
Objekt-ID: 38864702
| Objekttyp: | Loft |
| Zimmer: | 2 |
| Größe: | 81.00 m² |
| Frei ab: | 1.1.2026 |
Preise & Kosten
| Kaltmiete: | 1.200 € |
| Nebenkosten: | 312 € |
| Gesamtmiete: |
1.512 € |
| Preis/m²: | 14,81 € |
| Mit Mietspiegel Berlin vergleichen | |
| Kaution: | k.A. |
Immobilie
Balkon
Terrasse
Garten
Einbauküche
Tiere erlaubt
Objektbeschreibung
Willkommen i Friedrichshagen!!
Unsere Wohnung steht für 3 Jahre zur Untermiete zur Verfügung.
Einzug flexibel ab dem 1. Januar bis spätestens 1. Februar 2026.
Vermietererlaubnis ist erteilt, d.h. Die Anmeldung ist möglich und es wird ein ganz normaler befristeter Mietvertrag geschlossen.
Die Wohnung wird unmöbliert vermietet, s. Video!
Es handelt sich um eine charmante, ebenerdige Remise/Garagenwohnung mit Loftcharakter.
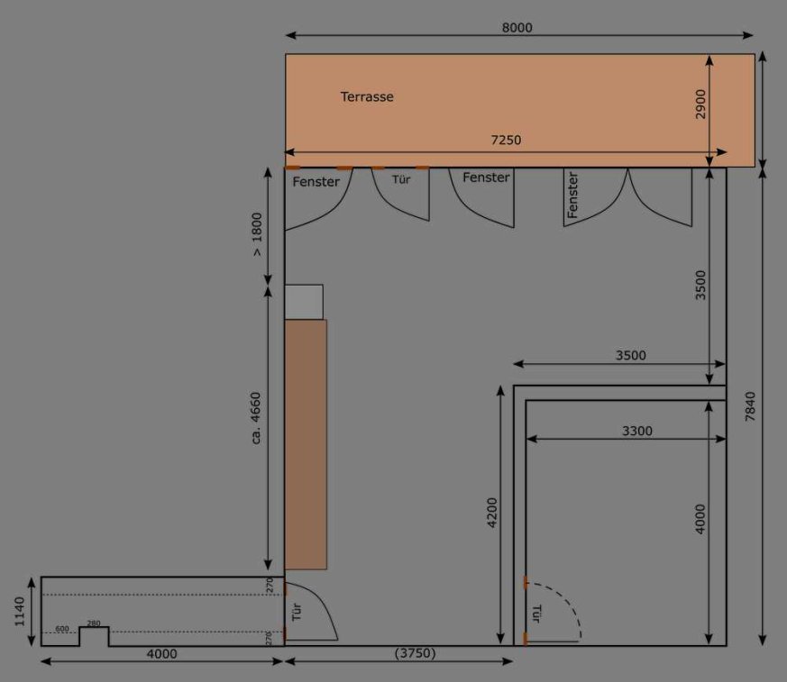
Sie besteht aus einer großzügigen Wohnküche, d.h. Wohnzimmer und Küche sind ein Raum, separates Schlafzimmer und modernem Bad (siehe Grundriss - Anmerkung Bad fehlt auf dem Grundriss).
Das Bad ist jetzt -anders als auf dem Video- Nachtblau gestrichen.
ruhiger Innenhof einer Villa, man wohnt total versteckt und ruhig.
5min Fußweg zum S-Bahnhof Friedrichshagen
2min Fußweg zur bekannten Bölschestraße
5min zum Müggelsee
große Terrasse zum Innenhof mit Nachmittags-Sonne
Ausstattung:
EBK ohne Kühlschrank
Waschtrockner und Spülmaschine nach Absprache (kleiner Aufpreis)
Bad mit begehbarer Rainforest-Dusche
Sparsame Fußbodenheizung
Mietoptionen:
ganze Wohnung befristet- 1.1..2026/1.2.2026 bis 1.1.2029/1.2.2029
Im Mietpreis enthalten:
Miete, Internet-/WLAN, und Telekom TV Paket, Heizung, Wasser, Strom
Haustier nach Ansprache
Vermieter Erlaubnis ist vorhanden = Anmeldung möglich!!
3 Monatsmieten Kaution
Einkommensnachweise, Mietschuldenfteistellung und Schufa sind verbindlich , Haftpflichtversicherung ist ein großer Bonus!
Unsere Wohnung steht für 3 Jahre zur Untermiete zur Verfügung.
Einzug flexibel ab dem 1. Januar bis spätestens 1. Februar 2026.
Vermietererlaubnis ist erteilt, d.h. Die Anmeldung ist möglich und es wird ein ganz normaler befristeter Mietvertrag geschlossen.
Die Wohnung wird unmöbliert vermietet, s. Video!
Es handelt sich um eine charmante, ebenerdige Remise/Garagenwohnung mit Loftcharakter.
Sie besteht aus einer großzügigen Wohnküche, d.h. Wohnzimmer und Küche sind ein Raum, separates Schlafzimmer und modernem Bad (siehe Grundriss - Anmerkung Bad fehlt auf dem Grundriss).
Das Bad ist jetzt -anders als auf dem Video- Nachtblau gestrichen.
ruhiger Innenhof einer Villa, man wohnt total versteckt und ruhig.
5min Fußweg zum S-Bahnhof Friedrichshagen
2min Fußweg zur bekannten Bölschestraße
5min zum Müggelsee
große Terrasse zum Innenhof mit Nachmittags-Sonne
Ausstattung:
EBK ohne Kühlschrank
Waschtrockner und Spülmaschine nach Absprache (kleiner Aufpreis)
Bad mit begehbarer Rainforest-Dusche
Sparsame Fußbodenheizung
Mietoptionen:
ganze Wohnung befristet- 1.1..2026/1.2.2026 bis 1.1.2029/1.2.2029
Im Mietpreis enthalten:
Miete, Internet-/WLAN, und Telekom TV Paket, Heizung, Wasser, Strom
Haustier nach Ansprache
Vermieter Erlaubnis ist vorhanden = Anmeldung möglich!!
3 Monatsmieten Kaution
Einkommensnachweise, Mietschuldenfteistellung und Schufa sind verbindlich , Haftpflichtversicherung ist ein großer Bonus!
Lage
12587 BerlinBerlin Friedrichshagen
Der aktuelle durchschnittliche Quadratmeterpreis beträgt 18,76 €/m² in Berlin - Friedrichshagen. Der durchschnittliche Quadratmeterpreis in Berlin liegt derzeit bei 20,02 €/m².
Mit Mietspiegel
Berlin vergleichen
Was kostet dein Umzug?
Du planst einen Umzug? Finde jetzt die günstigste Umzugsfirma in deiner Region!
Umzugskosten berechnen Schütze dich vor Betrug!
Leiste keinerlei Zahlung im Vorraus!
Beachte unsere Sicherheitshinweise zum Thema Immobilienbetrug und lies, woran du solche Anzeigen erkennen kannst und wie du dich vor Betrügern schützt.
Anzeige melden Beachte unsere Sicherheitshinweise zum Thema Immobilienbetrug und lies, woran du solche Anzeigen erkennen kannst und wie du dich vor Betrügern schützt.
*Anzeige
Ähnliche Wohnungen bei ImmoScout24
Berlin-Friedrichshagen
- Miete
- 1.050 €
- Zimmer
- 2 Zi.
- Fläche
- 75 Zi.
Weitere Ergebnisse für:
Wohnungen
Berlin;
Immobilien
Berlin;
Haus mieten
Berlin;
WG Zimmer
Berlin;
Wohnung
Berlin kaufen;
Haus kaufen
Berlin;
Immobilienpreise
Berlin Mietspiegel
Berlin wohnungsboerse.net übernimmt keine Gewähr für von Dritten gemachte Angaben