
Wohnung in München-Altstadt
Wohnungstausch: Müllerstraße 17
auf der Karte ansehenUmzugskosten berechnen
- Kaltmiete
- 720 €
- Zimmer
- 2
- Fläche
- 36 m²
98 Aufrufe
Objekt-ID: 39010877
| Objekttyp: | Keine Angabe |
| Zimmer: | 2 |
| Größe: | 36.00 m² |
| Frei ab: | keine Angabe |
Preise & Kosten
| Kaltmiete: | 720 € |
| Gesamtmiete: | k.A. |
| Preis/m²: | 20,00 € |
| Mit Mietspiegel München vergleichen | |
| Kaution: | k.A. |
Immobilie
Objektbeschreibung
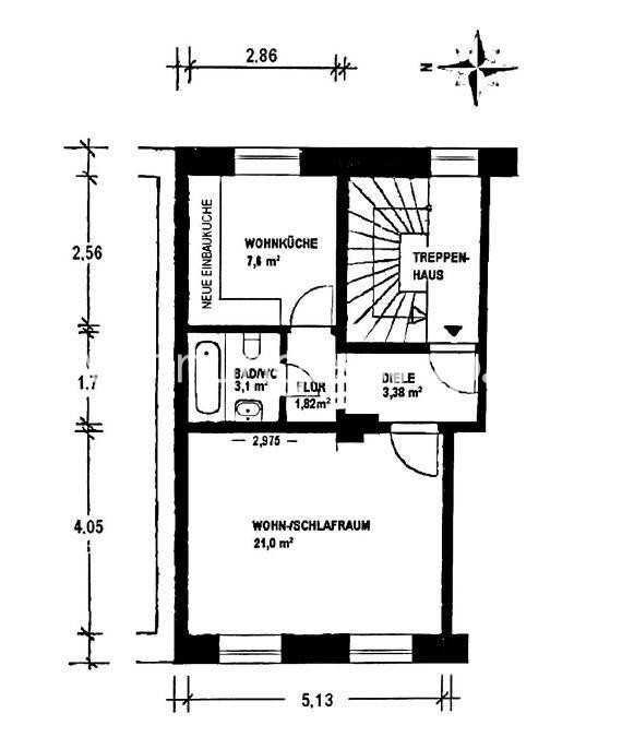
1,5-Zimmer-Wohnung in Top-Lage (Fraunhoferstraße/Müllerstraße) zum Tausch!
Wir tauschen unsere sonnige 1,5-Zimmer-Wohnung an der Kreuzung Fraunhoferstraße/Müllerstraße gegen eine größere (mindestens 3 Zimmer) Wohnung und gerne auch weiterhin zentral. Die Wohnung ist nicht nur gemütlich und hell, sondern hat auch einen schönen Innenhof, der für eine entspannte Atmosphäre sorgt. Die Warmmiete liegt bei 860 € und der absolute Bonus: Direkt vor der Tür gibt's den besten Chai Münchens!
Zur Lage: In 6 Minuten bist du an der U-Bahn-Station Fraunhoferstraße, in nur 1 Minute an der Tram-Haltestelle Müllerstraße – also alles wunderbar schnell und bequem zu erreichen.
Wir sind beide unbefristet in der IT-Branche tätig und schätzen ein entspanntes, respektvolles Zusammenleben. Als zuverlässige und freundliche Nachbarn würden wir uns freuen, wenn wir bald eine größere Wohnung finden, die zu uns passt.
Wichtig
Diese Wohnung wird derzeit bei Wohnungsswap als Tauschobjekt angeboten, eignet sich also nur für diejenigen, die im Gegenzug eine eigene passende Wohnung für den Tausch haben.
Es ist kostenlos, ihr Konto zu registrieren und diese bestimme Wohnung oder Hunderte andere Wohnungen bei uns zu finden.
Wir tauschen unsere sonnige 1,5-Zimmer-Wohnung an der Kreuzung Fraunhoferstraße/Müllerstraße gegen eine größere (mindestens 3 Zimmer) Wohnung und gerne auch weiterhin zentral. Die Wohnung ist nicht nur gemütlich und hell, sondern hat auch einen schönen Innenhof, der für eine entspannte Atmosphäre sorgt. Die Warmmiete liegt bei 860 € und der absolute Bonus: Direkt vor der Tür gibt's den besten Chai Münchens!
Zur Lage: In 6 Minuten bist du an der U-Bahn-Station Fraunhoferstraße, in nur 1 Minute an der Tram-Haltestelle Müllerstraße – also alles wunderbar schnell und bequem zu erreichen.
Wir sind beide unbefristet in der IT-Branche tätig und schätzen ein entspanntes, respektvolles Zusammenleben. Als zuverlässige und freundliche Nachbarn würden wir uns freuen, wenn wir bald eine größere Wohnung finden, die zu uns passt.
Wichtig
Diese Wohnung wird derzeit bei Wohnungsswap als Tauschobjekt angeboten, eignet sich also nur für diejenigen, die im Gegenzug eine eigene passende Wohnung für den Tausch haben.
Es ist kostenlos, ihr Konto zu registrieren und diese bestimme Wohnung oder Hunderte andere Wohnungen bei uns zu finden.
Lage
MüllerstraßeMünchen
München Altstadt
Der aktuelle durchschnittliche Quadratmeterpreis beträgt 22,67 €/m² in München - Altstadt. Der durchschnittliche Quadratmeterpreis in München liegt derzeit bei 23,64 €/m².
Mit Mietspiegel
München vergleichen
Was kostet dein Umzug?
Du planst einen Umzug? Finde jetzt die günstigste Umzugsfirma in deiner Region!
Umzugskosten berechnen Schütze dich vor Betrug!
Leiste keinerlei Zahlung im Vorraus!
Beachte unsere Sicherheitshinweise zum Thema Immobilienbetrug und lies, woran du solche Anzeigen erkennen kannst und wie du dich vor Betrügern schützt.
Anzeige melden Beachte unsere Sicherheitshinweise zum Thema Immobilienbetrug und lies, woran du solche Anzeigen erkennen kannst und wie du dich vor Betrügern schützt.
*Anzeige
Ähnliche Wohnungen bei ImmoScout24
München-Altstadt
- Miete
- 600 €
- Zimmer
- 2 Zi.
- Fläche
- 30 Zi.
Anbieter
Weitere Ergebnisse für:
Wohnungen
München;
Immobilien
München;
Haus mieten
München;
WG Zimmer
München;
Wohnung
München kaufen;
Haus kaufen
München;
Immobilienpreise
München Mietspiegel
München wohnungsboerse.net übernimmt keine Gewähr für von Dritten gemachte Angaben