5er WG in München-Trudering
Zimmer frei in WG-Haus mit chilligem Garten in München Trudering
auf der Karte ansehenUmzugskosten berechnen
- Kaltmiete
- 590 €
- Zimmer
- 1
- Zimmergröße
- 15 m²
35 Aufrufe
Objekt-ID: 39100940
| Objekttyp: | 5er WG |
| Zimmer: | 1 |
| Zimmergröße: | 15.00 m² |
| Etage: | 1 |
| Frei ab: | 01.03.2026 |
Preise & Kosten
| Kaltmiete: | 590 € |
| Nebenkosten: | 100 € |
| Gesamtmiete: |
690 € |
| Preis/m²: | 39,33 € |
| Mit Mietspiegel München vergleichen | |
| Kaution: | 1700 |
Immobilie
Möbliert
Balkon
Terrasse
Garten
Einbauküche
Keller
WG geeignet
Wohnen auf Zeit
| Baujahr: | 1966 |
| Objektzustand: | vollständig renoviert |
| Befeuerungsart: | Wärmepumpe |
| Energieausweis: | Energieausweis in Vorbereitung |
Objektbeschreibung
• Dein Zimmer:
- 15 m² mit Balkon und Holzboden
- Große Gemeinschaftsflächen
- 690 € all inclusive (all!).
- gerne teilmöbliert
- ab 1.3.26, befristet bis zum 30.4.2028
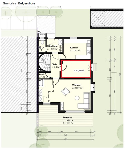
• Gemütliches Reiheneckhaus (135 m²) mit großem Garten und Terrasse – perfekt zum
Grillen, Chillen oder abends gemeinsam am Feuer zu sitzen. Wohnzimmer (30 m²) und die voll ausgestattete große Küche bieten viel Platz. Das Haus hat zwei Badezimmer und drei WCs.
• Kostenlose Mitnutzung der Waschmaschine, Abstellplatz im gemeinsamen Kellerraum. Der Garten wird von den Vermietern gepflegt.
• Im Carport kannst du dein Rad abstellen.
• Wir haben eine klare, faire Putzordnung.
• Selbstverständlich feiern wir auch gerne mal, aber wir leben in einem Wohngebiet, in dem alle respektvoll miteinander umgehen. Mit unseren netten Nachbarn wollen wir es uns nicht verscherzen.
• Das Haus liegt in München-Trudering in einer ruhigen Gegend mit
super Anbindung an öffentliche Verkehrsmittel.
• Der Bus (inkl. Nachtbus): 3 Minuten zu Fuß zur Bushaltestelle,
fährt zu U5 Quiddestraße (Linie 192), zur S4/S6/U2 Trudering
(Linien 192/194), zur S5 Neuperlach Süd oder zum Michaelibad
(Linie 195)
• In der Stadt bist du in 20-25 Min. (Bus + U-/S-Bahn), mit dem Rad
30 Min.
• Du findest Einkaufsmöglichkeiten wie Supermärkte, Bäckereien,
Restaurants, Wochenmarkt – alles easy zu Fuß/mit dem Rad zu erreichen.
- 15 m² mit Balkon und Holzboden
- Große Gemeinschaftsflächen
- 690 € all inclusive (all!).
- gerne teilmöbliert
- ab 1.3.26, befristet bis zum 30.4.2028
• Gemütliches Reiheneckhaus (135 m²) mit großem Garten und Terrasse – perfekt zum
Grillen, Chillen oder abends gemeinsam am Feuer zu sitzen. Wohnzimmer (30 m²) und die voll ausgestattete große Küche bieten viel Platz. Das Haus hat zwei Badezimmer und drei WCs.
• Kostenlose Mitnutzung der Waschmaschine, Abstellplatz im gemeinsamen Kellerraum. Der Garten wird von den Vermietern gepflegt.
• Im Carport kannst du dein Rad abstellen.
• Wir haben eine klare, faire Putzordnung.
• Selbstverständlich feiern wir auch gerne mal, aber wir leben in einem Wohngebiet, in dem alle respektvoll miteinander umgehen. Mit unseren netten Nachbarn wollen wir es uns nicht verscherzen.
• Das Haus liegt in München-Trudering in einer ruhigen Gegend mit
super Anbindung an öffentliche Verkehrsmittel.
• Der Bus (inkl. Nachtbus): 3 Minuten zu Fuß zur Bushaltestelle,
fährt zu U5 Quiddestraße (Linie 192), zur S4/S6/U2 Trudering
(Linien 192/194), zur S5 Neuperlach Süd oder zum Michaelibad
(Linie 195)
• In der Stadt bist du in 20-25 Min. (Bus + U-/S-Bahn), mit dem Rad
30 Min.
• Du findest Einkaufsmöglichkeiten wie Supermärkte, Bäckereien,
Restaurants, Wochenmarkt – alles easy zu Fuß/mit dem Rad zu erreichen.
Was kostet dein Umzug?
Du planst einen Umzug? Finde jetzt die günstigste Umzugsfirma in deiner Region!
Umzugskosten berechnen Schütze dich vor Betrug!
Leiste keinerlei Zahlung im Vorraus!
Beachte unsere Sicherheitshinweise zum Thema Immobilienbetrug und lies, woran du solche Anzeigen erkennen kannst und wie du dich vor Betrügern schützt.
Anzeige melden Beachte unsere Sicherheitshinweise zum Thema Immobilienbetrug und lies, woran du solche Anzeigen erkennen kannst und wie du dich vor Betrügern schützt.
*Anzeige
Ähnliche Zimmer bei ImmoScout24
München-Trudering
- Miete
- 450 €
- Zimmer
- 1 Zi.
- Fläche
- 5 Zi.
Anbieter
privater AnbieterWeitere Ergebnisse für:
Wohnungen
München;
Immobilien
München;
Haus mieten
München;
WG Zimmer
München;
Wohnung
München kaufen;
Haus kaufen
München;
Immobilienpreise
München Mietspiegel
München wohnungsboerse.net übernimmt keine Gewähr für von Dritten gemachte Angaben

















